Найти в Дзене

Проект одноэтажного дома площадью 165 кв.м

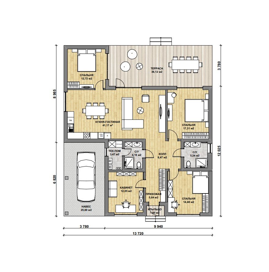
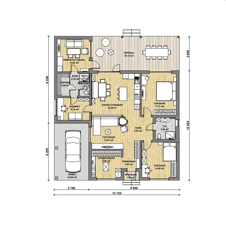
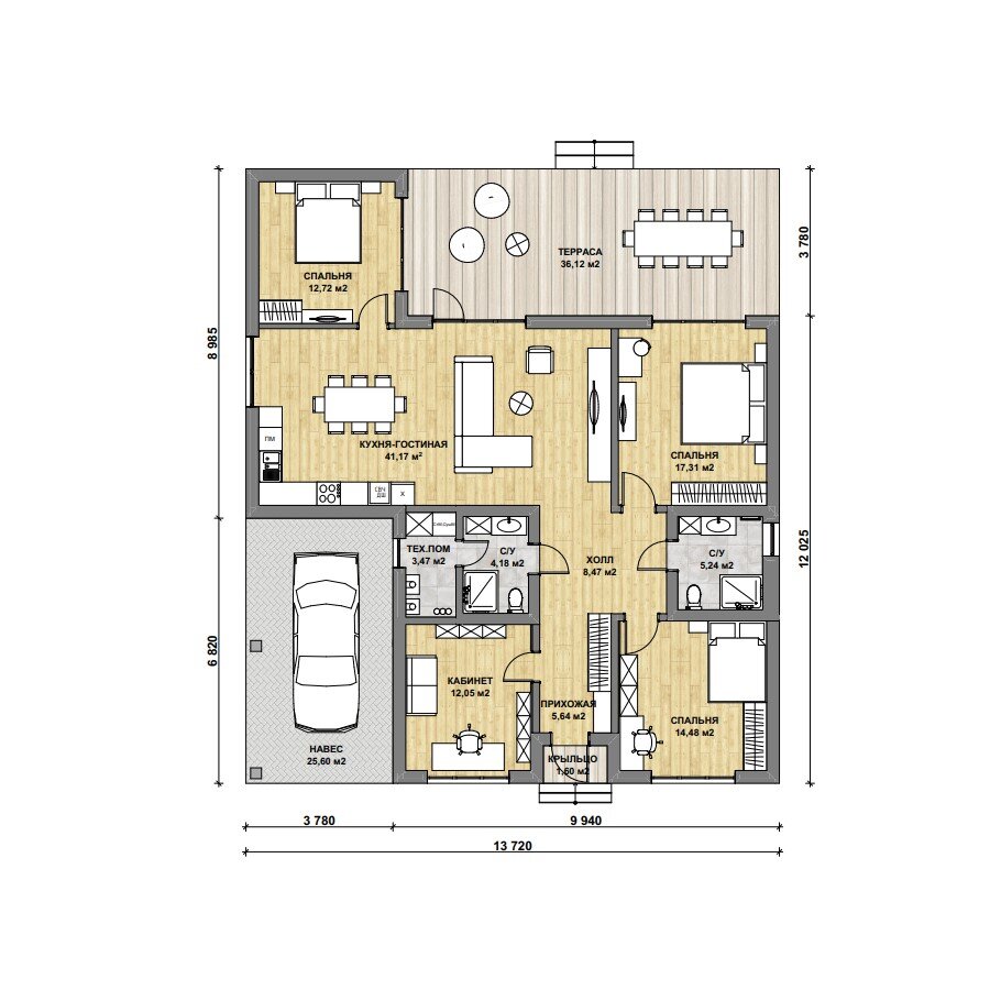
Представляем Вашему вниманию эксклюзивный проект одноэтажного дома площадью 165 кв.м, который воплощает в себе элегантность скандинавского стиля и инновационные финские каркасные технологии. Этот дом – идеальное сочетание функциональности, комфорта и стиля. Посмотрите проект дома на нашем сайте Главная особенность проекта – его удобная и продуманная планировка. Предлагаем Вам выбрать один из трех вариантов, каждый из которых тщательно разработан, чтобы удовлетворить самые разные потребности и предпочтения. Любители релакса и уединения оценят вариант с сауной, которая также может служить уютным гостевым домиком. Внутреннее пространство дома поражает своей просторностью и светлыми тона. Высокие потолки и большие панорамные окна создают ощущение единения с природой и наполняют дом естественным светом. Кухня-столовая-гостиная представляет собой единое пространство, которое станет центром семейного уюта и гостеприимства. Не менее важны и детали, такие как гардеробные комнаты, обеспечивающие

Представляем Вашему вниманию эксклюзивный проект одноэтажного дома площадью 165 кв.м, который воплощает в себе элегантность скандинавского стиля и инновационные финские каркасные технологии. Этот дом – идеальное сочетание функциональности, комфорта и стиля.

Проект одноэтажного дома называется "Оптимум 165"
Проект одноэтажного дома называется "Оптимум 165"

Посмотрите проект дома на нашем сайте

Главная особенность проекта – его удобная и продуманная планировка. Предлагаем Вам выбрать один из трех вариантов, каждый из которых тщательно разработан, чтобы удовлетворить самые разные потребности и предпочтения. Любители релакса и уединения оценят вариант с сауной, которая также может служить уютным гостевым домиком.

Внутреннее пространство дома поражает своей просторностью и светлыми тона. Высокие потолки и большие панорамные окна создают ощущение единения с природой и наполняют дом естественным светом. Кухня-столовая-гостиная представляет собой единое пространство, которое станет центром семейного уюта и гостеприимства.

-3

Не менее важны и детали, такие как гардеробные комнаты, обеспечивающие комфортное хранение одежды и аксессуаров, а также навес для автомобиля и просторная терраса, которая станет идеальным местом для отдыха на свежем воздухе.

-4

Мы приглашаем Вас перейти на наш сайт и подробнее изучить данный проект, а также ознакомиться с другими предложениями компании DMITRY DOM. Уверены, Вы найдете дом своей мечты, который будет радовать Вас и Ваших близких годами.