Добавить в корзинуПозвонить
Найти в Дзене

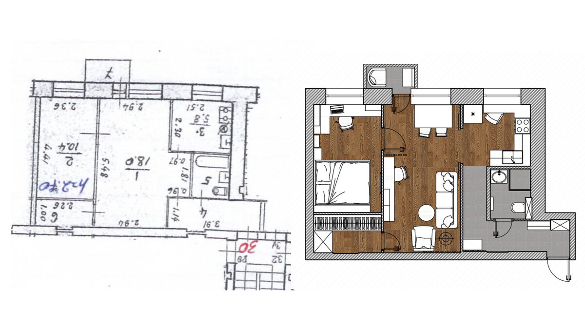
Преображение маленькой убитой хрущевки 45 м2 до и после

Ремонт во вторичке всегда кажется большим испытанием. Но чаще всего тут создаются самые теплые и особенные интерьеры. Проект 2019 года. Задачей было сделать ремонт быстро, бюджетно и с изюминкой для 2 молодых людей. Не меняя ничего кардинально, создать большую гостиную с проектором, гардеробную комнату, уютную кухню с барной стойкой, обеденную зону и спальню с рабочим местом. Самое главное сделать санузел, что бы туда поместилась стиральная машинка. Место: м.о., г. Королев Тип дома: кирпичный Метраж: 45 кв. м Cанузел: 1 Высота потолков: 2,67 м Было принято решение выровнять стены, создать уютную гостиную зону с дополнительным спальным и рабочим местом. Дом газифицирован, но за счет раздвижной перегородки мы объединить кухню и гостиную, тем самым получили общее светлое пространство. Кухня очень маленькая, лучшим решением было сделать ее светлой. Акцентом стали деревянные элементы и множество открытых полочек, как и любят заказчики. Столешница у окна служит дополнительным рабочим мес

Ремонт во вторичке всегда кажется большим испытанием. Но чаще всего тут создаются самые теплые и особенные интерьеры.

https://vk.com/krylova_design
https://vk.com/krylova_design

Проект 2019 года.

Задачей было сделать ремонт быстро, бюджетно и с изюминкой для 2 молодых людей. Не меняя ничего кардинально, создать большую гостиную с проектором, гардеробную комнату, уютную кухню с барной стойкой, обеденную зону и спальню с рабочим местом. Самое главное сделать санузел, что бы туда поместилась стиральная машинка.

Место: м.о., г. Королев
Тип дома: кирпичный
Метраж: 45 кв. м
Cанузел: 1
Высота потолков: 2,67 м

Было принято решение выровнять стены, создать уютную гостиную зону с дополнительным спальным и рабочим местом.

Дом газифицирован, но за счет раздвижной перегородки мы объединить кухню и гостиную, тем самым получили общее светлое пространство.

https://vk.com/krylova_design
https://vk.com/krylova_design

Кухня очень маленькая, лучшим решением было сделать ее светлой. Акцентом стали деревянные элементы и множество открытых полочек, как и любят заказчики. Столешница у окна служит дополнительным рабочим местом на кухне. Таким образом кухню получилось сделать визуально немного просторнее. Газовую колонку решили не прятать, а оставить ее на своем месте, заменив на новую.

https://vk.com/krylova_design
https://vk.com/krylova_design

В обеденную зону и гостиную добавили цвета, оливковый тон стен от Tikkurila в цвете Liitu S385 (Оранжерея)". Появилось ощущение тепла и уюта.

Зона гостиной разрабатывалась так же индивидуально, со множеством мест для хранения, разными полочками и рабочим местом. Под потолком спрятали экран для проектора.

Спальню с заказчиками мы согласовывали очень долго, подбирали идеальный вариант, который будет максимально удобный и комфортный. Кровать разрабатывали под заказ с множеством полочек и местом для хранения книг.

https://vk.com/krylova_design
https://vk.com/krylova_design
https://vk.com/krylova_design
https://vk.com/krylova_design

Возле окна организовали просторное рабочее место, с местом для хранения документов.

С ванной комнатой пришлось долго работать. Места мало и возле двери располагается водяной полотенцесушитель, который убрать возможности не было. В итоге заместо ванны сделали небольшую душевую, удалось разместить инсталляцию и шкафчик с доступом ко всем коммуникациям.

https://vk.com/krylova_design
https://vk.com/krylova_design
https://vk.com/krylova_design
https://vk.com/krylova_design

Как вам такое преображение квартиры?

Ваш дизайнер - Катерина Крылова

Если было полезно, подписывайтесь на мой канал, а меня можно найти в тг канале по ссылочке.

#ремонт #допосле #маленькаяванная #преображение квартиры #дизайнкухни #кухня #дизайнванной #дизайнкухни #дизайнквартиры #маленькаяквартира #дизайнеринтерьера