Добавить в корзинуПозвонить
Найти в Дзене
Лысый строит Дома

Развод проектировщиков! Что выгоднее свайно-роствертковый фундамент или ленточный?

Сейчас стало как-то «модно» в индивидуальном жилищном строительстве применять свайно-роствертковый фундамент. Как новый объект - так обязательно проектировщики заложат данный тип фундамента. Давайте попробуем разобраться все-таки что дешевле и что целесообразней применять. Рассмотрим затраты на примере 2-х домов примерно равной по площади. Задача любого фундамента распределять равномерно нагрузку от несущих конструкций дома на грунт. И вот как раз земля на Вашем участке и должна предопределять будущий фундамент. Если грунт не стабильный, подвижный, водонасыщенный, торфяной или насыпной, как в моем недавнем случае при строительстве заказчику, тогда свайно-роствертковый фундамент просто необходим. Сыпучие строительные материалы, такие как песок и щебень считаются относительно незначительными в плане затрат на весь объект. От бетона до крепежа расход материалов на свайно-роствертковый более существенный, а работа по возведению свайно-ростверткового фундамента будет дороже ленточного, так

Сейчас стало как-то «модно» в индивидуальном жилищном строительстве применять свайно-роствертковый фундамент. Как новый объект - так обязательно проектировщики заложат данный тип фундамента.

Давайте попробуем разобраться все-таки что дешевле и что целесообразней применять. Рассмотрим затраты на примере 2-х домов примерно равной по площади.

Задача любого фундамента распределять равномерно нагрузку от несущих конструкций дома на грунт. И вот как раз земля на Вашем участке и должна предопределять будущий фундамент. Если грунт не стабильный, подвижный, водонасыщенный, торфяной или насыпной, как в моем недавнем случае при строительстве заказчику, тогда свайно-роствертковый фундамент просто необходим.

Вначале при строительстве свайно-ростверткового фундамента расчищаем место под будущим домом, снимаем примерно 300 мм верхнего слоя почвы.
Вначале при строительстве свайно-ростверткового фундамента расчищаем место под будущим домом, снимаем примерно 300 мм верхнего слоя почвы.
Роем котлован под септик. Коммуникации заводим сразу.
Роем котлован под септик. Коммуникации заводим сразу.
Разметка, монтаж свай и ростверка требует высокой точности.
Разметка, монтаж свай и ростверка требует высокой точности.
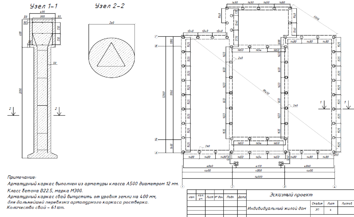
Обычно сваи армируются четырьмя прутками (реже тремя) диаметром не менее 12 мм. Выпуск арматуры над землей для связки с ростверком не менее 300 мм.
Обычно сваи армируются четырьмя прутками (реже тремя) диаметром не менее 12 мм. Выпуск арматуры над землей для связки с ростверком не менее 300 мм.
Перед заливкой бетоном плиты, необходимо проверить все коммуникации подведенные к дому.
Перед заливкой бетоном плиты, необходимо проверить все коммуникации подведенные к дому.
Теперь давайте сравним основные затраты на разные типы фундаментов домов площадью 200 м2.
Теперь давайте сравним основные затраты на разные типы фундаментов домов площадью 200 м2.

Сыпучие строительные материалы, такие как песок и щебень считаются относительно незначительными в плане затрат на весь объект. От бетона до крепежа расход материалов на свайно-роствертковый более существенный, а работа по возведению свайно-ростверткового фундамента будет дороже ленточного, так как требует более высокой квалификации монтажников, даже с учетом разницы в черновой кладке кирпича.

Как в итоге получаем, что ленточный обойдется минимум на 30-35% дешевле (Тут еще нужно учитывать совесть строителей). Да, не спорю, возведенный по всем правилам свайно-роствертковый фундамент имеет более длительный срок службы, но просто порой доходит до маразма - по проекту более 60 свай на одноэтажный дом. Как будто строительство ведется в сейсмически опасной зоне, а хозяин недвижимости «Дункан Маклауд».

Конечно, мой дом моя крепость, но финансовые затраты в связи с подорожавшим материалом в разы, нещадно бьют по карману заказчика. Так что, в конечном счете, решать все-равно Вам.

Спасибо Вам если дочитали мою статью до конца. Надеюсь, она была Вам полезной.