Найти в Дзене
Дом Мечты

Не делайте эти 6 ошибок в планировке загородного дома

1. Не учтены стороны света. При планировке загородного дома не забывайте учитывать ориентацию дома относительно сторон света. Плотное расположение окон на южной стороне может привести к перегреву летом, а недостаточное освещение северной стороны может создать проблемы в освещении помещений. 2. Всего лишь один вход в дом. Одиночный вход в дом может создать неудобства для жильцов и гостей. Предусмотрите возможность добавления дополнительных входов, например, через гараж или задний двор, чтобы обеспечить удобство доступа и безопасность. 3. Недостаточное количество подсобных помещений. Наконец, недостаточное количество подсобных помещений может стать проблемой для хранения инструментов, садового оборудования и других вещей. Предусмотрите достаточное количество складских помещений при проектировании вашего дома, чтобы избежать беспорядка и хаоса. 4. Кухня слишком далеко от гаража. Это может показаться мелочью, но когда вы перетаскиваете тяжелые пакеты с продуктами через весь дом, поймете,
Оглавление

1. Не учтены стороны света.

При планировке загородного дома не забывайте учитывать ориентацию дома относительно сторон света. Плотное расположение окон на южной стороне может привести к перегреву летом, а недостаточное освещение северной стороны может создать проблемы в освещении помещений.

2. Всего лишь один вход в дом.

Одиночный вход в дом может создать неудобства для жильцов и гостей. Предусмотрите возможность добавления дополнительных входов, например, через гараж или задний двор, чтобы обеспечить удобство доступа и безопасность.

Купить в Калуге дом из газоблока "Токио"

3. Недостаточное количество подсобных помещений.

Наконец, недостаточное количество подсобных помещений может стать проблемой для хранения инструментов, садового оборудования и других вещей. Предусмотрите достаточное количество складских помещений при проектировании вашего дома, чтобы избежать беспорядка и хаоса.

4. Кухня слишком далеко от гаража.

Это может показаться мелочью, но когда вы перетаскиваете тяжелые пакеты с продуктами через весь дом, поймете, насколько это неудобно. Разместите кухню ближе к гаражу, чтобы сделать переноску продуктов более легкой и быстрой. Да и меньше шансов, что молоко прогреется на солнце!

5. Отсутствие тамбура

Тамбур — это ваш первый шанс сделать хорошее впечатление на гостей и избежать беспорядка в доме. Он защищает ваш дом от холодного или горячего воздуха, пыли и грязи с улицы. Поэтому не забудьте о нем при проектировании вашего загородного дома.

Дом в Калуге "Женева" из газобетона купить

6. Разделение кухни и столовой

Слишком близко, и вы будете толкаться друг с другом, слишком далеко, и вам придется делать марафоны между столом и плитой. Идеальное разделение между кухней и столовой — это не только о комфорте, но и о практичности. Подумайте о том, чтобы создать гармоничное сочетание между этими двумя пространствами.

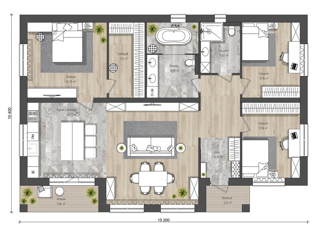
Очень удачная интеграция кухни и гостиной в этом проекте, посмотрите👇 :

Планирование загородного дома — это сложный процесс, требующий внимания к множеству деталей. Надеемся, что эти советы помогут вам избежать распространенных ошибок и сделать загородный дом максимально комфортным и функциональным.

Хотите посмотреть планировки готовых домов с полной стоимостью их строительства ? Нажимайте 👇👇👇

Дома из газобетона