Найти в Дзене

ТОП-3 проектов домов с террасой на 2024-й год.

Наступает время посиделок на свежем воздухе. В городе мы выберем себе если не квартиру с террасой, то столик на веранде ресторана, а вот загородом можем позволить себе две, три (или больше!) террасы любой площади. Сегодня рассказываем о ТОП-3 проектов домов с террасами, разработанных нами, особенно актуальных в это время года. №3. Проект современного коттеджа М460. Если вы в поисках проекта компактного двухэтажного дома с максимально продуманной планировкой, рекомендуем обратить на него внимание: неподвластный времени дом традиционного силуэта органической архитектуры, он вмещает в себя всё необходимое. Прихожая зона состоит из технического помещения, гардеробной и постирочной, где кстати будет удобно разместить лапомойку. Из холла первого этажа мы можем попасть в гостевую спальню, санузел, кладовую и, пройдя через кухню-гостиную, на террасу. Терраса первого этажа полностью остеклена безрамной сдвижной системой. Даже в дождливый день здесь приятно выпить чай и насладиться открывающимся
Оглавление

Наступает время посиделок на свежем воздухе. В городе мы выберем себе если не квартиру с террасой, то столик на веранде ресторана, а вот загородом можем позволить себе две, три (или больше!) террасы любой площади. Сегодня рассказываем о ТОП-3 проектов домов с террасами, разработанных нами, особенно актуальных в это время года.

№3. Проект современного коттеджа М460.

Если вы в поисках проекта компактного двухэтажного дома с максимально продуманной планировкой, рекомендуем обратить на него внимание: неподвластный времени дом традиционного силуэта органической архитектуры, он вмещает в себя всё необходимое.

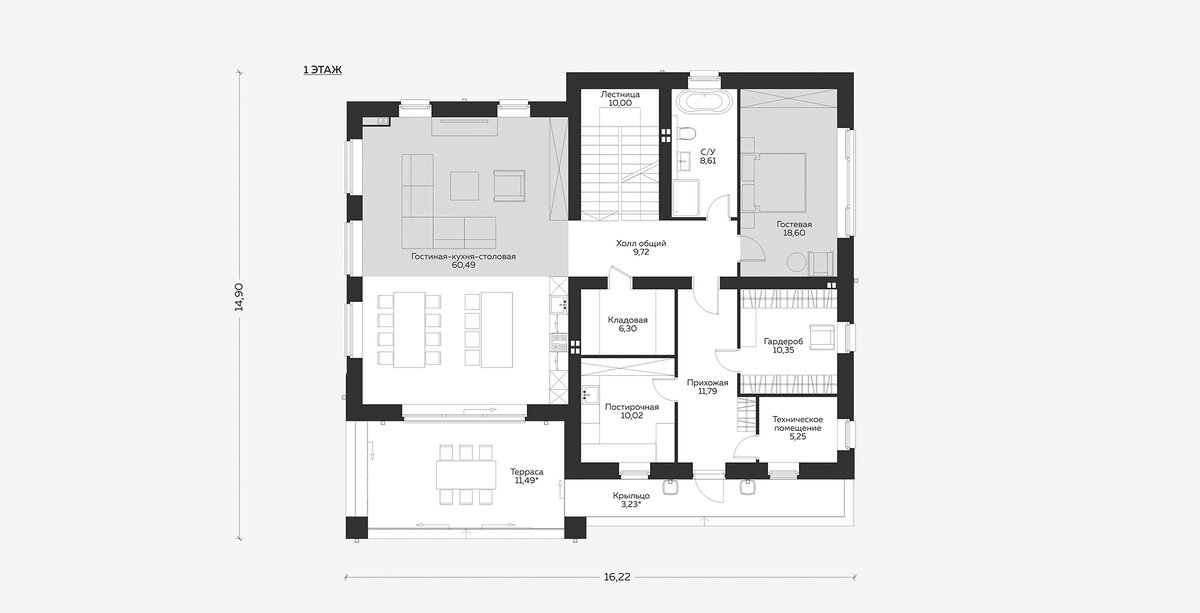
М460. Планировка 1-го этажа.
М460. Планировка 1-го этажа.

Прихожая зона состоит из технического помещения, гардеробной и постирочной, где кстати будет удобно разместить лапомойку. Из холла первого этажа мы можем попасть в гостевую спальню, санузел, кладовую и, пройдя через кухню-гостиную, на террасу. Терраса первого этажа полностью остеклена безрамной сдвижной системой. Даже в дождливый день здесь приятно выпить чай и насладиться открывающимся перед нами видом без всяких помех, а в хорошую погоду раскрыть все окна, соединив сад и интерьер в единое целое.

Второй этаж – приватная часть дома с тремя спальнями, среди которых мастер-спальня с отдельной гардеробной, ванной комнатой и выходом на террасу, санузел, гардероб.

М460. Планировка 2-го этажа.
М460. Планировка 2-го этажа.

Терраса второго этажа, немного расширяясь, повторяет форму террасы первого и продолжается балконом над входной зоной и крыльцом. Терраса крытая, но не застекленная, с парапетом из кирпича и прочного безопасного стекла. В отличие от первого этажа, где терраса – логичное продолжение гостиной-кухни-столовой, место сбора семьи, терраса второго этажа – скорее место уединенное, здесь можно остаться наедине со звуками природы и прочувствовать всю прелесть загородной жизни.

№2. Проект роскошной резиденции М411.

Яркий пример монументальной архитектуры в стиле неоклассицизма и ар-деко. Гармоничное сочетание симметрии в формах и пропорциях, контрастная отделка и резные декоративные элементы создали неповторимый образ дома, который идеально смотрится в окружающем ландшафте.

М411. Планировка 1-го этажа.
М411. Планировка 1-го этажа.

Дом состоит из трех взаимосвязанных объемов, в архитектуре такая планировка называется трехчастной:

  1. Центральная часть – это группа входных комнат с просторным холлом и лестницей, двумя гардеробами (сезонным и постоянным), санузлом, гостевой комнатой и кабинетом.
  2. Слева – зона SPA и бассейна, с тренажерным залом, хаммамом и сауной.
  3. Справа – кухня, гостиная и столовая, продолжающаяся на веранде, а после на террасе.

Просто представьте: неспешный семейный ужин в теплый летний вечер, окна открыты настежь, легкий ветерок играет тюлем и листьями. Размеренные разговоры плавно перетекают с веранды на крытую террасу: чай можно подавать здесь.

Терраса обхватывает дом, подчеркивая его эффектную парадную часть и, огибая слева и справа, усиливает ощущение масштаба.

Терраса внутреннего двора, выход на которую есть из постирочной, гостевой спальни, кабинета и кухни, создает множество вариаций жизненных маршрутов. Таким образом, благодаря террасам мы получаем практически безграничное, объединенное с природой пространство.

М411. Планировка 2-го этажа.
М411. Планировка 2-го этажа.

Второй этаж полностью отведен для отдыха домовладельцев. Центральное пространство здесь занято мастер-спальней с выходом в просторную ванную, две гардеробные и на небольшой балкон. Также на втором этаже размещены две детские комнаты с личными гардеробными и санузлом, дополнительная спальня с гардеробом и своим санузлом, кладовая.

№1. Проект яркого и стильного дома М472.

Однозначно ТОП-проект среди домов с террасами. Проект-отражение сути индивидуального проектирования. Амбициозный и перспективный, он выходит за пределы стандартных типовых планировок. Дом по проекту М472 – отражение мировоззрения и образа жизни человека. Здесь не нужно изменять своим жизненным принципам. Здесь мы не просто говорим о комфорте, мы его создаем собственноручно, тем самым повышая качество жизни.

М472. Планировка 1-го этажа.
М472. Планировка 1-го этажа.

С крыльца мы можем пройти в прихожую зону или сразу на техническую кухню – это очень удобно, продукты попадают сразу в зону хранения и готовки, сокращая время и расстояние. Через прихожую открывается роскошный вид на лестницу, ведущую на второй этаж, и пространство холла. Правую часть первого этажа занимает тренажерный зал, сауна с душевой и санузлом, гостевая комната и постирочная, левую - игровая, кладовая, венткамера. Значительный объем левого крыла дома раскрывается в едином пространстве кухни-столовой и гостиной. Идеальная парадная кухня сохраняет первозданную красоту интерьера, ведь в непосредственной близи находится вход в техническую кухню.

Обширная терраса становится лаконичным продолжением гостиной. Благодаря L-образной форме тут легко разместятся и диван, и обеденная зона – пространство располагает к семейным обедам и праздникам в компании близких.

М472. Планировка 2-го этажа.
М472. Планировка 2-го этажа.

Второй этаж – это приемная, кабинет с мини-баром, 2 мастер-спальни со своими собственными санузлами и гардеробными. Хозяйский блок помимо традиционного набора мастер-спальни включает в себя будуар и две прилегающие террасы с выходами из спальни и из ванной комнаты.

Террасы в проекте М472 стилистически продолжают общую концепцию дома, соединяют жилое пространство и окружающий ландшафт, позволяют находиться вне стен и сохранять при этом привычный уровень комфорта. Ощущение свободы в собственном доме способствует релаксации, создает приятные ассоциации и позволяет чувствовать себя в гармонии с окружающим миром.