Найти в Дзене
Дом Мечты

Строишь без проекта? Будь готов потратить в три раза больше

Многие отказываются от проекта, видя в этом экономию времени и средств, Действительно, зачем тратить десятки тысяч на проект одноэтажного дома в 70 квадратов? Если вы строите методом подряда строительной бригады без хорошего проекта с раскладкой вам придётся жить на стройке и забыть про своё свободное время, хобби и отдых, а особенно про здоровую нервную систему, чтобы вам не обещал прораб. Во-первых. Тяжело контролировать затраты на стройматериалы. Конечно вы "прикинете" с прорабом сколько нужно песка, цемента, кирпича, армопояса и тд, но скорее всего через пару дней поедете докупать половину из этого списка и еще раз заплатите за доставку, и купите уже без скидки за объём, так как будете покупать остаток. Но это не конец, ещё через неделю - другую, прораб вам скажет что вы неправильно посчитали и от закупленного останется четверть лишнего. Вроде бы и ничего, пригодится, но это ваши деньги, которые вы хотели сэкономить, а теперь они потрачены и просто лежат.
Хуже если вы доверите
Оглавление

Многие отказываются от проекта, видя в этом экономию времени и средств, Действительно, зачем тратить десятки тысяч на проект одноэтажного дома в 70 квадратов?

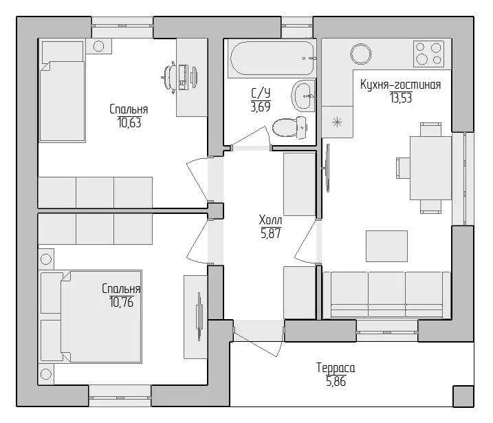
Строительство дома по проекту "Дублин" в Калуге

Если вы строите методом подряда строительной бригады без хорошего проекта с раскладкой вам придётся жить на стройке и забыть про своё свободное время, хобби и отдых, а особенно про здоровую нервную систему, чтобы вам не обещал прораб.

Во-первых. Тяжело контролировать затраты на стройматериалы. Конечно вы "прикинете" с прорабом сколько нужно песка, цемента, кирпича, армопояса и тд, но скорее всего через пару дней поедете докупать половину из этого списка и еще раз заплатите за доставку, и купите уже без скидки за объём, так как будете покупать остаток. Но это не конец, ещё через неделю - другую, прораб вам скажет что вы неправильно посчитали и от закупленного останется четверть лишнего. Вроде бы и ничего, пригодится, но это ваши деньги, которые вы хотели сэкономить, а теперь они потрачены и просто лежат.

Хуже если вы доверите закуп без вашего участия, тогда и никакой договор вам не поможет, потому что невозможно узнать сколько реально ушло мешков цемента на строительство, ведь вы даже не знаете сколько реально должно было бы уйти. Ноль контроля расходов за стройматериалами, ну или контроль есть через нервы и деньги.

Во-вторых. Неприятные неожиданности. Забыли про гидроизоляцию, подвод коммуникаций в нужном месте, сделали подвод не стой стороны и тд, и тп, и до бесконечности. Ещё хуже если в один прекрасный момент вы узнаете, что вам залили армопояс, а вы не просили, просто где-то недопоняли друг друга, в итоге смета увеличилась на полмиллиона.

Этот список можно продолжать, но интересно узнать, был ли у вас опыт строительства без проекта, с чем столкнулись или всё прошло гладко?

Купить дом из газоблока "Мюррен" в Калуге

Мы всё-таки за проекты, когда есть договор на строительства по проекту и деньги целее, и нервы, и контроль есть. Например, в готовом проекте есть смета по этапам строительства и вы при необходимости на любом этапе можете прикинуть укладываетесь вы или нет, и почему. Да и закуп материала куда точнее, так как к проекту прилагается полный расчет стройматериалов по последнего самореза и остатки должны быть минимальными.

Самый лучший вариант, это не купить проект и нанять бригаду. Самый лучший вариант это заказать строительство у компании которая делает всё от проектной документации и строительства до чистовой отделки.

Если не поленитесь, сядете и прикинете сколько в деньгах вам обойдется самостоятельное строительство и строительство по проекту, то поймёте, что не стоит тратить своё время, нервы и здоровье. Можно заключить договор с надёжным застройщиком и тратить на это по 25000 - 40000 рублей в месяц, как если бы строили сами "по мере возможности". Только тут за эти деньги вы получаете: гарантию, профессионалов, спеццены на стройматериалы и готовый дом с внутренней и внешней отделкой.

Как заказать строительство дома за такие деньги? Переходите на наш сайт, выбирайте дом, всё решим! 👇👇👇

Дома из газобетона