Добавить в корзинуПозвонить
Найти в Дзене
Дарю тепло Казани

отопление в одноэтажном доме в Усадах

Сегодня будет сделан обзор одноэтажного дома в Усадах. В доме сделана двухтрубная система отопления с утеплением труб специальным утеплителем ( для меньших теплопотерь). утепление пола пенополистиролом и укладка теплого пола шагом 20 см. Кроме того выведены трубы для конвектора и отсечено место установки пенополистиролом (фото ниже). Также установлены в каждой комнате Алюминиевые секционные батареи. Выведены водоразетки в сан узле.

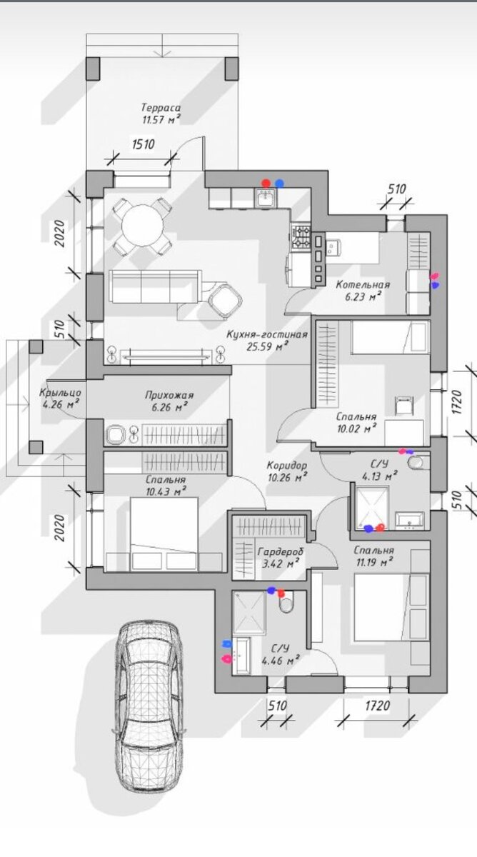
Сегодня будет сделан обзор одноэтажного дома в Усадах.

У дома очень интересная планировка совмещенная кухня-гостинная, 3 спальных комнаты, 2 санузла, гардероб и отдельная котельная, что теперь редкость в наших краях. Как обычно бывает домовладельцы вешают котел на кухне под кухонную гарнитуру и просят сделать невозможное прося сделать им супер пупер обвязку с несколькими смесительными узлами коллекторами и гидрострелками. Мое мнение отдельная котельная в частном доме должна быть. где вы сможете осуществить в свои задумки в жизнь. Но в данном случаи заказчик захотел простенькую обвязку котла.
У дома очень интересная планировка совмещенная кухня-гостинная, 3 спальных комнаты, 2 санузла, гардероб и отдельная котельная, что теперь редкость в наших краях. Как обычно бывает домовладельцы вешают котел на кухне под кухонную гарнитуру и просят сделать невозможное прося сделать им супер пупер обвязку с несколькими смесительными узлами коллекторами и гидрострелками. Мое мнение отдельная котельная в частном доме должна быть. где вы сможете осуществить в свои задумки в жизнь. Но в данном случаи заказчик захотел простенькую обвязку котла.
котельная
котельная

В доме сделана двухтрубная система отопления с утеплением труб специальным утеплителем ( для меньших теплопотерь). утепление пола пенополистиролом и укладка теплого пола шагом 20 см. Кроме того выведены трубы для конвектора и отсечено место установки пенополистиролом (фото ниже).

-3

Также установлены в каждой комнате Алюминиевые секционные батареи.

Выведены водоразетки в сан узле.

-4