Найти в Дзене
ЭТО ВАШ ИНТЕРЬЕР

Полное преображение "убитого" жилья — как мы с мужем переделали старую квартиру в доме старого фонда (фото До и После)

Главные герои сегодняшней статьи — супружеская пара и двое детей. Хозяин квартиры является французом, который очень любит советскую архитектуру и советскую эстетику, он даже коллекционирует советские плакаты, которые встречаются по всей квартире. Они купили эту четырехкомнатную квартиру в столице, рядом с Патриаршими прудами. Дом, в котором находится квартира, буквально пропитан историей, ведь он построен в 1927 году. Помимо хорошей площади, у квартиры есть еще много плюсов, например, окна в квартире выходят на три стороны и из них открывается прекрасный вид на город. Есть даже окна, через которые видно церковь, где венчалась сам Пушкин. Проект Прихожая В качестве напольного покрытия в прихожей выступает серый керамогранит. Что касается стен, то их покрасили в нейтральный светлый оттенок. Здесь разместили подвесную консоль, зеркало и большой шкаф с зеркальными фасадами. Кухня Ремонтные работы начались с перепланировки. Кухню хотели объединить с гостиной, но из-за газовой плиты от эт
Оглавление

Главные герои сегодняшней статьи — супружеская пара и двое детей. Хозяин квартиры является французом, который очень любит советскую архитектуру и советскую эстетику, он даже коллекционирует советские плакаты, которые встречаются по всей квартире. Они купили эту четырехкомнатную квартиру в столице, рядом с Патриаршими прудами.

Дом, в котором находится квартира, буквально пропитан историей, ведь он построен в 1927 году. Помимо хорошей площади, у квартиры есть еще много плюсов, например, окна в квартире выходят на три стороны и из них открывается прекрасный вид на город. Есть даже окна, через которые видно церковь, где венчалась сам Пушкин.

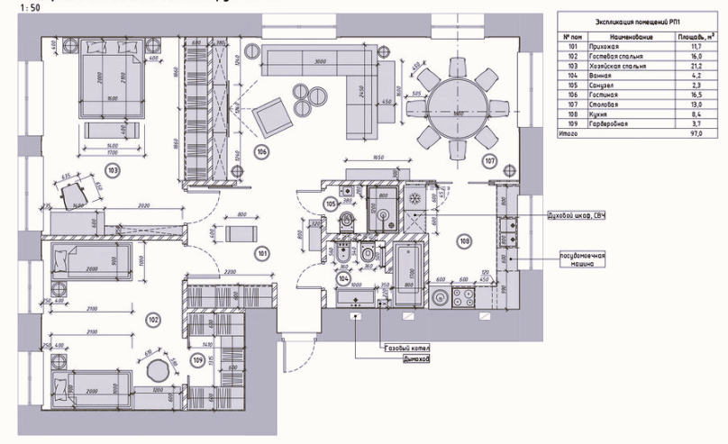
Проект

  • Местоположение: г. Москва
  • Площадь квартиры: 97 кв. м
  • Владельцы: супруги и двое детей

Прихожая

В качестве напольного покрытия в прихожей выступает серый керамогранит. Что касается стен, то их покрасили в нейтральный светлый оттенок. Здесь разместили подвесную консоль, зеркало и большой шкаф с зеркальными фасадами.

Кухня

Ремонтные работы начались с перепланировки. Кухню хотели объединить с гостиной, но из-за газовой плиты от этой идеи отказались и установили между кухней и гостиной сдвижную перегородку.

-4

Так как хозяйка любит красный цвет, было принято решение об установке углового гарнитура в насыщенном красном цвете. Фартук и пол оформили керамогранитом. Мойка была перенесена к окну.

-5

Гостиная

На полу в гостиной уложен паркет. Часть стен оставили в оригинальной кирпичной кладке, для это был приглашен специальный мастер по реставрации. Ближе к кухонной зоне располагается столовая группа с большим стеклянным столом.

В глубине комнаты находится большой угловой диван, журнальные столики, кресло, электрический камин, места для хранения и зона ТВ (правда пока вместо телевизора здесь поставили картину).

Спальня

В хозяйской спальне создали уникальное сочетание минимализма и ярких акцентов, что придало интерьеру свежесть и оригинальность. Для стен здесь использовали обои под покраску и акцентные узорчатые обои красного цвета. У акцентной стены разместили двуспальную кровать. Под кроватью есть выдвижные секции для хранения.

Справа от входа был установлен большой шкаф купе с зеркальными фасадами. А вот напротив кровати находится небольшое рабочее место.

-9

Детская

В детской комнате решили немного отойти от красного цвета и использовали здесь белые и желтые цвета. Часть стен покрасили, а другую часть стен оклеили акцентными желтыми обоями с геометрическим принтом. Здесь два окна и возле каждого есть спальное место. Так же здесь имеется рабочий уголок, место для игр и полноценная гардеробная.

Ванная комната и санузел

В результате перепланировки в квартире удалось сделать две полноценные ванные комнаты. В одной установили стандартную ванну, а в другой расположилась просторная душевая. Что касается отделки, то здесь использовали 4 вида плитки, керамогранит и влагостойкую краску.

Если вам понравилась статья, то не забудьте поставить лайк и подписаться, чтобы не пропустить новый материал!

Так же пишите в комментариях, что вам понравилось в этом проекте, а что вызывает сомнения.