Добавить в корзинуПозвонить
Найти в Дзене

Проект дома с мансардой и гаражом 13 на 11

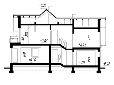
Проект дома с мансардой и гаражом 13 на 11 DT1022 - это уютное и функциональное жилье, которое подойдет как для большой семьи, так и для семьи среднего размера, желающей иметь дополнительное пространство для гостей или хобби. Общая площадь дома составляет 195 квадратных метров, что позволяет разместить в нем 5 спален. Габариты дома - 13.60 на 11 метров, что делает его компактным и удобным для участка средних размеров.
Дом имеет ленточный железобетонный фундамент и стены из керамического блока или газобетона. Утеплитель в стенах - пенопласт толщиной 20 см, что обеспечивает отличную теплоизоляцию. Перекрытия выполнены из монолитного железобетона. Крыша дома - мансардная, покрытая керамической черепицей. Фасад отделан штукатуркой, что придает дому элегантный и современный вид. Стиль дома - европейский, что подчеркивает его изящество и элегантность. В доме предусмотрен гараж на одно место, а также терраса на первом этаже и балкон. Проект дома с мансардой и гаражом 13 на 11 DT1022 - это от
Проект дома с мансардой и гаражом 13 на 11 DT1022
Проект дома с мансардой и гаражом 13 на 11 DT1022

Проект дома с мансардой и гаражом 13 на 11 DT1022 - это уютное и функциональное жилье, которое подойдет как для большой семьи, так и для семьи среднего размера, желающей иметь дополнительное пространство для гостей или хобби.

Проект дома с мансардой и гаражом 13 на 11 DT1022
Проект дома с мансардой и гаражом 13 на 11 DT1022

Общая площадь дома составляет 195 квадратных метров, что позволяет разместить в нем 5 спален. Габариты дома - 13.60 на 11 метров, что делает его компактным и удобным для участка средних размеров.

Дом имеет ленточный железобетонный фундамент и стены из керамического блока или газобетона. Утеплитель в стенах - пенопласт толщиной 20 см, что обеспечивает отличную теплоизоляцию. Перекрытия выполнены из монолитного железобетона.

Проект дома с мансардой и гаражом 13 на 11 DT1022
Проект дома с мансардой и гаражом 13 на 11 DT1022

Крыша дома - мансардная, покрытая керамической черепицей. Фасад отделан штукатуркой, что придает дому элегантный и современный вид.

Проект дома с мансардой и гаражом 13 на 11 DT1022
Проект дома с мансардой и гаражом 13 на 11 DT1022

Стиль дома - европейский, что подчеркивает его изящество и элегантность. В доме предусмотрен гараж на одно место, а также терраса на первом этаже и балкон.

Проект дома с мансардой и гаражом 13 на 11 DT1022 - это отличное решение для тех, кто ценит комфорт, функциональность и красивый дизайн. Этот дом станет идеальным местом для семейного отдыха и жизни.

DT1022 – проект стильного дома с мансардой и гаражом 13 на 11 до 200 кв м