Добавить в корзинуПозвонить
Найти в Дзене
Чайник в ремонте

"Не стройте себе хоромы!" Рассказываю, почему мы жалеем, что имеем квартиру в 100 метров²

Приветствую всех на моем блоге! Сегодня я хочу поделиться с вами размышлениями и опытом, связанным с покупкой большой квартиры. Всё больше людей стремятся к более просторным жилищам, но стоит ли это того? В нашем случае оказалось, что большие квадратные метры не всегда приносят наслаждение. Как только мы с супругой обзавелись квартирой в 100 квадратных метров, нам казалось это настоящим достижением. Просторные комнаты, возможность обустроить рабочий кабинет и детскую – всё звучало идеально. Однако, спустя время пришло осознание некоторых неудобств. Честно говоря, я недооценивал тот факт, сколько времени займёт поддержание чистоты в такой большой квартире. Еженедельная уборка превращается в настоящее испытание – каждый уголок требует внимания и сил. Вместо того, чтобы наслаждаться свободным временем после работы или по выходным, значительная его часть уходит на заботу о доме. Раньше у нас была квартира в 56 квадратных метров, а большую часть полов закрывали ковры. Мыть оставалось метров
Оглавление

Приветствую всех на моем блоге! Сегодня я хочу поделиться с вами размышлениями и опытом, связанным с покупкой большой квартиры.

Всё больше людей стремятся к более просторным жилищам, но стоит ли это того? В нашем случае оказалось, что большие квадратные метры не всегда приносят наслаждение.

Что же нас подтолкнуло к таким мыслям?

Как только мы с супругой обзавелись квартирой в 100 квадратных метров, нам казалось это настоящим достижением.

Просторные комнаты, возможность обустроить рабочий кабинет и детскую – всё звучало идеально. Однако, спустя время пришло осознание некоторых неудобств.

Первая проблема: уборка

Честно говоря, я недооценивал тот факт, сколько времени займёт поддержание чистоты в такой большой квартире.

не наша
не наша

Еженедельная уборка превращается в настоящее испытание – каждый уголок требует внимания и сил. Вместо того, чтобы наслаждаться свободным временем после работы или по выходным, значительная его часть уходит на заботу о доме.

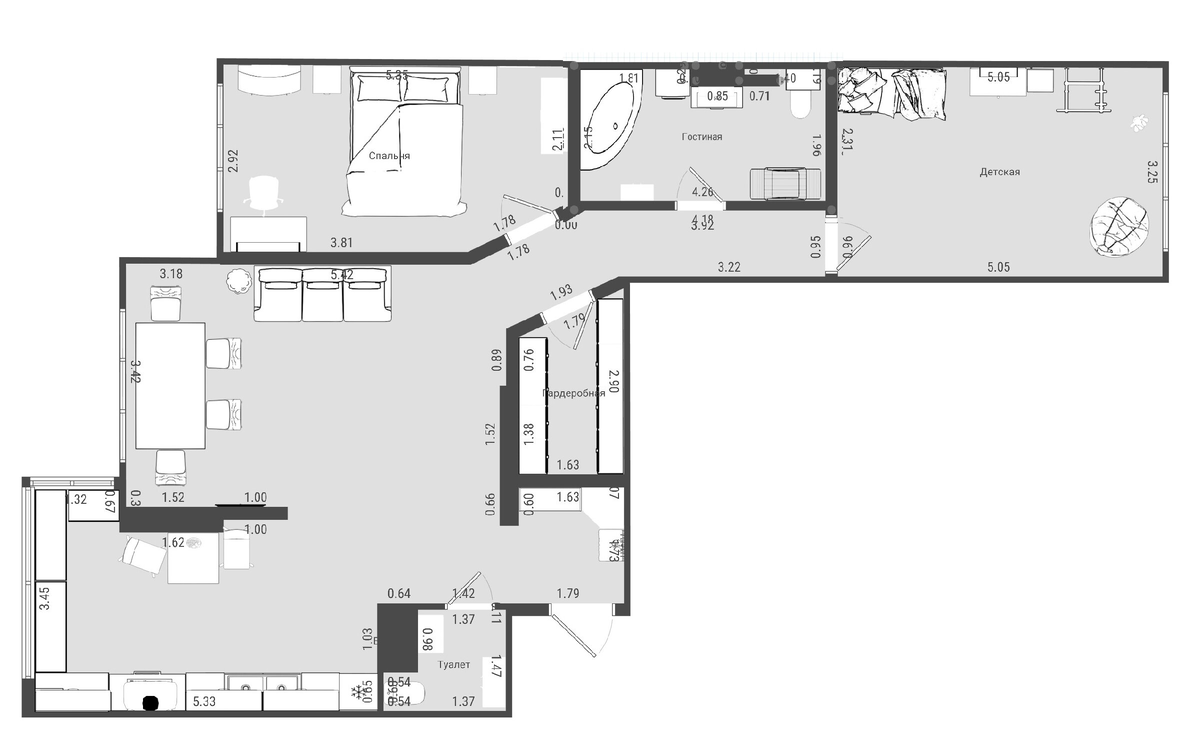
Раньше у нас была квартира в 56 квадратных метров, а большую часть полов закрывали ковры. Мыть оставалось метров 25 от силы. Это было просто. А вот в нашем текущем доме только ковер 2*1,5м в детской, все остальное открытый пол. Плитка.. Кварцвинил..

Мыть почти 95 метров, а перед этим пылесосить это огромное испытание на самом деле. Особенно, если учесть, что маленький ребенок любит оставить в разных комнатах свои игрушки от разных наборов..)))

Вторая проблема: коммунальные платежи

Большая площадь неизбежно ведёт к увеличению расходов на коммунальные услуги.

Это только ОДН, элекстричество ОДН приходит отдельно
Это только ОДН, элекстричество ОДН приходит отдельно

Счета за отопление зимой становятся настоящим шоком для семейного бюджета. Они же считаются из общей площади, а также платежи по ОДН.. А там и содержание жилья, и лифтов, и полив растений у дома и уборка снега зимой, все считается от площади квартир. Даже расчет затрат по электричеству на общие нужды дома.

Даже, если вы стараетесь экономить электроэнергию и воду дома, то итоговая сумма с учетом ОДН всё равно оказывается внушительной.

Но всё же, мы это ожидали, хоть и не совсем свыклись с большими счетами. Зато, теперь у нас просторно, светло, "взгляд не ограничен стенами".

Возможно, для кого-то эти моменты не покажутся столь критичными. Однако для нашей семьи они стали важными основаниями задуматься о рациональности выбора жилья больших размеров. Или хотя бы, если и выбирать больших размеров, то скорее дом, где нет ОДН за многоквартирку.

Если бы мы могли вернуться назад во времени – возможно бы мы сразу начали строить дом. Обычно по счетам он выгоднее.

С другой стороны, если бы тогда выбрали что-то более скромное по площади (квартиру меньше), то не имели бы тех ощущений комфорта, которые часто испытываем сейчас.

Если вы стоите перед выбором покупки квартиры или дома большего размера – подумайте дважды, что будет лучше для вас по разны параметрам. Кстати, дом еще лучше отдаленностью от других соседей, хотя бывает по-разному. Соседи нас в нашей квартире тоже периодически "выводят" шумом и прочими звуками.

Надеюсь наш опыт поможет вам сделать правильный выбор и избежать тех размышлений, с которыми столкнулись мы.

До скорых встреч на страницах моего блога!

Читайте далее:

Начинаю вести блог. Знакомимся
Чайник в ремонте5 июня 2021