Найти в Дзене

ТОП-3 проекта дома в современном стиле на 2024-й год.

ТОП-3 наших проектов в современном стиле воплощают актуальные архитектурные тенденции и отражают предпочтения хозяев. Гармоничное сочетание стиля и функциональности каждого проекта вдохновляет и завораживает. Проект M462: эстетика и комфорт. Этот проект стоит первым в нашем списке лучших благодаря идеальному сочетанию современной простоты, надежности и удобства. Уникальный дом в минималистическом стиле с элементами хай-тек привлекает внимание тех, кто ценит не только уют, но и современный вид фасадов. Дом обладает рядом неоспоримых преимуществ: В проекте особое внимание уделяется энергоэффективности и экологичности. Используются современные материалы и технологии, способствующие экономии электроэнергии и снижению нагрузки на окружающую среду. Проект M462 призван удовлетворить самый изысканный вкус. Это идеальное воплощение современных архитектурных и дизайнерских концепций. Особенности планировки. Несмотря на внешнюю лаконичность, дом внутри удобный и уютный благодаря продуманной плани
Оглавление

ТОП-3 наших проектов в современном стиле воплощают актуальные архитектурные тенденции и отражают предпочтения хозяев. Гармоничное сочетание стиля и функциональности каждого проекта вдохновляет и завораживает.

Проект M462: эстетика и комфорт.

Проект М462.
Проект М462.

Этот проект стоит первым в нашем списке лучших благодаря идеальному сочетанию современной простоты, надежности и удобства. Уникальный дом в минималистическом стиле с элементами хай-тек привлекает внимание тех, кто ценит не только уют, но и современный вид фасадов.

Дом обладает рядом неоспоримых преимуществ:

  1. Монолитный плитный фундамент обеспечивает стабильность и долговечность здания. Считается, что такое основание может прослужить более 100 лет. Ему не страшна ржавчина, он не разрушается от воды, не деформируется из-за движений грунта и веса здания.
  2. Кирпичные стены и монолитные перекрытия обеспечивают хорошую тепло- и звукоизоляцию и сохраняют комфортную атмосферу внутри дома.
  3. Фасад из керамогранита придает зданию привлекательный внешний вид и сохранит его эстетический облик на протяжении многих лет.
  4. Кровля из многослойных наплавляемых битумных материалов обеспечивает надежную защиту от воздействия окружающей среды, что продлевает срок службы здания.

В проекте особое внимание уделяется энергоэффективности и экологичности. Используются современные материалы и технологии, способствующие экономии электроэнергии и снижению нагрузки на окружающую среду.

Проект M462 призван удовлетворить самый изысканный вкус. Это идеальное воплощение современных архитектурных и дизайнерских концепций.

Особенности планировки.

Несмотря на внешнюю лаконичность, дом внутри удобный и уютный благодаря продуманной планировке.

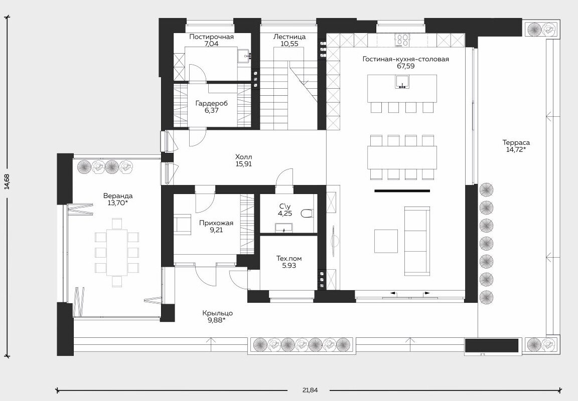
М462. Планировка 1-го этажа
М462. Планировка 1-го этажа

В правой части первого этажа дома расположилась единая зона гостиной, кухни и столовой. Место, где будет приятно провести будничный вечер и отметить памятное событие в кругу близких. Пространство, объединяющее людей и дающее им свободу одновременно. Большой объем этой зоны не ограничивается стенами — панорамные окна и выход на террасу предоставляют возможность в любой момент насладиться природой и загородной жизнью.

Также на первом этаже предусмотрены, не менее важные для комфорта помещения: техническое, гардеробная, санузел и постирочная.

М462. Планировка 2-го этажа
М462. Планировка 2-го этажа

Второй этаж создает оптимальные условия для работы и полноценного отдыха. Здесь есть две спальни, бильярдная, кабинет. Одна из спален, мастер-спальня, с собственным санузлом и гардеробной - грамотное и логичное решение, чтобы принять ванну или душ, переодеться, отдохнуть, не нужно перемещаться по всему дому.

Балконы предоставляют возможность наслаждаться свежим воздухом и красивыми видами. И, кроме этого, придают фасадам выразительность.

В целом планировка проекта M462 отличается удобством и функциональностью. Ее главная цель заключается в создании индивидуального пространства для владельцев, которое соответствует высоким стандартам комфорта и качества.

Архитектурный стиль проекта M462.

Внешний вид дома привлекает внимание своей элегантностью и кубическими формами. Четкие линии, отсутствие лишних деталей и использование нейтральных цветов создают ощущение спокойствия и гармонии. Панорамное остекление дополняет эстетику минимализма.

Проект М428. 2-е место.

Заслуженно занимает высокую позицию в рейтинге ТОП-3 современных домов. Проект М428 выделяется ярким неординарным фасадом, угловыми окнами и грамотной планировкой. Он представляет собой необычный образец современного одноэтажного коттеджа, где реализован свежий архитектурный замысел.

Особенности М428.

Дизайн коттеджа проработан с особой внимательностью даже к самым мелким аспектам. Выбор фасадных материалов не случайный. Кроме таких важных нюансов, как экологичность и износостойкость, большую роль играет смелое цветовое решение, которое удалось реализовать благодаря сочетанию декоративной штукатурки, клинкерной плитки и стали COR-TEN. Кортеновская сталь доминирует и притягивает взгляд — это яркий акцент, бархатистая фактура, практичность и погодоустойчивый фасад: сталь не подвергается разрушительному воздействию коррозии, но в естественных условиях происходит окисление, и природа буквально у вас на глазах создает неповторимый оттенок (второго такого точно нет ни у кого!).

Строительство базируется на применении качественных материалов и современного технологического видения, обеспечивающих долговечность и надежность конструкции:

Эти материалы не только придают коттеджу эстетическую привлекательность, но и обеспечивают его защиту от внешних воздействий и сохранность на протяжении многих лет.

Внутренняя планировка

М428. Планировка
М428. Планировка

Входная группа представлена блоком технических и хозяйственных комнат: прихожая, гардеробная, санузел, постирочная, кладовая (для удобства пользования, вход осуществляется со стороны кухни-столовой).

Гостиная, обеденная и кухонная зоны – место притяжения семьи, центр и сердце дома, обеспечивают уютную и гармоничную атмосферу. На кухне, объединенной с гостиной, приятно готовить и общаться с близкими. Пространство позволяет устроить кулинарный мастер-класс с друзьями или приготовить ужин всей семьей.

Вдоль двух фасадов простирается частично крытая терраса, предоставляющая прекрасную возможность наслаждаться отдыхом на свежем воздухе и проводить летние вечера.

Правая часть дома – приватная. Здесь расположены две спальни, сауна, санузел и мастер-спальня. Она включает в себя просторный санузел, гардероб, а также рабочий кабинет – идеально, чтобы соблюдать work-life balance.

Угловые окна достойны отдельного внимания. В проекте их 4, но они расположены не банально, а вписаны органично и ненавязчиво, изысканным штрихом во внешнем облике дома и его внутреннем дизайне. Большая площадь остекления придает обстановке особую легкость, наполняет ее воздухом, визуально раздвигая стены пространства, увеличивает освещенность помещения вдвое лучше и позволяет любоваться красотами собственного сада.

Проект М468. 3-е место.

Третье место нашего рейтинга с достоинством занимает проект М468. Адаптивность к современным потребностям, сочетание функциональной планировки и изысканного дизайна бесспорно дают ему конкурентное преимущество.

Планировка М468

Из решений планировки складывается будущее качество жизни жильцов дома. В проекте М468, архитектор предлагает индивидуальную ванную комнату при каждой спальне, что существенно повышает уровень комфорта. По традиции в мастер-спальне, помимо собственного санузла, есть и отдельная гардеробная.

Котельная, гардеробная в прихожей, гостевой санузел и постирочная — стандартный перечень обязательных технических помещений, в этом доме есть всё и даже больше.

Идея устройства сауны в доме достаточно привлекательна и абсолютно точно реальна, например, как в этом проекте. Для многих людей — это любимое место, где можно отдохнуть после рабочего дня, погреться в непогоду и получить пользу для здоровья. При правильно организованной парильне, надежном оборудовании и качественном монтаже такая сауна будет безопасной.

Гостиная, кухня и столовая объединены, но благодаря Г-образной форме, зонированы. Такая планировка кухни-гостиной позволила вписать внутреннюю террасу, которая служит логичным продолжением обеденной зоны. Терраса – укромный уютный уголок, закрытый с трех сторон стенами, предполагает ассиметричный тканевый навес вместо крыши. Такая легкая невесомая деталь напоминает парус и не перекрывает небо.

Особенности проекта М468

Для строительства фундамента выбран монолитный железобетон, гарантирующий прочность и стабильность здания. Наружные стены из газобетона в сочетании с каменной ватой гарантируют превосходную тепло- и шумоизоляцию. Это обеспечивает уютную атмосферу внутренней обстановки, делая дом более энергоэффективным. Наплавляемая битумная кровля обеспечивает защиту от воздействия влаги и атмосферных факторов. Такой выбор обеспечивает прочность и долговечность на протяжении длительного времени.

Облицовка фасада кирпичом ригель формата и цоколь из натурального камня подчеркивают эстетичную архитектуру и стиль проекта.

Заключение

Последние тренды архитектуры и дизайна отражены в проектах рейтинга ТОП-3. Соединяя актуальные технологии и решения, они демонстрируют инновационный подход к формированию пространства и использованию материалов и отвечают высоким стандартам современного жилья.