Добавить в корзинуПозвонить
Найти в Дзене
Проектная мастерская №16

Проект одноэтажного дома площадью 82кв.м. с двумя спальнями с размерами помещений, планом фундамента и схемой стропил

Доброго времени года. Сегодня вашему вниманию скорректированный проект одноэтажного дома на 82кв.м.
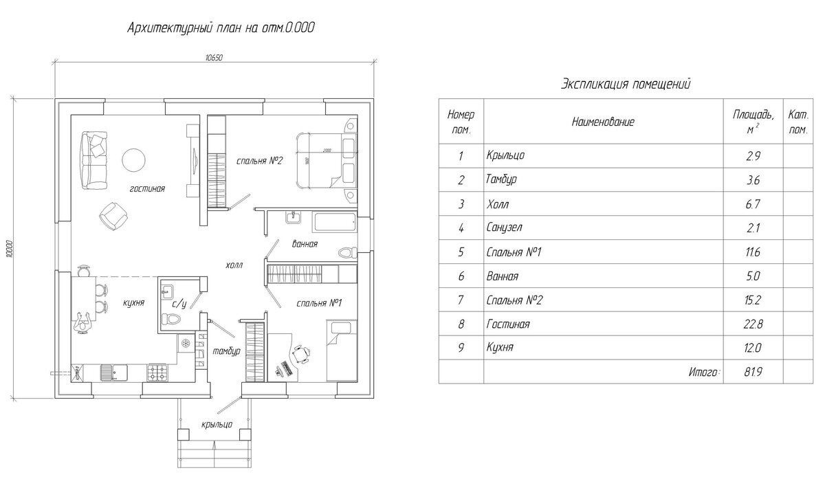
Скачать проект с яндекс-диска Дом имеет прямоугольную форму в плане с размерами 10.65х10м. Фасад дома выполнен керамическим лицевым кирпичом 1.4НФ. Входная группа дома включает крыльцо под навесом на двух кирпичных столбах и тамбур-прихожую на 3.6кв.м. Сразу после прихожей справа находятся две спальные и ванная комнаты, а слева - второй санузел и гостиная с кухней. Больше вариантов планировок на нашей странице каждый день!

Доброго времени года. Сегодня вашему вниманию скорректированный проект одноэтажного дома на 82кв.м.


Скачать проект с яндекс-диска

Дом имеет прямоугольную форму в плане с размерами 10.65х10м. Фасад дома выполнен керамическим лицевым кирпичом 1.4НФ. Входная группа дома включает крыльцо под навесом на двух кирпичных столбах и тамбур-прихожую на 3.6кв.м. Сразу после прихожей справа находятся две спальные и ванная комнаты, а слева - второй санузел и гостиная с кухней.

-2

Больше вариантов планировок на нашей странице каждый день!