Найти в Дзене
ЭТО ВАШ ИНТЕРЬЕР

Пожилые супруги купили квартиру, чтобы наконец-то пожить в свое удовольствие. Они показали, как сделали ремонт (фото ДО и ПОСЛЕ)

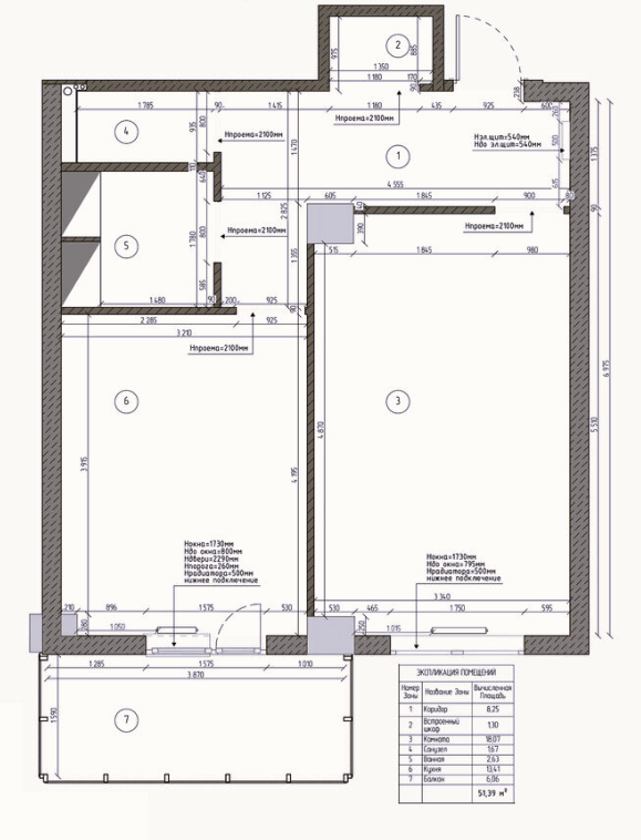
Эта однокомнатная квартира в Санкт-Петербурге принадлежит нашим героям — пожилой супружеской паре. Их дети уже давно выросли и живут отдельно, а наши герои решили начать новую жизнь на новом месте, поэтому продали свою квартиру в пригороде и купили эту "однушку" уже в самом городе. Площадь данной квартиры составляет 51 м², и новые хозяева хотели выжить из этой площади максимум, поэтому они и обратились за помощью к дизайнеру. Проект Прихожая Для облицовки пола был выбран крупноформатный керамогранит, а вот стены покрасили в классический белый цвет. Слева от входа расположился шкаф для одежды, в который интегрировано мягкое сиденье и крючки для верхней одежды. В прихожей так же есть большая ниша, где организовали гардероб. Его замаскировали сдвижной перегородкой из рифленого стекла. Рядом появилась стильная консоль с зеркалом. Кухня Кухня осталась в своих прежних границах. Напольное покрытие здесь такое же, как и во входной зоне. Стены оформлены фактурной штукатуркой светлого оттенка
Оглавление

Эта однокомнатная квартира в Санкт-Петербурге принадлежит нашим героям — пожилой супружеской паре. Их дети уже давно выросли и живут отдельно, а наши герои решили начать новую жизнь на новом месте, поэтому продали свою квартиру в пригороде и купили эту "однушку" уже в самом городе.

Площадь данной квартиры составляет 51 м², и новые хозяева хотели выжить из этой площади максимум, поэтому они и обратились за помощью к дизайнеру.

Проект

  • Местоположение: г. Санкт-Петербург
  • Площадь квартиры: 51 кв. м
  • Владельцы: пожилая супружеская пара

Прихожая

Для облицовки пола был выбран крупноформатный керамогранит, а вот стены покрасили в классический белый цвет. Слева от входа расположился шкаф для одежды, в который интегрировано мягкое сиденье и крючки для верхней одежды.

-3

В прихожей так же есть большая ниша, где организовали гардероб. Его замаскировали сдвижной перегородкой из рифленого стекла. Рядом появилась стильная консоль с зеркалом.

Кухня

Кухня осталась в своих прежних границах. Напольное покрытие здесь такое же, как и во входной зоне. Стены оформлены фактурной штукатуркой светлого оттенка с эффектом шелка.

Справа от входа, во всю стену, установили линейный кухонный гарнитур. Хозяйка просила много мест для хранения, поэтому второй ярус был продлен до самого потолка (там хранятся нужные вещи, но которые нужны не очень часто).

Фасады выполнены в двух цветах: белый и приглушенный оливковый оттенок. С правой стороны разместили функциональные пеналы со встроенной бытовой техникой, включая холодильник. Фартук облицован красивой темной плиткой. В центре кухни располагается столовая группа с интересным светильником.

Комната

Стены в комнате покрасили в белый цвет, а для пола выбрали ламинат. Всю комнату было решено разделить на две функциональные зоны. Первая — это зона гостиной. Здесь расположился красивый диван в серо-голубой обивке, а напротив разместили тумбу и телевизор.

Вторая зона, которая располагается возле окна, это зона спальни. Зонировать её решили перегородкой из тонированного стекла, чтобы естественный свет попадал в гостиную. Здесь поставили двуспальную кровать с большим мягким изголовьем пастельного оттенка. Акцентную стену за изголовьем оформили красивыми обоями.

Напротив спального места поставили стильный шкаф для одежды. А чтобы зрительно не утяжелять пространство, торец шкафа оформили большим зеркалом.

-10

Ванная комната

Ванную комнату решили немного увеличить за счет площади коридора. Пол и стены оформили керамогранитом и тремя видами плитки. Стандартной ванны здесь нет, так как вместо неё установлена просторная душевая.

Перед душевой нашлось место для стиральной машинки, над которой расположился хозяйственный шкаф. Все системы хранения в квартире были сделаны на заказ.

-12

Если вам понравилась статья, то не забудьте поставить лайк и подписаться, чтобы не пропустить новый материал!

Так же пишите в комментариях, что вам понравилось в этом проекте, а что вызывает сомнения.