Найти в Дзене

Коттедж в поселке Лагуна Парк: родовое поместье, которое будет переходить из поколения в поколение

Поделюсь с вами проектом моей студии — Коттедж в поселке Лагуна Парк.
Проект находится на этапе реализации, поэтому поделюсь 3d-визуализациями.

Этот дом для заказчиков и их семьи не просто дом, а родовое поместье, которое будет переходить из поколения в поколение.
Мы постарались сделать дом уютным и практичным, а также учесть интересы и пожелания всех членов семьи.
Дом впечатляет своими размерами, он невероятно большой, поэтому покажу вам не все зоны, а самые интересные и основные.

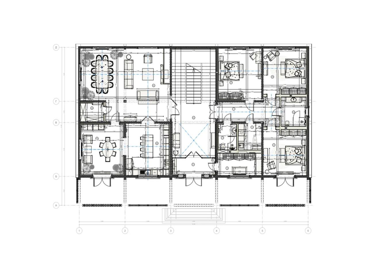
Планировочное решение

Уникальность планировки дома заключается в его полном соответствии принципам Фэн-шуй, учитывая стороны света и расположение комнат в соответствии с нужными секторами. Три этажа дома создают особую гармонию и уют для его жителей.

-2

Тамбур и коридор

Через массивную стеклянную перегородку от входа в дом открывается зона коридора, где хозяева и гости могут удобно разуться и оставить одежду в гардеробной. Этот тамбур является первым прикосновением к стилю, который будет повторяться во всех других помещениях.

При входе в коридор взгляд притягивает двухмаршевая лестница с изящными резными балясинами и дубовыми ступенями.

Высокий потолок с вторым светом и изысканной люстрой, спускающейся через весь второй этаж, придает коридору атмосферу легкости и изыска. Люстра, выполненная в виде россыпи хрустальных подвесов, прекрасно сочетается с массивным интерьером и брусовыми стенами.

Из коридора открываются двери в общую зону с гостиной, столовой и кухней, а также в приватную зону с уютными спальнями, создавая гармоничное пространство для жизни и отдыха.

-3
-4

Гардеробная

Просторная гардеробная радует своей светлой атмосферой и продуманным функционалом, представленным в виде высоких шкафов, рассчитанных на хранение одежды и аксессуаров.

-5

Столовая

На первом этаже левого крыла дома находится общественное пространство, объединяющее гостиную, столовую, кухню и уютную комнату для утренних завтраков и чаепитий, которую мы называли «чайной».

Великолепный резной стол в столовой способен вместить до 12-14 гостей для приятных посиделок.

-6

Гостиная

В доме находится уютная гостиная с прекрасным дровяным камином, создающим атмосферу тепла и уюта.

Здесь расположены два больших комфортабельных дивана и кресло, где каждый член семьи сможет насладиться отдыхом и уютной обстановкой.

-7

Кухня

Из гостиной-столовой переходим в просторную кухню, где мебель оформлена в нежных зеленых тонах с учетом принципов Фэн-шуй.

Здесь обустроена большая зона для приготовления пищи, полностью оснащенная техникой, островок, раковина у окна — все это позволяет воплотить в жизнь мечты любой хозяйки.

-8

Чайная

Из кухни переходим в уютную столовую, предназначенную для утренних завтраков в узком кругу и чаепитий с видом на природу.

Это помещение выделяется своим уникальным дизайном, специально созданным для создания атмосферы уюта и спокойствия.

Интерьер столовой выполнен в восточном стиле «Шинуазри», где присутствуют элементы и техники традиционного китайского искусства, придающие ей особый шарм.

-9

Спальня хозяина

Переходим ко второму этажу.
Интерьер спальни хозяина выделяется своей мужественностью и силой. Здесь каждая деталь продумана до мелочей: массивная деревянная кровать с изысканным резным узором, два массивных кресла и стильный комод.

В этой комнате царит атмосфера спокойствия и изыска, подчеркивающая индивидуальность и вкус хозяина.

-10

Спальня хозяйки

Интерьер спальни хозяйки пронизан легкостью и изяществом.

Каждая деталь здесь словно произведение искусства: нежная роспись на стене за кроватью, утонченное изголовье с красивой обивкой, изысканная мебель, включая туалетный столик, элегантные кресла и стильный комод.

В этой комнате витает атмосфера изысканности и утонченности, отражающая тонкий вкус и индивидуальность хозяйки.

-11

Детская

В детской царит особая атмосфера благодаря необычной мебели, которая добавляет уют и уникальность интерьеру.

Брусовые стены с вставками из обоев создают уютное и удивительное пространство.

Кроме того, в одной из комнат дома предусмотрено спальное место для няни.

-12

Санузел при спальне хозяина

Ванные комнаты украшены крупными плитками из керамогранита, придавая им стильный и современный вид.

Ванная комната выглядит очень мужественно, сочетаясь с общим дизайном спальни хозяина.

-13

Санузел при спальне хозяйки

Ванная комната получилось очень нежная, помещение продолжает эстетику комнаты хозяйки.

-14

Санузел при детской

Ванная комната в детской спальне оформлена в бирюзовых оттенках, создавая атмосферу свежести, которая наполняет пространство яркими красками.

-15

Кабинет

На третьем этаже расположен кабинет с большим арочным окном.

-16

Подпишись, чтобы не пропустить новые статьи о дизайн-проектах моей студии TB.Design❤️

Если хотите получить идеальный дизайн-проект с учётом всех ваших пожеланий, то переходите по ссылке 👉 https://tbdesign.pro/services