Добавить в корзинуПозвонить
Найти в Дзене
VOLDOMA

Что лучше: типовой или индивидуальный проект

Начнем с понимания, чем отличается типовой проект от индивидуального. Типовой проект – это продуманный архитекторами и инженерами проект, по которому строители создают красивые и долговечные дома. Индивидуальный проект – это проект, адаптированный под нужды конкретного заказчика, воплощение его идей и фантазий. Но почему же не все выбирают создание индивидуального проекта, раз он кажется таким идеальным? Дело в том, что у него тоже есть свои недостатки: При этом индивидуальное проектирование имеет неоспоримые плюсы: Выбирая между типовым и индивидуальным проектом, важно понимать, что их достоинства можно объединить. Для этого специалисты компании VOLDOMA адаптируют типовые проекты: Например, чтобы добавить больше света, переориентируем дом и увеличим оконные проемы. Чтобы было максимально комфортно, перенесем крыльцо, уберем террасу или внесем некоторые другие конструктивные изменения. Это позволяет исключить какие-либо неудобства в процессе эксплуатации дома. Приведем пример. У нас ес

Начнем с понимания, чем отличается типовой проект от индивидуального.

Типовой проект – это продуманный архитекторами и инженерами проект, по которому строители создают красивые и долговечные дома.

Индивидуальный проект – это проект, адаптированный под нужды конкретного заказчика, воплощение его идей и фантазий.

Но почему же не все выбирают создание индивидуального проекта, раз он кажется таким идеальным? Дело в том, что у него тоже есть свои недостатки:

  • Стоимость реализации индивидуального проекта выше, чем типового. Кроме того, конечную цену вы сможете узнать только после завершения проектирования.
  • Низкая ликвидность по сравнению с типовым проектом. При продаже готовый дом может стоить несколько дешевле из-за оригинальных запросов владельца.
  • Индивидуальные проекты создаются дольше. Типовое строительство позволяет быстрее получить готовое жилье, так как в этом случае используются стандартные материалы и решения.

При этом индивидуальное проектирование имеет неоспоримые плюсы:

  1. Возможность спроектировать уникальные помещения: бильярдную, сауну, гараж, мастерскую и т.д.
  2. Дом можно идеально вписать в ландшафт участка. Архитекторы подбирают оптимальные формы, размеры и типы материалов, чтобы добиться оформления в едином, подходящем стиле.

Выбирая между типовым и индивидуальным проектом, важно понимать, что их достоинства можно объединить. Для этого специалисты компании VOLDOMA адаптируют типовые проекты:

  • под требования закона;
  • под условия участка;
  • под инженерные коммуникации;
  • под пожелания заказчика;
  • под бюджет.

Например, чтобы добавить больше света, переориентируем дом и увеличим оконные проемы. Чтобы было максимально комфортно, перенесем крыльцо, уберем террасу или внесем некоторые другие конструктивные изменения. Это позволяет исключить какие-либо неудобства в процессе эксплуатации дома.

Приведем пример. У нас есть типовой проект дома из клееного бруса БД-110, оптимально подходящий для семьи из 4-5 человек.

-2

Одному из наших заказчиков очень понравился этот проект, но он попросил внести некоторые изменения:
- уменьшить террасу;
- поменять местами котельную и санузел;
- одну из трех спален на 2 этаже заменить вторым светом.

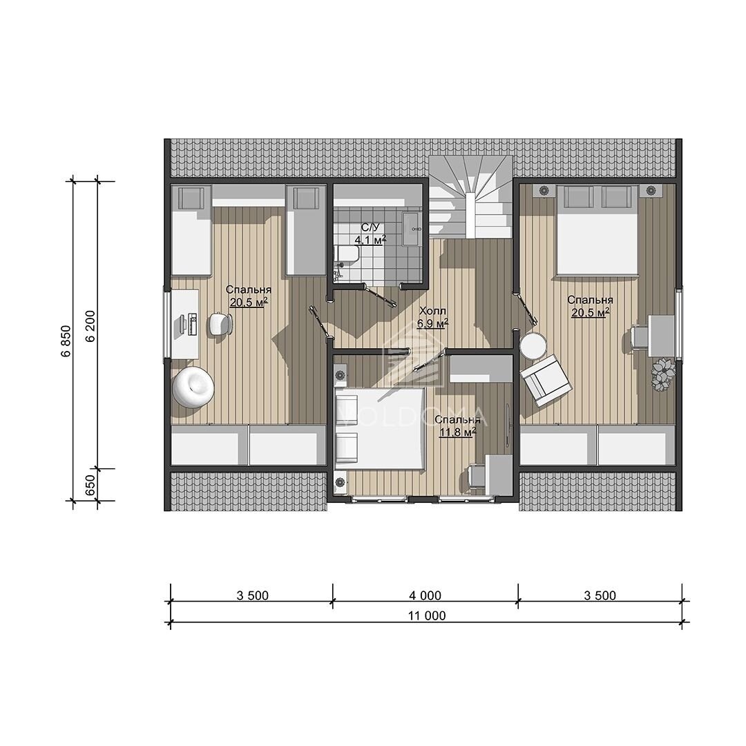
Измененный план 1 этажа типового проекта БД-111
Измененный план 1 этажа типового проекта БД-111
Измененный план 2 этажа типового проекта БД-111
Измененный план 2 этажа типового проекта БД-111

Наши архитекторы внесли соответствующие изменения в проект, и всего за 4 недели строители поставили домокомплект с фундаментом и кровлей. Готовый дом получится просто восхитительным!

Получается, типовые проекты с адаптацией под заказчика – это современное решение, тренд в домостроении. VOLDOMA всегда готовы вам помочь доступный и качественный дом для жизни в удовольствие.

Обсудить ваши идеи вы можете уже сегодня:

Звоните 8 (800) 222-82-44
Telegram, WhatsApp:
8 (921) 250-60-66
8 (921) 064-74-44