Найти в Дзене
Эдуард Суханов

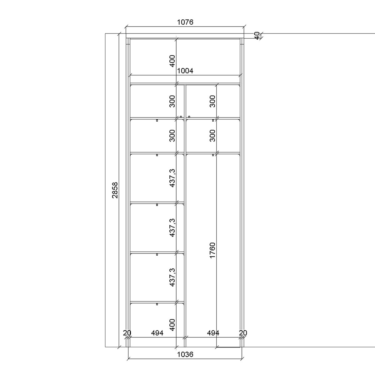
Простенький хозяйственный шкаф

На замере не был, рисовал по схеме клиента, обстановка примерная. Ручки на дверцах выбрал сам клиент.

На замере не был, рисовал по схеме клиента, обстановка примерная. Ручки на дверцах выбрал сам клиент.