Найти в Дзене
АО «ТАМАК»

Быстровозводимый загородный дом для работы и проживания

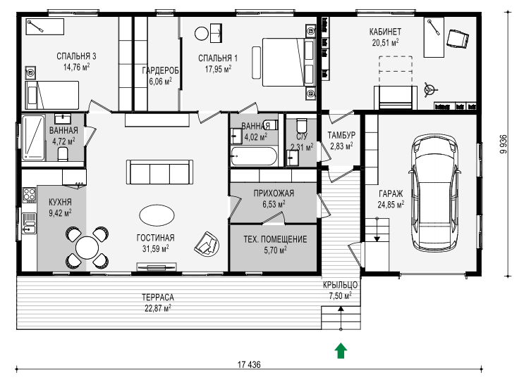
Проект одноэтажного дома  «Барнхаус офис–151» идеально подойдет тем, кто работает на дому, особенно, если характер деятельности связан с приемом посетителей. Рабочий кабинет и гостевой санузел отделены от жилой зоны, состоящей из кухни-студии, гостиной, 2 спален и 2 ванных комнат. Благодаря четкому разделению пространства (181 м²) никто не сможет вторгнуться на личную территорию владельца дома. Подробнее о проекте и технологии строительства Характеристики проекта: Подробнее о проекте и технологии строительства АО «ТАМАК» - крупнейшее в России индустриальное предприятие по проектированию, производству и строительству быстровозводимых домов и домов из клееного бруса. Крупнейший производитель цементно-стружечных плит.
Телефон: 8(800)300-89-77
Наш сайт: https://tamak.ru Подписывайтесь на канал и ставьте лайки! :)

Проект одноэтажного дома  «Барнхаус офис–151» идеально подойдет тем, кто работает на дому, особенно, если характер деятельности связан с приемом посетителей. Рабочий кабинет и гостевой санузел отделены от жилой зоны, состоящей из кухни-студии, гостиной, 2 спален и 2 ванных комнат. Благодаря четкому разделению пространства (181 м²) никто не сможет вторгнуться на личную территорию владельца дома.

Подробнее о проекте и технологии строительства

План одноэтажного дома «Барнхаус офис–151»
План одноэтажного дома «Барнхаус офис–151»

Характеристики проекта:

  • Общая площадь: 181,62 м²
  • Площадь помещений: 151,25 м²
  • Площадь террас и балконов: 30,37 м²
  • Общая площадь 1 этажа: 181,62 м²
  • Спальни, шт.:  2
  • Санузлы, шт.:  3
  • Техническое помещение: да
  • Гараж: да

Подробнее о проекте и технологии строительства

АО «ТАМАК» - крупнейшее в России индустриальное предприятие по проектированию, производству и строительству быстровозводимых домов и домов из клееного бруса. Крупнейший производитель цементно-стружечных плит.

Телефон: 8(800)300-89-77
Наш сайт: https://tamak.ru

Подписывайтесь на канал и ставьте лайки! :)