Найти в Дзене
Диана Исмайлова ✨

Что такое Дизайн-проект?

Для начала давайте определим, что же такое дизайн-проект?  Дизайн-проект интерьера помещения – это комплекс услуг по разработке планировочного решения помещения, концепции художественного оформления интерьера, созданию эскиза дизайн-проекта и разработке проектной документации.  В итоге заказчик проекта получает документы, в которых отражены все предстоящие работы по перепланировке, отделке, прокладке коммуникаций, расстановке мебели. Эти документы позволяют представить конечный результат работ и, если это потребуется, вовремя внести корректировки. Дизайн-проект интерьера двухкомнатной квартиры в ЖК «Весна на Балтийском»: Если по дизайн-проекту предполагается индивидуальное изготовление мебели, то разрабатываются соответствующие эскизные проекты:  Простыми словами, дизайн-проект – это инструкция по созданию вашего будущего интерьера. Цель дизайн-проекта – увидеть конечный результат и спланировать работу над ним.

Для начала давайте определим, что же такое дизайн-проект? 

Дизайн-проект интерьера помещения – это комплекс услуг по разработке планировочного решения помещения, концепции художественного оформления интерьера, созданию эскиза дизайн-проекта и разработке проектной документации. 

В итоге заказчик проекта получает документы, в которых отражены все предстоящие работы по перепланировке, отделке, прокладке коммуникаций, расстановке мебели. Эти документы позволяют представить конечный результат работ и, если это потребуется, вовремя внести корректировки.

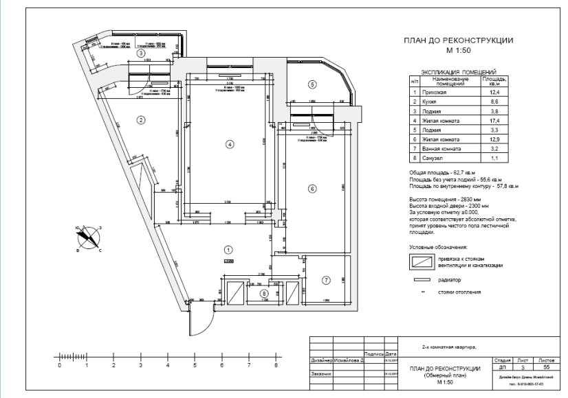
Дизайн-проект интерьера двухкомнатной квартиры в ЖК «Весна на Балтийском»:

Если по дизайн-проекту предполагается индивидуальное изготовление мебели, то разрабатываются соответствующие эскизные проекты: 

Простыми словами, дизайн-проект – это инструкция по созданию вашего будущего интерьера. Цель дизайн-проекта – увидеть конечный результат и спланировать работу над ним.