Найти в Дзене
DIVAN.RU

ДО/ПОСЛЕ: вау-переделка старой «сталинки» 68 кв.м

Контрастные оттенки, много количество комнатных растений и продуманное хранение — здесь есть что взять на заметку. Что это: двухкомнатная квартира 68 кв.м в «сталинке», г. Москва
Автор проекта: дизайнер Анастасия Заркуа
Автор фото: Максим Максимов
Стилист: Ольга Олейникова Владельцы этой квартиры — молодая пара. Свой интерьер они видели полным красок, света и солнца, в трендовой стилистике Urban Jungle. Реализация проекта продолжалась около года — исходное состояние объекта требовало серьезного ремонта. Бюджет составил 3 млн рублей. Гостиная Основная доминанта в гостиной — большое окно и балконный блок, которые занимают практически всю стену и наполняют комнату естественным светом. Под окном — старые радиаторы времен СССР, их сохранили и отреставрировали. В кадре: Одной из фишек проекта стала работа с цветом. Теплые терракотовые, зеленые и песочные оттенки гармонируют друг с другом и плавно «перетекают» из одного помещения в другое, создавая необычные сочетания. К примеру, зеленый из г
Оглавление

Контрастные оттенки, много количество комнатных растений и продуманное хранение — здесь есть что взять на заметку.

Что это: двухкомнатная квартира 68 кв.м в «сталинке», г. Москва
Автор проекта: дизайнер Анастасия Заркуа
Автор фото: Максим Максимов
Стилист: Ольга Олейникова

Владельцы этой квартиры — молодая пара. Свой интерьер они видели полным красок, света и солнца, в трендовой стилистике Urban Jungle. Реализация проекта продолжалась около года — исходное состояние объекта требовало серьезного ремонта. Бюджет составил 3 млн рублей.
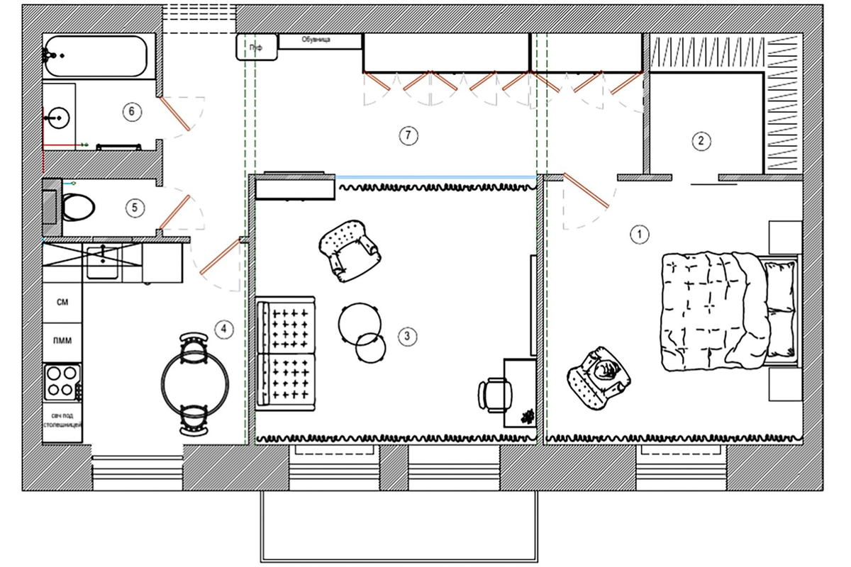
Финальная планировка и расстановка мебели
Финальная планировка и расстановка мебели

Гостиная

Основная доминанта в гостиной — большое окно и балконный блок, которые занимают практически всю стену и наполняют комнату естественным светом. Под окном — старые радиаторы времен СССР, их сохранили и отреставрировали.

Проект Анастасии Заркуа; автор фото: Максим Максимов
Проект Анастасии Заркуа; автор фото: Максим Максимов

В кадре:

Одной из фишек проекта стала работа с цветом. Теплые терракотовые, зеленые и песочные оттенки гармонируют друг с другом и плавно «перетекают» из одного помещения в другое, создавая необычные сочетания. К примеру, зеленый из гостиной переходит на стены в прихожей, появляется в санузлах и в более темном варианте присутствует на фасадах кухни.

Яркий акцент в гостиной — терракотовая стена, на фоне которой выигрышно смотрятся горшки с цветами и светлая мебель.

За легкое настроение в комнате отвечает мягкая мебель от бренда divan.ru в обивке насыщенных оттенков: раскладной диван Динс Мини, кресло Оденс, журнальный стол Медли.

Обратите внимание: Заказчикам требовалось место для хранения спортивного снаряжения. Они любят путешествовать и совершать велосипедные прогулки, занимаются скалолазанием. Дизайнер использовала необычное решение — место для велосипедов предусмотрели в большом встроенном шкафу, в нише за диваном разместили открытые полки для каяков и сноубордов.

Спальня

Для оформления спальни выбрали спокойные сине-зеленые оттенки — в такой обстановке будет приятно расслабиться и отдохнуть. В центре внимания — сложное панно из нескольких видов обоев за изголовьем.

В комнате установили просторную двуспальную кровать с мягким изголовьем и тумбы Ивейн на деревянных ножках от divan.ru. В ходе перепланировки часть площади спальни отдали под гардеробную — это позволило не перегружать помещение дополнительной мебелью.

Проект Анастасии Заркуа; автор фото: Максим Максимов
Проект Анастасии Заркуа; автор фото: Максим Максимов

В кадре тумба прикроватная Ивейн-3 Double White от 8 990 ₽* >>

Кухня

Кухонный гарнитур расположили углом, верхние шкафы повесили только над мойкой, чтобы не загромождать небольшое пространство. Цвет фасадов подбирали, исходя из общей палитры интерьера. Фартук выложили плиткой с геометрическим рисунком. В одном из нижних шкафов спрятали стиральную машину. У окна организовали обеденную зону с круглым столом и плетеными из ротанга стульями.

Прихожая

На пол в прихожей уложили керамогранит. Напольное покрытие отделяет входную зону от жилого пространства. Стены выкрасили в нежный оттенок зеленого. Благодаря широкому проему и высокой кухонной двери со стеклом и фрамугой в прихожую проникает естественный свет.

Санузлы

Нижнюю часть стен в туалете облицевали плиткой, верх оклеили обоями с растительным принтом. В ванной плиткой отделали только мокрые зоны, остальные поверхности покрыли краской для влажных помещений.

--------------
Оцените интерьер в комментариях, а если материал понравился — не забудьте поставить лайк👍

🖤divan.ru — не только блог про интерьеры, но и производитель доступной дизайнерской мебели. Ищите интерьерные решения, которые подходят именно вам. Свое найдется на divan.ru

*Цены актуальны на момент публикации статьи