Найти в Дзене
Проектная мастерская №16

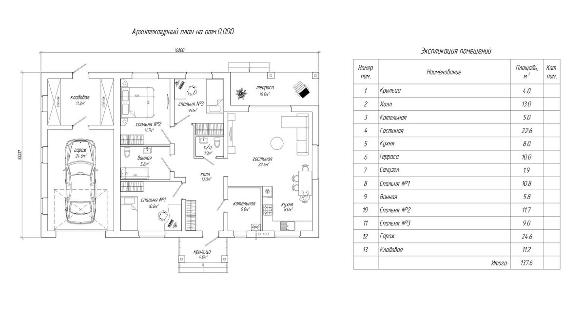
Проект одноэтажного 3-комнатного жилого дома с пристроенным гаражом общей площадью 137.6кв.м.

Доброго времени года! Вашему вниманию вариант планировки одноэтажного дома с тремя спальнями и пристроенным гаражом на одно машиноместо. В основе планировочной структуры дома применен принцип функционального зонирования помещений на индивидуальную и коллективную зоны. Индивидуальная зона охватывает функции сна, занятий, личной гигиены, отдыха. Учитывая специфику бытовых процессов, в этой зоне обеспечена максимальная изоляция входящих в нее помещений. Спальные комнаты сгруппированы и находятся в левом крыле дома. При холле предусмотрено два санузла. Коллективная зона включает в себя холл и общую комнату (кухню-гостиную). При входе в дом расположено техническое помещение котельной. Из гостиной предусмотрен выход на террасу и далее на приусадебный участок через витражное окно. Функциональная связь между зонами осуществляется через холл. Крыльцо дома выполнено в виде навеса на двух кирпичных столбах. Подпишись на канал Проектной мастерской №16, чтобы не пропустить новые проекты!

Доброго времени года! Вашему вниманию вариант планировки одноэтажного дома с тремя спальнями и пристроенным гаражом на одно машиноместо.

В основе планировочной структуры дома применен принцип функционального зонирования помещений на индивидуальную и коллективную зоны. Индивидуальная зона охватывает функции сна, занятий, личной гигиены, отдыха. Учитывая специфику бытовых процессов, в этой зоне обеспечена максимальная изоляция входящих в нее помещений. Спальные комнаты сгруппированы и находятся в левом крыле дома. При холле предусмотрено два санузла.

Коллективная зона включает в себя холл и общую комнату (кухню-гостиную). При входе в дом расположено техническое помещение котельной. Из гостиной предусмотрен выход на террасу и далее на приусадебный участок через витражное окно. Функциональная связь между зонами осуществляется через холл. Крыльцо дома выполнено в виде навеса на двух кирпичных столбах.

-2

Подпишись на канал Проектной мастерской №16, чтобы не пропустить новые проекты!