π ΠΠ° ΠΏΡΠΎΠ΅ΠΊΡΠ΅ ΠΏΡΠ΅Π΄ΡΡΠ°Π²Π»Π΅Π½ ΡΠΎΠ²ΡΠ΅ΠΌΠ΅Π½Π½ΡΠΉ Π΄Π²ΡΡ
ΡΡΠ°ΠΆΠ½ΡΠΉ Π΄ΠΎΠΌ Ρ ΡΠ»Π΅ΠΌΠ΅Π½ΡΠ°ΠΌΠΈ ΠΌΠΈΠ½ΠΈΠΌΠ°Π»ΠΈΡΡΡΠΊΠΎΠΉ Π°ΡΡ
ΠΈΡΠ΅ΠΊΡΡΡΡ. ΠΠ΄Π°Π½ΠΈΠ΅ ΠΎΠ±Π»Π°Π΄Π°Π΅Ρ ΠΏΡΡΠΌΠΎΡΠ³ΠΎΠ»ΡΠ½ΡΠΌΠΈ ΡΠΎΡΠΌΠ°ΠΌΠΈ ΠΈ ΠΏΠ»ΠΎΡΠΊΠΈΠΌΠΈ ΠΊΡΡΡΠ°ΠΌΠΈ. Π€Π°ΡΠ°Π΄ ΡΠΎΡΠ΅ΡΠ°Π΅Ρ Π² ΡΠ΅Π±Π΅ ΡΠ΅ΠΌΠ½ΡΠ΅ ΠΈ ΡΠ²Π΅ΡΠ»ΡΠ΅ ΠΎΡΡΠ΅Π½ΠΊΠΈ, Π° ΡΠ°ΠΊΠΆΠ΅ ΠΎΠ±ΡΠΈΡ Π΄Π΅ΡΠ΅Π²ΡΠ½Π½ΡΠΌΠΈ ΠΏΠ°Π½Π΅Π»ΡΠΌΠΈ, ΠΏΡΠΈΠ΄Π°ΡΡΠΈΠΌΠΈ Π΅ΠΌΡ ΡΠ΅ΠΏΠ»ΠΎΡΡ ΠΈ ΡΡΡ. π ΠΠ΅ΡΠ΅Π΄ Π΄ΠΎΠΌΠΎΠΌ Π½Π°Ρ
ΠΎΠ΄ΠΈΡΡΡ Π°ΠΊΠΊΡΡΠ°ΡΠ½ΠΎ ΠΎΡΠΎΡΠΌΠ»Π΅Π½Π½ΡΠΉ ΡΠ°Π΄ Ρ Π·Π΅Π»Π΅Π½ΡΠΌΠΈ Π³Π°Π·ΠΎΠ½Π°ΠΌΠΈ ΠΈ ΠΆΠΈΠ²ΡΠΌΠΈ ΠΈΠ·Π³ΠΎΡΠΎΠ΄ΡΠΌΠΈ. Π§Π΅ΡΠ΅Π· ΡΠ°Π΄ ΠΏΡΠΎΠ»Π΅Π³Π°Π΅Ρ ΠΏΠ΅ΡΠ΅Ρ
ΠΎΠ΄Π½Π°Ρ Π΄ΠΎΡΠΎΠΆΠΊΠ° Ρ ΠΊΠ²Π°Π΄ΡΠ°ΡΠ½ΡΠΌΠΈ Π±Π΅ΡΠΎΠ½Π½ΡΠΌΠΈ ΠΏΠ»ΠΈΡΠ°ΠΌΠΈ, Π²Π΅Π΄ΡΡΠ°Ρ ΠΊ Π²Ρ
ΠΎΠ΄Ρ Π² Π΄ΠΎΠΌ. ππΌ Π‘ Π»Π΅Π²ΠΎΠΉ ΡΡΠΎΡΠΎΠ½Ρ ΠΎΡ Π΄ΠΎΠΌΠ° ΡΠ°ΡΠΏΠΎΠ»ΠΎΠΆΠ΅Π½ ΠΏΡΠΎΡΡΠΎΡΠ½ΡΠΉ Π±Π°ΡΡΠ΅ΠΉΠ½ Ρ Π³Π»Π°Π΄ΡΡ Π²ΠΎΠ΄Ρ, ΠΎΠΊΡΡΠΆΠ΅Π½Π½ΡΠΉ ΡΡΠΎΡΡΠ°ΡΠ½ΠΎΠΉ ΠΏΠ»ΠΈΡΠΊΠΎΠΉ. Π£ Π±Π°ΡΡΠ΅ΠΉΠ½Π° Π²ΠΈΠ΄Π½Ρ Π΄Π²Π° ΡΠ΅Π·Π»ΠΎΠ½Π³Π°, ΠΊΠΎΡΠΎΡΡΠ΅ ΠΈΠ΄Π΅Π°Π»ΡΠ½ΠΎ ΠΏΠΎΠ΄Ρ
ΠΎΠ΄ΡΡ Π΄Π»Ρ ΠΎΡΠ΄ΡΡ
Π° ΠΈ Π·Π°Π³Π°ΡΠ°. ΠΠΎΠΊΡΡΠ³ ΡΠ°Π΄Π° ΠΈ Π±Π°ΡΡΠ΅ΠΉΠ½Π° ΡΠ°Π·ΠΌΠ΅ΡΡΠΈΠ»ΠΈΡΡ Π²ΡΡΠΎΠΊΠΈΠ΅ Π΄Π΅ΡΠ΅Π²ΡΡ, Π΄ΠΎΠ±Π°Π²Π»ΡΡΡΠΈΠ΅ Π»Π°Π½Π΄ΡΠ°ΡΡΡ Π΅ΡΡΠ΅ΡΡΠ²Π΅Π½Π½ΠΎΡΡΠΈ. π ΠΡΠΌΠΎΡΡΠ΅ΡΠ° ΠΏΡΠΎΠ΅ΠΊΡΠ° Π½Π°ΠΏΠΎΠ»Π½Π΅Π½Π° ΡΠΏΠΎΠΊΠΎΠΉΡΡΠ²ΠΈΠ΅ΠΌ ΠΈ ΠΊΠΎΠΌΡΠΎΡΡΠΎΠΌ, Π° ΡΠ²Π΅ΡΠ»ΡΠ΅ ΡΠΎΠ½Π° ΡΠ³Π»Π°ΠΆΠΈΠ²Π°ΡΡ ΠΏΠ΅ΡΠ΅Ρ
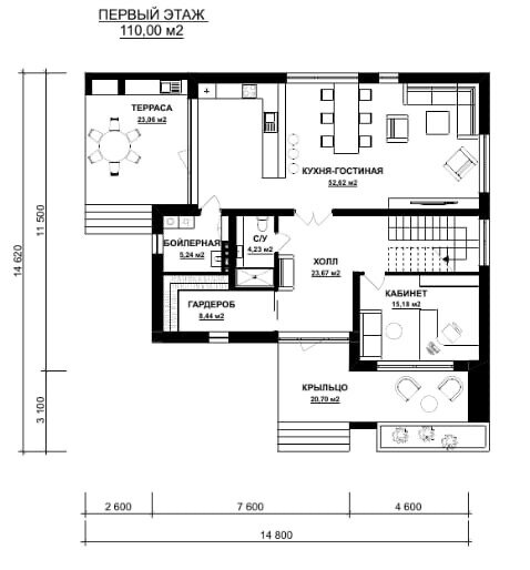
ΠΎΠ΄Ρ ΠΌΠ΅ΠΆΠ΄Ρ ΡΠ»Π΅ΠΌΠ΅Π½ΡΠ°ΠΌΠΈ Π΄ΠΈΠ·Π°ΠΉΠ½Π°. π ΠΡ ΡΠ°ΠΊ ΠΆΠ΅ ΠΌΠΎΠΆΠ΅ΡΠ΅ ΠΎΠ·Π½Π°ΠΊΠΎΠΌΠΈΡΡΡΡ Ρ Π°ΠΊΡΡΠ°Π»ΡΠ½ΠΎΠΉ ΠΏΠ»Π°Π½ΠΈΡΠΎΠ²ΠΊΠΎΠΉ Π΄ΠΎΠΌΠ°, ΠΊΠΎΡΠΎΡΡΡ ΠΏΡΠ΅Π΄Π»Π°Π³Π°ΡΡ Π½Π°ΡΠΈ Π΄ΠΈΠ·Π°ΠΉΠ½Π΅ΡΡ.Β ΠΡΠ»ΠΈ Π²Π°Ρ Π·Π°ΠΈΠ½ΡΠ΅ΡΠ΅ΡΠΎΠ²Π°Π»ΠΈ Π½Π°ΡΠΈ ΠΏΡΠΎΠ΅ΠΊΡΡ, Π²Ρ Π²ΡΠ΅Π³Π΄Π°
π³ Π₯ΠΎΡΠΈΠΌ ΠΏΠΎΠ΄Π΅Π»ΠΈΡΡΡΡ Ρ Π²Π°ΠΌΠΈ Π΅ΡΠ΅ ΠΎΠ΄Π½ΠΈΠΌ ΠΈΠ· ΠΏΡΠΎΠ΅ΠΊΡΠΎΠ² ΡΠΎΠ·Π΄Π°Π½Π½ΡΡ Π½Π°ΡΠΈΠΌΠΈ Π°ΡΡ ΠΈΡΠ΅ΠΊΡΠΎΡΠ°ΠΌΠΈ:
20Β ΡΠ΅Π²ΡΠ°Π»ΡΒ 202420Β ΡΠ΅Π²Β 2024
1
~1 ΠΌΠΈΠ½
