Добавить в корзинуПозвонить
Найти в Дзене
Дядька Молоточкин

Баня на участке. Как выбрать, когда строить

Бане быть! Отдельная баня на участке, несмотря на свои небольшие размеры по сравнению с основным домом, ошибочно воспринимается как простое легкое строение, которое можно построить когда угодно, не затратив на это особых усилий. Но нет, это точно такой же строительный объект, который требует тщательной проработки, включающей в себя весь комплекс мероприятий по возведению полноценного дома: При этом возникает естественный вопрос: когда следует приступать к организации строительства и можно ли ее перенести на неопределенное время до лучших времен. Ведь если вы сейчас заняты строительством основного дома, весь бюджет уходит туда и тратить несколько сот тысяч (а то и больше) рублей на дополнительное строение ой как не хочется. Многие владельцы так и рассуждают: построю главный дом, отделаю, посажу пока временно газон, потом накоплю деньжат и построю баньку. И этот вариант вполне рабочий, вот в чем фишка 😁. Так можно поступить, если у вас не планируются ландшафтные работы , если коммуника

Бане быть! Отдельная баня на участке, несмотря на свои небольшие размеры по сравнению с основным домом, ошибочно воспринимается как простое легкое строение, которое можно построить когда угодно, не затратив на это особых усилий. Но нет, это точно такой же строительный объект, который требует тщательной проработки, включающей в себя весь комплекс мероприятий по возведению полноценного дома:

  • расположение на участке
  • проектирование (планировка, строительные материалы)
  • подведение внешних коммуникаций (вода, электричество, канализация)
  • организация отопления
  • организация фундамента под печь и дальнейший дымоход
  • организация строительных работ (место для стройматериалов, проживание рабочих, подъезд техники)

При этом возникает естественный вопрос: когда следует приступать к организации строительства и можно ли ее перенести на неопределенное время до лучших времен. Ведь если вы сейчас заняты строительством основного дома, весь бюджет уходит туда и тратить несколько сот тысяч (а то и больше) рублей на дополнительное строение ой как не хочется. Многие владельцы так и рассуждают: построю главный дом, отделаю, посажу пока временно газон, потом накоплю деньжат и построю баньку. И этот вариант вполне рабочий, вот в чем фишка 😁. Так можно поступить, если у вас не планируются ландшафтные работы , если коммуникации бани не будут тесно связаны с коммуникациями дома, т.е. в том случае, если строительство бани не потребует демонтажа существующих объектов на участке типа парковки, дорожек, навесов, хозблоков . А это может потребоваться в случае необходимости рытья глубоких траншей под коммуникации, необходимости проезда тяжелой техники в угол участка, потребности менять существующий ландшафт. Т.е. вы должны взвесить для себя все за и против и ответить на вопрос - готовы ли вы и ваши близкие к очередной строительной эпопее.

Разгрузка стенового комплекта
Разгрузка стенового комплекта

Чтобы было легче принять решение, необходимо определиться например с тем, каким образом будет осуществляться вывод канализационных отходов из бани, будет ли у вас полноценный туалет, которому потребуется септик или врезка в центральную канализацию. Это очень важный, практически определяющий вопрос, т.к. организация полноценной канализации потребует соответствующей прокладки труб. Второй вопрос - подведение воды. Понятно, что вода должна проходить ниже глубины промерзания, т.е. необходимо так же рыть траншею глубиной в человеческий рост, откуда будет поступать вода - из скважины или из дома ? Таким образом вы можете сразу прикинуть, какие земляные работы вам предстоит выполнить, прежде чем поставить баню. Если вы готовы перепахать весь участок уже после того, как у вас будет стоять основной дом, когда будут завершены все строительные работы, будет расти газон с цветочками, тогда без проблем, но что-то мне подсказывает, что лучше это сделать сразу 😉

Возможно вы будете рассуждать так: ну хорошо, сейчас я проложу коммуникации, выведу из наружу в зоне бани, а уже строить баню буду потом. Да, так тоже можно, но как я написал выше, вы должны отдавать себе отчет в том, что подвоз строительных материалов, их разгрузка, дальнейшие работы по фундаменту, проживание рабочих - все это превратит ваш участок в очередную стройку, как бы вы этому не сопротивлялись. Поэтому мой совет такой: если есть возможность, то лучше ставить баню до организации всех ландшафтных работ, т.е. возвели основной дом и сразу пока горячо ставьте баню. Ежели по бюджету не проходите, то сделайте максимально все закладные, чтобы избежать в будущем грязных земельных работ, подготовьте место под будущий заезд техники и складирование материалов для бани так, чтобы минимизировать масштабы будущего строительства.

Я не буду в этой статье останавливаться на самой бане, у каждого свои предпочтения, я расскажу каким путем шел я и что из этого получилось.

Пока шло строительство основного дома, я все это время изучал в интернете планировки бань, размеры, дизайны, технологии отопления, виды, размеры и вес печей. В итоге пришел к таким параметрам:

  • этажность: 1 этаж
  • стеновой материал: оцилиндрованное бревно
  • линейные внешние размеры по цоколю: не более 7 х 5 метров
  • помещения: зона отдыха (не менее 9 м2), помывочная с душем, полноценный туалет, парилка не менее 6м2
  • отопление: от газового котла основного дома (необходимо проложить трассу из котельной в сторону бани глубиной 180 см), возможно будет пара электрических конвекторов как дополнение в случае сильных морозов
  • канализация: врезка в основную центральную магистраль, для этого надо будет прокопать траншею длиной 45 метров с поворотом. Был бы у дома септик - выводил в него
  • водоснабжение: от основного дома, так же пойдет в трассе на глубине 180 см
  • электроснабжение: от щита основного дома, пробрасываем магистраль

Вот такие параметры у меня нарисовались после очень тщательного обдумывания и взвешивания за и против всех вариантов.

Я начал изучать предложения фирм и оказалось, что таких несколько сотен. Как выбрать из них надежную и чтобы не попасть на деньги ? Решил пойти следующим путем: искать фирму, у которой представлен живой образец, которая где-то выставляет свои решения. Таких оказалось совсем немного, в итоге набрел в интернете на фирму, у которой моя предполагаемая баня прям стояла в виде готового образца, можно приехать и все посмотреть на месте, так и сделал. Увиденным остался доволен, определился с диаметром бревна, с окончательным внешним видом, согласовал с менеджером планировку. А до этого в специальной программе сидел и рисовал расположение мебели, сантехники, печи, полков, кухни и пр. В итоге получилось вот так:

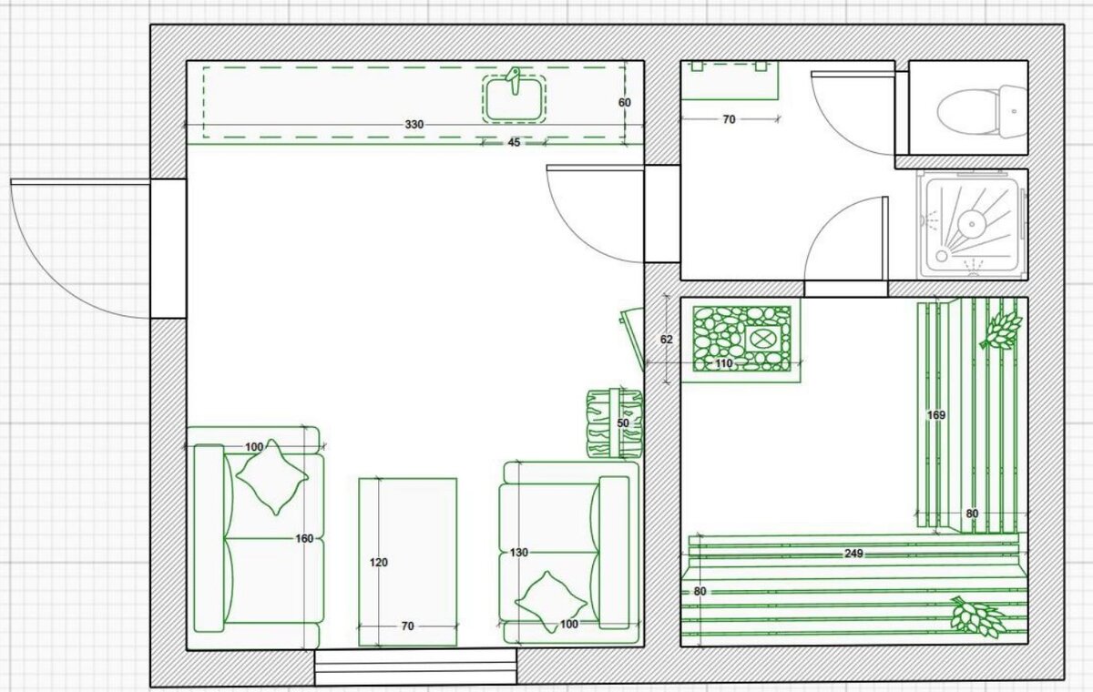
Планировка, к которой я пришел после долгих проработок вариантов, нарисовал ее для менеджера, которая под это уже спроектировала параметры стен, проемов и пр
Планировка, к которой я пришел после долгих проработок вариантов, нарисовал ее для менеджера, которая под это уже спроектировала параметры стен, проемов и пр
Финальная планировка с размерами.
Финальная планировка с размерами.
Внешний вид бани, модель
Внешний вид бани, модель

Следующим шагом нужно было определиться с коммуникациями, чтобы все они выводились строго в одну точку. Т.к. фундамент я решил делать свайный, то решил сначала забить сваи, а уже по имеющемуся свайному полю прокладывать коммуникации, чтобы исключить любую ошибку и вывести "не туда". Когда мне прислали план свайного поля на согласование я обнаружил, что компания не предусмотрела под печь отдельного фундамента. Полез снова в интернет, подобрал печь под свое помещение парильной, посмотрел схему печи, ее размеры, прикинул где находится ее центр масс и указал на плане место, куда надо будет забить отдельную длинную сваю. Между прочим, масса печи с обкладкой и камнями примерно 400 - 500 кг, поэтому под такую нагрузку просто деревянные лаги не подойдут.

План свайного поля и отдельная свая (в правой части по центру) под печь
План свайного поля и отдельная свая (в правой части по центру) под печь

Ну все, теперь ударили по рукам, подписали договор и в путь! Первом делом приехали ребята, которые забивают сваи. Могу сказать, что справились они буквально за полдня, заколотили сваи, проверили все по уровню, сделали на сваи железные оголовки. Важно! Высоту свай расчитывайте таким образом, чтобы учесть ландшафтные работы, во время которых у вас поднимется уровень на 15-20 см. Т.е. закладывайте высоту дома с учетом чистого газона.

Свайное поле. Видно, как свая под печь выше остальных - она в будущем будет расщепляться.
Свайное поле. Видно, как свая под печь выше остальных - она в будущем будет расщепляться.

После свайного поля пришла пора быстро делать все коммуникации, чтобы к моменту привоза стенового комплекта все уже было готово. Здесь нам пришлось помучиться, особенно в части вывода коммуникаций из дома. Само собой, все закладные я в свое время сделал, но выяснилось, что закладная шириной 160 мм оказалась недостаточной, чтобы проложить в утеплителе трассу отопления, водоснабжения и кабель. Пришлось на этом участке утеплитель срезать. Но и это не все. По какой-то неведомой мне причине эта гильза оказалась забита песком. Из чего я делаю вывод, что были подвижки грунта и в местах соединения случилась деформация. Поэтому совет: не прокладывайте гильзы под домом из нескольких канализационных труб, лучше взять одну целую гибкую, в этом случае риск ее порчи будет сведен к нулю. Как бы то ни было, мои рабочие совершили настоящее чудо и все прокопали как надо, вывели все коммуникации в зоне будущего туалета.

Прокладка коммуникаций в баню
Прокладка коммуникаций в баню
Глубина залегания трасс с человеческий рост
Глубина залегания трасс с человеческий рост
Подведенные коммуникации строго в нужном месте
Подведенные коммуникации строго в нужном месте

Дальше осталось самое приятное: привезти стеновой комплект и собрать его на готовом фундаменте. Весь процесс монтажа сруба с временной кровлей занял 3 дня. Ребята очень слаженно работали, смотреть было одно удовольствие, к тому же я это делал через систему видеонаблюдения 🙂

Лайфхак: в смету вам включают стеновой комплект из расчета использования целых бревен как они идут с лесопилки, но привозят вам уже готовый комплект под размер. При этом остается много остатков из отличных бревен разной длины (от 1 до 2 м) объемом около 3 кубов. Я попросил мне эти остатки привезти, планирую из них сделать беседку, скамейки, дровник и прочее. Поэтому обговорите это с менеджером, доплатите за доставку немного, зато получите отличный материал для будущего обустройства.

Привезли бревна на монтаж. Представьте, что у вас уже сделаны ландшафтные работы и надо куда-то все это сложить :)
Привезли бревна на монтаж. Представьте, что у вас уже сделаны ландшафтные работы и надо куда-то все это сложить :)

После того, как вам соберут сруб, можете уже смело организовывать дальнейшие ландшафтные работы - забор, парковку, дорожки, газон. Больше вам ничего не помешает, сруб бани может стоять столько, сколько вам нужно и ничуть мешать не будет. Единственное, что надо будет сделать - это обработать его антисептиком. За это берут отдельные деньги, в моем случае мне предлагали за 50 000 руб, но я вместе с женой выполнил эти работы самостоятельно, предварительно купив распрыскиватель.

Обработка сруба. Справились с женой за 3 часа.
Обработка сруба. Справились с женой за 3 часа.

После выполнения ландшафтных работ сруб окончательно занял свое постоянное место на участке с учетом нужной высоты. Теперь можно спокойно заниматься отделкой основного дома, пока сруб дает усадку и когда будет бюджет на обустройства бани 😎😎

Окончание работ по ландшафтному дизайну. Банька стоит и ждет своего часа в будущем :)
Окончание работ по ландшафтному дизайну. Банька стоит и ждет своего часа в будущем :)
А вот так мы зимуем :)
А вот так мы зимуем :)

Материалы по строительству дома:

Часть 1. Введение

Часть 2. Архитектурный проект

Часть 3. Проект КР и КЖ

Часть 4. Прораб и подготовка участка

Часть 5. Строим фундамент

Часть 6. Возводим стены и перекрытия

Часть 7. Кровля

Часть 8. Фасад

Часть 9. Электричество

Часть 10. Отопление

Часть 11. Ландшафт (забор, газон, парковка)

Продолжение следует...