Добавить в корзинуПозвонить
Найти в Дзене

Убежище № 3 (лит. 149) Дальзавода

Всем дальневосточникам хорошо известно такое предприятие как Дальзавод. Точной датой основания завода считается 14 октября 1887 года. Сегодня предприятие называется - АО "Центр судоремонта "Дальзавод". Но не так уж много людей знает, что только на его производственной территории (в границах до того, как часть территории была распродана или передана в аренду после проведения процедуры приватизации предприятия) располагается не менее 10 защитных сооружений гражданской обороны. Часть этих сооружений уходит корнями во времена Второй мировой войны, часть была построена на стыке эпох в 50х, а часть уже ближе к закату СССР. Среди них есть объекты скального типа, а есть котлованно-насыпного типа, есть отдельно стоящие, а есть встроенные. И так уже сложилось, что часть сооружений так и не были достроены. Принято считать, что и то убежище, о котором пойдет речь, также не было достроено, впрочем документы говорят об обратном. А вот здание, что должно было располагаться над ним, так и осталось объ

Всем дальневосточникам хорошо известно такое предприятие как Дальзавод. Точной датой основания завода считается 14 октября 1887 года. Сегодня предприятие называется - АО "Центр судоремонта "Дальзавод". Но не так уж много людей знает, что только на его производственной территории (в границах до того, как часть территории была распродана или передана в аренду после проведения процедуры приватизации предприятия) располагается не менее 10 защитных сооружений гражданской обороны. Часть этих сооружений уходит корнями во времена Второй мировой войны, часть была построена на стыке эпох в 50х, а часть уже ближе к закату СССР. Среди них есть объекты скального типа, а есть котлованно-насыпного типа, есть отдельно стоящие, а есть встроенные. И так уже сложилось, что часть сооружений так и не были достроены. Принято считать, что и то убежище, о котором пойдет речь, также не было достроено, впрочем документы говорят об обратном. А вот здание, что должно было располагаться над ним, так и осталось объектом незавершенного строительства.

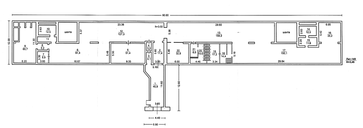
Это убежище № 3 (по внутренней нумерации Дальзавода), лит. 149. Его площадь 898,9 кв.м. Год постройки - 1980. Прикладываю план сооружения.

Поэтажный план объекта
Поэтажный план объекта

Схема объекта не полная, в частности на ней не отрисованы наклонные входы, хотя тамбур-шлюзы присутствуют.

Через один из таких наклонных входов я и попал в убежище. К сожалению у меня сохранились лишь единичные фотографии объекта и восстановить всю информацию о нем по памяти и имеющимся фотоматериалам не удастся, а значит надо будет наведаться в него вновь. Но пока посмотрим на архивные фото.

Первое, что мне бросилось в глаза, так это полностью заваленное противогазами ГП-5, а также индивидуальными комплектами для обработки противогазов, аптечками и другим гнилым имуществом гражданской обороны помещение № 16. Все это лежало в гниющих деревянных ящиках, в убежище довольно влажно даже зимой, особенно в этой его части.

Заваленный гнилым имуществом ГО один из залов для укрываемых (помещение № 16)
Заваленный гнилым имуществом ГО один из залов для укрываемых (помещение № 16)
Гнилое имущество гражданской обороны
Гнилое имущество гражданской обороны

Кстати в тот день мне пригодился один из запечатанных индивидуальных комплектов для обработки противогаза 1974 года, с ним почти за пол века ничего не случилось.

Идем дальше сквозь залы для укрываемых. Условно объект можно разделить на три блока. В крайних блоках вспомогательные помещения расположены у северной стены объекта, а в центральном наоборот у южной.

По дороге нам попадаются металлические двухярусные нары и различное барахло на полу.

Центральный блок
Центральный блок

В центральном блоке стоит вот такая желтая металлическая будка. Возможно она тут осталась со времен строительства объекта.

В центральном блоке также располагаются туалеты, умывальники, помещение бака запаса воды, помещение фильтро-вентиляционной и главная изюминка сооружения - автомобильный въезд, оснащенный тамбур-шлюзом с парой одностворчатых "вафельных" защитно-герметических ворот (внешняя ВУ-II-1, внутренняя ВУ-III-1) и проходом для людей с тамбур-шлюзом на две защитно-герметических двери.

Центральный блок и внутренние защитно-герметические одностворчатые ворота ВУ-III-1
Центральный блок и внутренние защитно-герметические одностворчатые ворота ВУ-III-1
Проход для людей в обход автомобильного въезда с двумя защитно-герметическими дверями и две унифицированных защитных секции.
Проход для людей в обход автомобильного въезда с двумя защитно-герметическими дверями и две унифицированных защитных секции.
Центральный блок. Справа выглядывают патрубки воздуховодов фильтро-вентиляционной установки
Центральный блок. Справа выглядывают патрубки воздуховодов фильтро-вентиляционной установки
Центральный блок и проход в восточный блок
Центральный блок и проход в восточный блок

Далее перемещаемся в другой крайний блок, который не отличается от крайнего с восточной стороны за исключением лишь того, что тут в торцевой части вместо помещения для укрываемых (в восточном блоке такое помещение было № 16) располагается помещения дизель-генераторной установки.

Дизель-генераторная установка
Дизель-генераторная установка

К сожалению дизель-генераторная установка совершенно не комплектна и неплохо прогнила. Иное сопутствующее оборудование отсутствует, а вместо него стоят все те же двухярусные металлические нары.

Выход из дизельной и вид на западный блок
Выход из дизельной и вид на западный блок

Вход в дизельную, как и полагается, оснащен тамбуром с герметическими дверями. Кстати открываются они в 99,9% случаев во внутрь контура убежища из дизельной, что не совсем логично. Но эту тему мы подробно рассмотрим на примере другого защитного сооружения гражданской обороны.

А я на этом прощаюсь с вами, спасибо за внимание!