Добавить в корзинуПозвонить
Найти в Дзене

Отличный дом 7 на 8 с террасой и мансардным этажом

Друзья, всем привет! В нашем каталоге появился новый проект каркасного дома габаритом 7х11 м. Общая площадь с учётом террасы и крыльца составляет 113 м2. Проект КД-116 это каркасный дом с мансардой и большой крытой террасой. На первом этаже дома располагается спальня, холл-прихожая, котельная, гардеробная, санузел и большая объединённая кухня-гостиная. На втором этаже расположены 4 спальни и санузел. Высота помещений 1 этажа по каркасу 2,65 м. Высота 2 этажа по каркасу 1,8-2,5 м. Несущий каркас дома выполнен из пиломатериалов, сечениями 50х100, 50х150 и 50х200 мм. Фундамент - винтовые сваи. Можете посмотреть прогулку по дому Ведомость основных материалов на строительство дома по проекту КД-116 Сам проект и ведомость материалов в PDF по ссылке https://www.karkasproekt.com/kd-116 Каталог всех готовых проектов https://www.karkasproekt.com/Проекты Телеграмм-канал "Проекты домов со сметами" Друзья, если информация вам полезна, не забывайте подписаться на канал и поставить лайк, это очень ва

Друзья, всем привет!

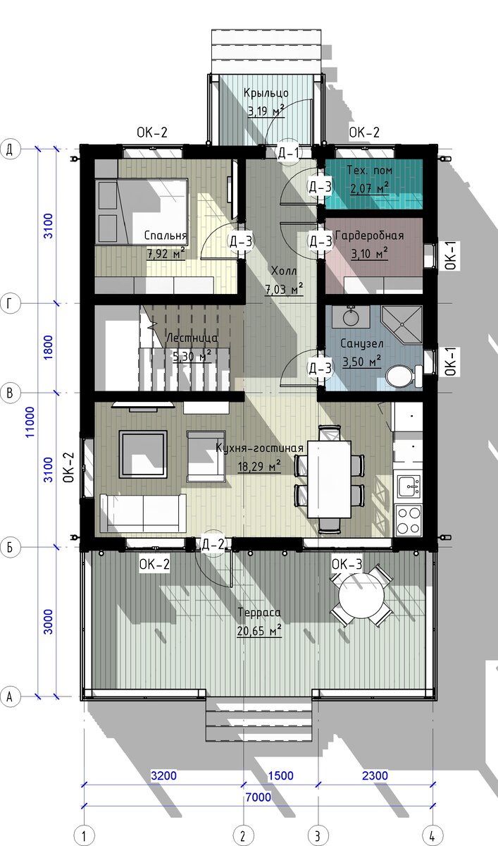
В нашем каталоге появился новый проект каркасного дома габаритом 7х11 м. Общая площадь с учётом террасы и крыльца составляет 113 м2.

-2

Проект КД-116 это каркасный дом с мансардой и большой крытой террасой. На первом этаже дома располагается спальня, холл-прихожая, котельная, гардеробная, санузел и большая объединённая кухня-гостиная.

-3

На втором этаже расположены 4 спальни и санузел.

-4

Высота помещений 1 этажа по каркасу 2,65 м.

Высота 2 этажа по каркасу 1,8-2,5 м.

-5

Несущий каркас дома выполнен из пиломатериалов, сечениями 50х100, 50х150 и 50х200 мм. Фундамент - винтовые сваи.

Можете посмотреть прогулку по дому

Ведомость основных материалов на строительство дома по проекту КД-116

-6

Сам проект и ведомость материалов в PDF по ссылке https://www.karkasproekt.com/kd-116

Каталог всех готовых проектов https://www.karkasproekt.com/Проекты

Телеграмм-канал "Проекты домов со сметами"

Друзья, если информация вам полезна, не забывайте подписаться на канал и поставить лайк, это очень важно для меня и помогает в продвижении канала.
С уважением, Дмитрий.