Найти в Дзене
DIVAN.RU

ДО/ПОСЛЕ: невероятное преображение однушки 36 кв.м в панельке

Оглавление

Вы не узнаете эту квартиру! Она находится в типовом доме И-III-3 1980 года постройки — эту серию возводили под общежития и гостиницы. Хозяева купили недвижимость после реконструкции: здание превратили в комплекс апартаментов. Архитектор Анна Лагутина преобразила унылый ремонт, превратив квартиру в ультрамодное пространство.

Фото из личного архива архитектора Анны Лагутиной
Фото из личного архива архитектора Анны Лагутиной

О КВАРТИРЕ
Где:
г. Москва, ЖК «Саяны Парк»
Объект: однокомнатная квартира 37 кв.м
Автор проекта: архитектор и дизайнер Анна Лагутина, студия интерьерного дизайна URAL

Логика перепланировки

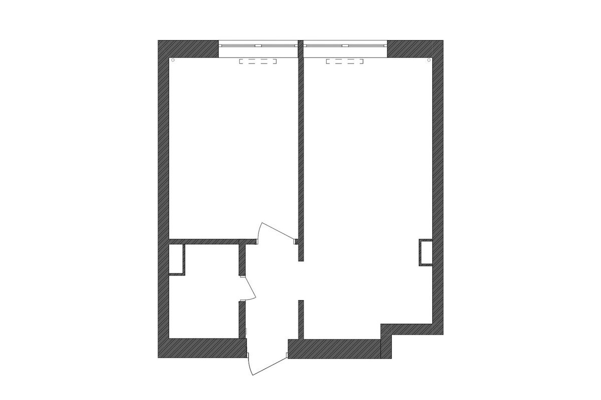
В апартаментах была планировка стандартной однокомнатной квартиры: изолированные кухня и комната, прихожая и санузел.

Начальная планировка
Начальная планировка

Короб с коммуникациями и санузел трогать не стали, а остальные перегородки снесли (статус апартаментов позволяет вносить такие изменения). В результате образовалось единое пространство, которое разделили на функциональные зоны: кухню, гостиную и спальню

Итоговая планировка и расстановка мебели
Итоговая планировка и расстановка мебели

Кухня-гостиная

Состояние кухни до переделки
Состояние кухни до переделки

Верхний ярус гарнитура, столешницу, фартук и цоколи шкафов вокруг выкрасили в темно-терракотовый оттенок. На фоне серых базовых фасадов «под потолок» они выглядят как ниша и делают пространство «глубже». Все конструктивные элементы гарнитура изготовлены из МДФ, покрытой влагостойким пластиком Fenix NTM.

Кухню от гостиной отделяет обеденный прямоугольный стол 270 х 66 см, за которым может разместиться большая компания.

ДЕТАЛЬ
Вид на «бесконечный» лес Лосиного Острова открывает большое трехстворчатое окно. Но в квартире было два окна. Такое удалось согласовать реконструкцию?! Узнайте в полной версии этой статьи >>

Владельцы точно знали, какой диван должен стоять в зоне отдыха — угловой, раскладной и серый, стоимостью до 100 тысяч рублей. Все модели, проходящие по дизайну, не вписывались в бюджет. «Тот самый» нашелся только на divan.ru — свое место в гостиной занял угловой диван Виена.

В кадре диван Виена, divan.ru от 59 990₽* >>

-8

💛Этот диван сейчас можно купить с выгодой до 26 000₽!* Наполните дом особенной атмосферой. Мебель со скидками до 60% ждет на divan.ru >>

Для оформления стены за телевизором использовали необычное покрытие — так называемый неокамень. Это полотно (по факту обои) с минеральной крошкой визуально и на ощупь имитирует натуральный камень.

На фото проект архитектора Анны Лагутиной, автор фото: Любовь Шкодина
На фото проект архитектора Анны Лагутиной, автор фото: Любовь Шкодина

Спальня

Спальня ДО ремонта
Спальня ДО ремонта

Самое необычное место в этой квартире — спальня-куб. Задумку вписать куб в интерьер помог воплотить коммуникационный короб. По нормам сносить и менять его габариты нельзя, поэтому выступ в 20 см пришлось обыгрывать: такие же выступы из ЛДСП сделали сверху и снизу, организовав место для сна.

В нишу положили матрас (кровать ставить не стали), а за панелями реализовали хранение.

Прихожая

Прихожая ДО ремонта
Прихожая ДО ремонта

До переделки прихожая была узким коридором, в котором не было места для шкафа: у двери стояла небольшая обувница и настенная вешалка.

Демонтаж стен позволил установить в прихожей вместительный шкаф — он, кстати, продолжает куб-спальню. Теперь здесь достаточно места личных вещей, а технические коммуникации аккуратно спрятаны в шкафу.

На фото проект архитектора Анны Лагутиной, автор фото: Любовь Шкодина
На фото проект архитектора Анны Лагутиной, автор фото: Любовь Шкодина

Санузел

Санузел ДО ремонта
Санузел ДО ремонта

Вместо отдельностоящей душевой кабины в санузле смонтировали кабину в строительном исполнении, разместили инсталляцию и перенесли стиральную машину на кухню. Объединил пространство серый цвет стен, пола и шкафов, а акцентная терракотовая тумба завершила образ.

На фото проект архитектора Анны Лагутиной, автор фото: Любовь Шкодина
На фото проект архитектора Анны Лагутиной, автор фото: Любовь Шкодина

---------------
Оцените интерьер в комментариях, а если материал понравился — не забудьте поставить лайк.

🖤divan.ru — не только блог про интерьеры, но и производитель доступной дизайнерской мебели. Ищите новые идеи и переходите на сайт, чтобы воплотить их в жизнь.

*Цены актуальны на момент публикации статьи