Найти в Дзене

Каркасный дом 7,5х7,5 с отделкой и большой терассой за 3 500 000 ₽. Фотоотчет, планировка.

📅 Дата сдачи: февраль 2024г
🏡 Комплектация: каркас 200мм, с отделкой
💰 Стоимость: 3 500 000 ₽


👉 Комплектация "с отделкой":
- двойная обвязка основания из бруса 150х200мм и 50х200мм
- лаги из бруса 50х200мм, 100х200мм, шаг 0,59м
- защитная металлическая сетка от грызунов
- несущие стены (обвязки, стойки, ригель) доска 40х200мм, шаг 0,59м
- перегородки (обвязки, стойки, ригель) доска 40х100мм, шаг 0,59м
- высота потолков: 2,5м / 2,4м
- межэтажные перекрытия 50х200мм, шаг 0,59м, матица - клееный брус 100х200мм
- стропильная система 40х200мм, шаг 0,59м,
- крыша двухскатная, высота конька 3,5м, свесы крыши 50см
- кровля: м\ч Монтеррей, обрешетка, ветрозащита, контр-обрещетка 40х50мм
- наружная отделка стен: ветрозащита, контр-рейка 20х50мм, имитация бруса
- утепление: полы, потолки - мин. вата Тисма 200мм; стены - Роквул Скандик 200мм
- мембранные пленки Ондутис SA130, А100, R70,
- полы чистовые: плиты Квик-Дек 16мм по обрешетке 30х90мм
- чистовая отделка стен внутри и потолков - имитацией бруса
- окна: ПВХ 2-х камерные
- двери: входная металлическая, межкомнатные - филенчатые
- обработка (огне-биозащита) основания и лаг 1-го этажа
- водосточная система и снегозадержатели

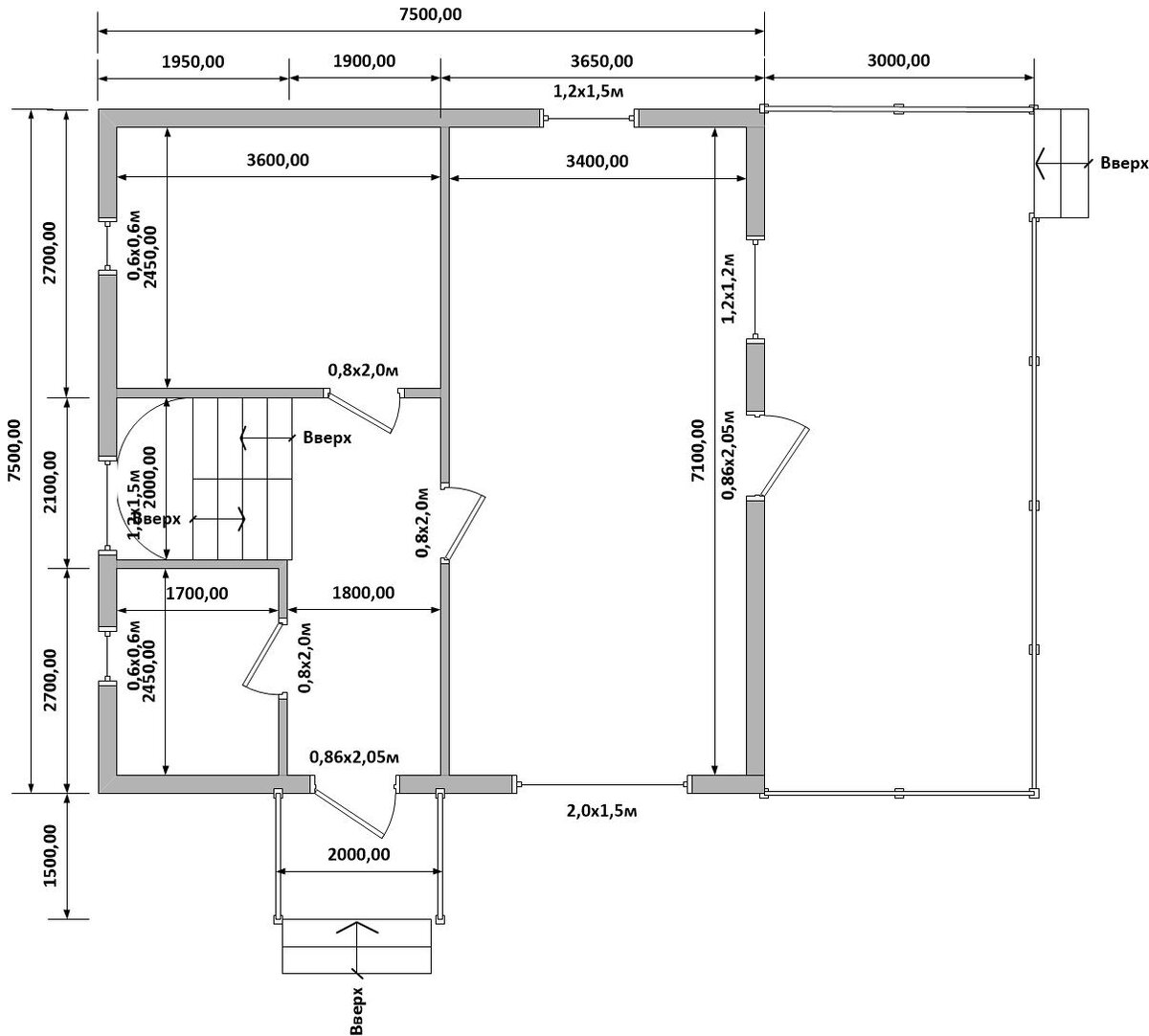
Планировка:

Понравился дом? Свяжитесь с нами, мы сделаем для вас расчет стоимости или подберем подходящий проект под ваши пожелания.

📍 Наши контакты:

• Сайт: bagrovstroy.ru
• Группа VK:
vk.com/bagrovstroy