Найти в Дзене

Проект "Майк" - Простор и Уют: Ваш Идеальный Одноэтажный Дом с 3 Спальнями – 152 м²

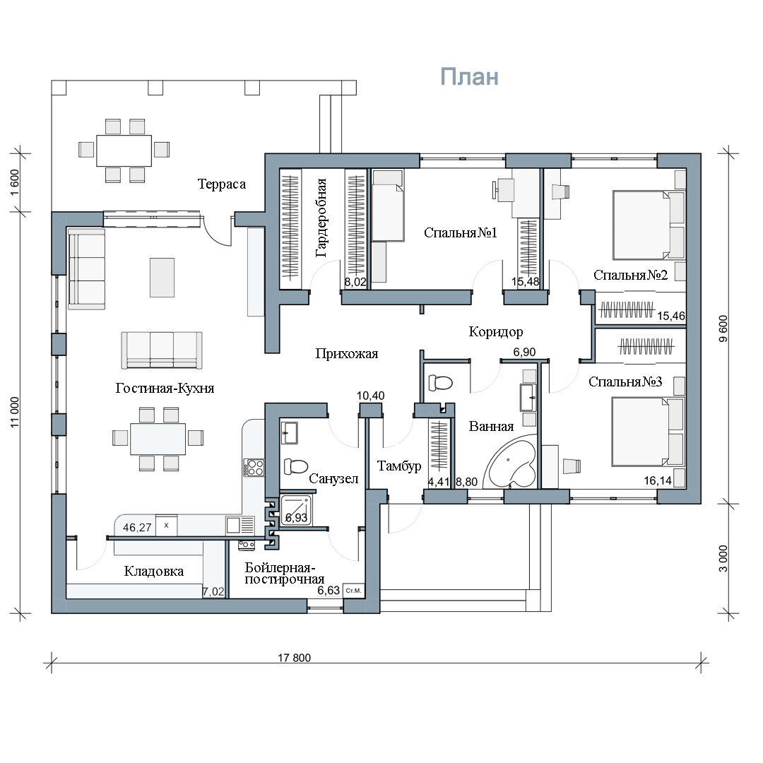
"Коттедж «Майк»: Элегантность и комфорт в каждой из трех спален вашего нового одноэтажного дома!" Откройте для себя дверь в светлый мир уюта и комфорта с нашим одноэтажным домом "Майк", где каждый квадратный метр продуман до мелочей, создавая идеальное пространство для жизни вашей семьи. Этот проект идеально сочетает в себе современную архитектуру и функциональность, предлагая уникальное разграничение пространств для дневного общения и ночного отдыха, гарантируя приватность и комфорт. В данном проекте предусмотрено четкое разграничение ночной и дневной зон, что даёт ощущение камерности и позволяет скрыть частную жизнь дома от любопытных взглядов. Войдя в дом, мы попадаем в холодный тамбур с вместительным шкафом для одежды и обуви, ведущий в просторную прихожую, сердце дома, откуда можно легко добраться до любой комнаты. Гардеробная, гостевой санузел и функциональная бойлерная-постирочная создают комфортные условия для вашего быта. Основное же пространство дома – это великолепная
Оглавление
"Коттедж «Майк»: Элегантность и комфорт в каждой из трех спален вашего нового одноэтажного дома!"

Откройте для себя дверь в светлый мир уюта и комфорта с нашим одноэтажным домом "Майк", где каждый квадратный метр продуман до мелочей, создавая идеальное пространство для жизни вашей семьи. Этот проект идеально сочетает в себе современную архитектуру и функциональность, предлагая уникальное разграничение пространств для дневного общения и ночного отдыха, гарантируя приватность и комфорт.
В данном проекте предусмотрено четкое разграничение ночной и дневной зон, что даёт ощущение камерности и позволяет скрыть частную жизнь дома от любопытных взглядов.

-2

Войдя в дом, мы попадаем в холодный тамбур с вместительным шкафом для одежды и обуви, ведущий в просторную прихожую, сердце дома, откуда можно легко добраться до любой комнаты. Гардеробная, гостевой санузел и функциональная бойлерная-постирочная создают комфортные условия для вашего быта. Основное же пространство дома – это великолепная кухня-гостиная в формате студии с выходом на крытую террасу, которая станет вашим любимым местом для отдыха в теплые месяцы.

Дополнительным удобством служит продуманная кладовка при кухне.

В приватной ночной зоне, изолированной от дневной, расположены три уютные спальни и ванная комната с окном. Каждая спальня оборудована местом для вместительного шкафа, для хранения ваших вещей.

Этот дом – не просто место для жизни. Это ваш личный оазис комфорта и уюта, где каждая деталь спроектирована с мыслью о вас.

Создайте дом своей мечты с нами – начните жить в пространстве, где каждый день наполнен гармонией и счастьем.

Вариант проекта с двухскатной кровлей

-3

-4
-5
-6

  • Общая площадь – 152 м2
  • Этажность – 1
  • Количество спален – 3
  • Количество санузлов – 2
  • Высота потолка – 3 м
  • Материал стен – газоблок 400мм.
По вашему желанию мы можем внести любые изменения в данный проект: скорректировать планировку, заменить материал стен, и т.д.

Варианты проекта

-7
-8
-9
-10

Вариант с вальмовой кровлей

-11
-12
-13
-14