Добавить в корзинуПозвонить
Найти в Дзене

Интерьер квартиры, 72 м²

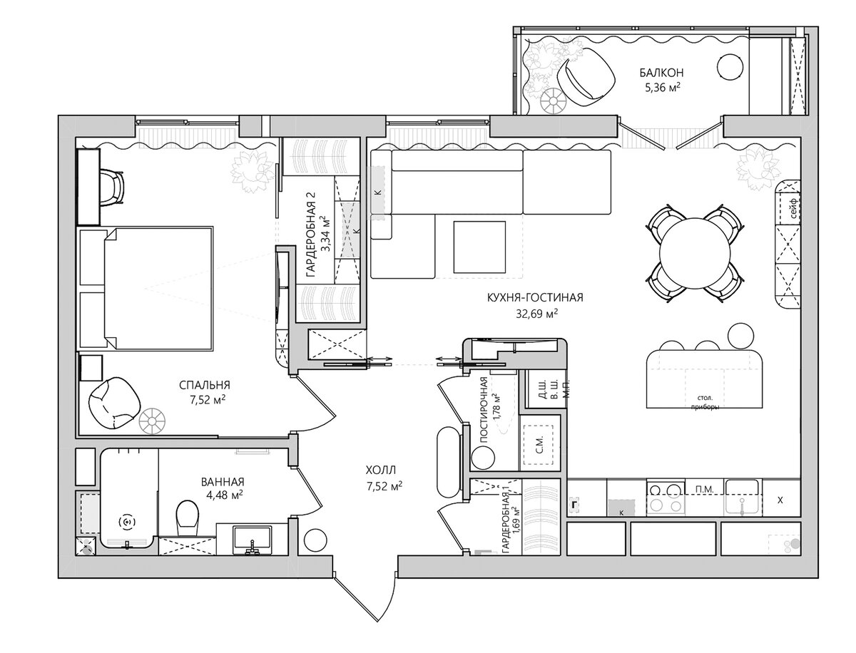
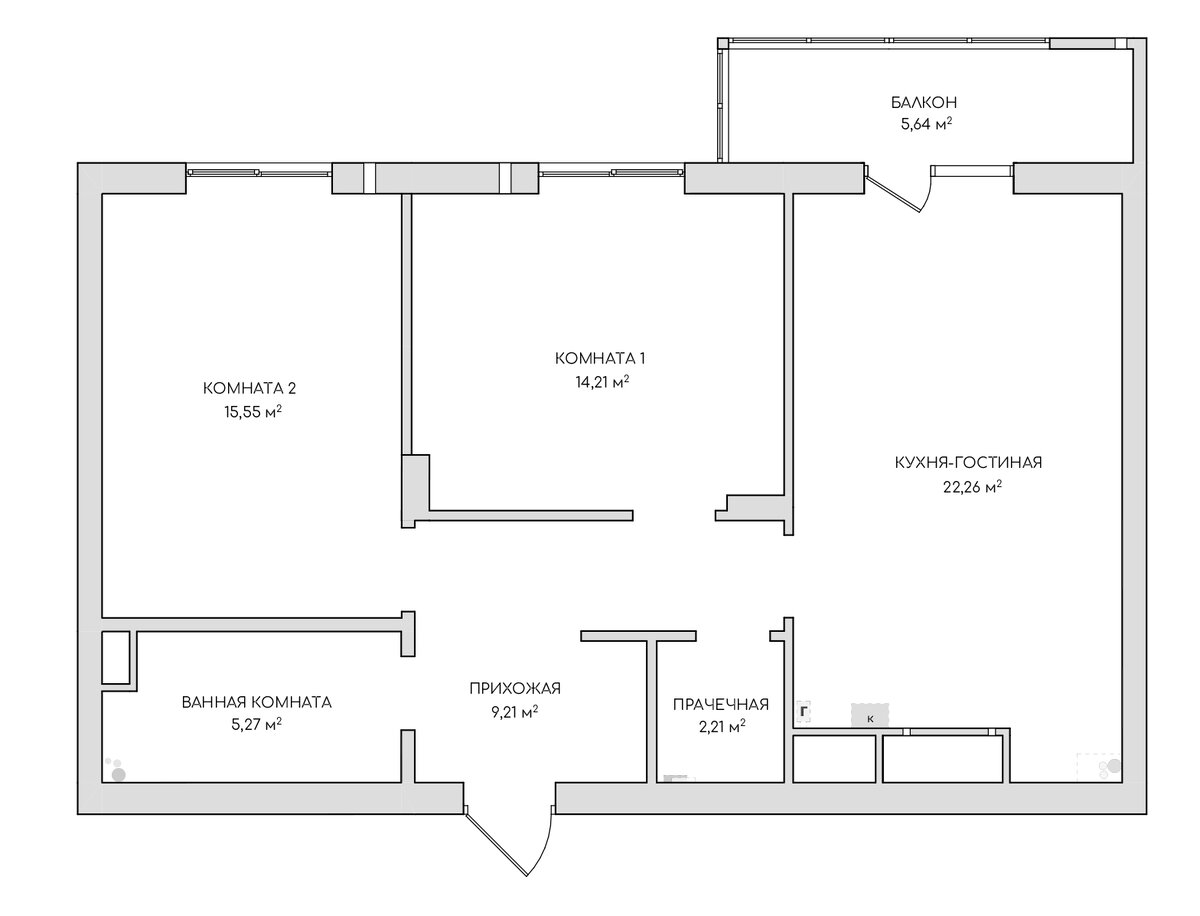
Этот проект был разработан для молодой девушки. Перед нами стояла задача создать приватное пространство для заказчицы и общее пространство, чтобы сбираться большой компанией с друзьями и семьей. Поэтому было принято решение разделить площадь одной из жилых комнат в пользу просторной кухни-гостиной и вместительной гардеробной комнаты в спальне. Квартира смотрится просторной и воздушной за счет панорамного остекления, нежного пастельного цветового решения, прозрачных перегородок и увеличенных по высоте дверных проемов. Минималистичный интерьер с элементами классики на первый взгляд кажется лаконичным, но скрывает в себе большое количество сложных дизайнерских решений, в том числе раздвижные перегородки, скрытые системы хранения с выдвижными механизмами, теневые плинтуса и интегрированные мебельные конструкции декорированные и окрашенные в тон стен. Такие приемы усложняют ремонт, но позволяют персонализировать пространство и выкрутить эргономику на максимум. О техническом исполнении этих

Этот проект был разработан для молодой девушки.

Город: Рязань Площадь: 72м²
Год: Реализация 2023г
Город: Рязань Площадь: 72м² Год: Реализация 2023г

Перед нами стояла задача создать приватное пространство для заказчицы и общее пространство, чтобы сбираться большой компанией с друзьями и семьей. Поэтому было принято решение разделить площадь одной из жилых комнат в пользу просторной кухни-гостиной и вместительной гардеробной комнаты в спальне.

Квартира смотрится просторной и воздушной за счет панорамного остекления, нежного пастельного цветового решения, прозрачных перегородок и увеличенных по высоте дверных проемов.

Минималистичный интерьер с элементами классики на первый взгляд кажется лаконичным, но скрывает в себе большое количество сложных дизайнерских решений, в том числе раздвижные перегородки, скрытые системы хранения с выдвижными механизмами, теневые плинтуса и интегрированные мебельные конструкции декорированные и окрашенные в тон стен. Такие приемы усложняют ремонт, но позволяют персонализировать пространство и выкрутить эргономику на максимум.

О техническом исполнении этих решений расскажем подробней в следующей статье.

Больше проектов на нашем сайте.