Найти в Дзене
ПРОЕКТ-КОМ

Объединение квартир по вертикали на разных этажах в многоквартирном доме СПб

Объединение квартир в Приморском районе ЖК Юбилейный квартал. Данный вариант встречается гораздо реже, чем объединение квартир по горизонтали, так как он сопряжен с куда большими трудностями и нюансами. Прежде всего, такое объединение требует выполнение проема в перекрытии между квартирами. Зачастую выполнить такой проем крайне сложная задача, так как его выполнение даже с усилением, может привести к обрушению перекрытий - например, если отверстие идет поперёк раскладки сборных плит. В любом случае, вопрос возможности исполнения, усиления и реализации таких проемов - должен выполняться на основании технического обследования конструкций здания, исполнительной и рабочей документации, с квалифицированными специалистами, с разработанным проектом и необходимыми расчетами, а не на основании заключений строительных бригад. В противном случае, такие преобразования могут привести к плачевным последствиям. Помимо выполнения самого проема, для перехода между этажами необходимо выполнить лестницу
Оглавление
Согласование перепланировки СПб и Ленинградской области
Согласование перепланировки СПб и Ленинградской области

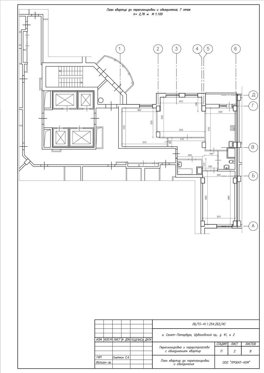
Объединение квартир в Приморском районе ЖК Юбилейный квартал.

Данный вариант встречается гораздо реже, чем объединение квартир по горизонтали, так как он сопряжен с куда большими трудностями и нюансами. Прежде всего, такое объединение требует выполнение проема в перекрытии между квартирами.

Зачастую выполнить такой проем крайне сложная задача, так как его выполнение даже с усилением, может привести к обрушению перекрытий - например, если отверстие идет поперёк раскладки сборных плит.

В любом случае, вопрос возможности исполнения, усиления и реализации таких проемов - должен выполняться на основании технического обследования конструкций здания, исполнительной и рабочей документации, с квалифицированными специалистами, с разработанным проектом и необходимыми расчетами, а не на основании заключений строительных бригад. В противном случае, такие преобразования могут привести к плачевным последствиям.

Помимо выполнения самого проема, для перехода между этажами необходимо выполнить лестницу. В соответствии с п. 6.4.2 СП 54.13330.2022 “Здания жилые многоквартирные” уклон внутриквартирных лестничных маршей следует принимать не менее 1:1,25, а ширину не менее 0,9 м.

Иными словами, если высота этажей 2,7 метра, то длина лестницы для соблюдения безопасности и удобства передвижения должна составить 3,375 мм.

Далеко не всегда удается выполнить в внутриквартирном пространстве такую лестницу. Конечно, её можно сделать двух-маршевой с промежуточной площадкой, но возможность устройства такой площадки опять-таки связана с конструктивными особенностями конкретной квартиры.

Неоспоримый бонус: при объединении квартир по вертикали можно размещать мокрые помещения вышележащей квартиры над жилыми помещениями нижележащей квартиры. Об этом прямо сказано в виде исключения в и п. 7.20 СП 54.13330.2022.

Если Вы собираетесь сделать перепланировку в квартире (например, объединить или разделить комнаты, перенести либо заменить электрическое, газовое, санитарно-техническое оборудование) или же объединить 2 квартиры в одну - необходимо согласовать изменения с Администрацией Вашего района (МВК). И внести актуальные сведения в ЕГРН (Росреестр).

Обратите внимание, перепланировка без предварительного согласования будет считаться самовольной и за нее предусмотрена Административная ответственность – штраф, риск получить судебный иск –запрет на выезд за границу, и продажа квартиры с открытых торгов – в случае неисполнения судебного решения.

Проект перепланировки

Статья 209 Гражданского кодекса РФ: Собственник имущества может по собственному усмотрению осуществлять в отношении материальных ценностей, принадлежащих ему, любые действия, которые не противоречат установленным законным и иным правовым актам.

Постановление Правительства Санкт-Петербурга от 04.02.2005 года за номером №112 «О создании межведомственных комиссий» к полномочиям Комиссии относится:
– согласование проектов на переустройство и перепланировку помещений в многоквартирном доме;
– осуществление полномочий приемочной комиссии по оформлению акта приемочной комиссии: подтверждающего завершение переустройства и (или) перепланировки объектов.

Переустройство и перепланировку квартир проводят на основании проекта, согласованного с районной МВК.

Решение МВК о согласовании

Проект был рассмотрен и согласован Администрацией Приморского района.

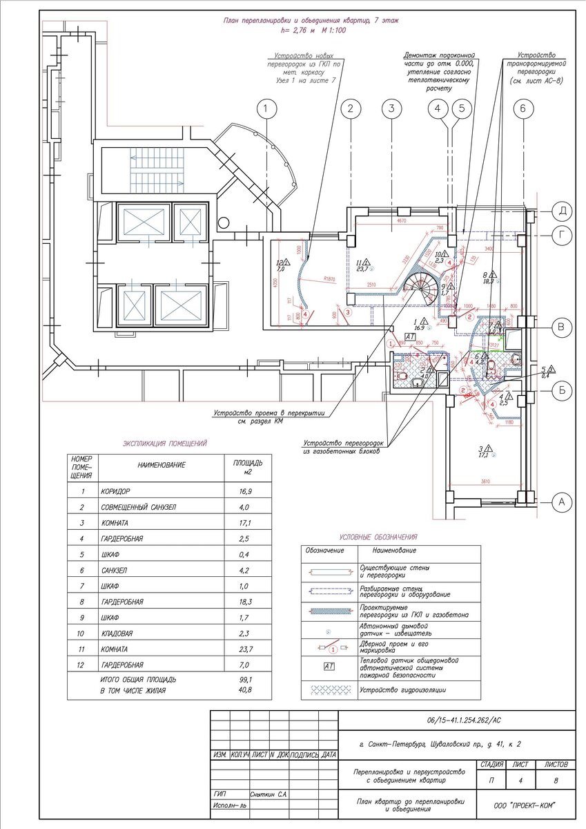
Новая планировка квартиры

новая планировка квартиры после перепланировки, переустройства и объединения квартир
новая планировка квартиры после перепланировки, переустройства и объединения квартир

Чем грозит незаконная перепланировка

  • Предписание районной межведомственной комиссии при Администрации города (МВК);
  • Отключение квартиры от системы газоснабжения (заглушка на сварке);
  • Отключение радиаторов отопления (в случае экстренных мер: когда собственник перенёс радиаторы на балкон/лоджию);
  • Административная ответственность (штраф);
  • Неоплата штрафа в установленный срок – 2й штраф;
  • Судебный иск. Запрет на выезд за границу;
  • Неисполнение судебного решения – продажа квартиры с торгов.