Найти в Дзене
Каркас Инфо

Проект каркасного дома КД-143 МУРАТОР

За время работы над проектом, мы столкнулись со многими сложностями и препятствиями. От идеи до реализации – путь был долгим и тернистым. Мы не раз хотели внести коррективы в чертежи, но, к сожалению, так и не осуществили задуманное. Поэтому, чтобы больше не откладывать, мы решили опубликовать его в исходном виде. Однако, следует учесть, что в конструкции имеются определенные нюансы, которые мы хотели внедрить, но они не получили широкой поддержки среди строительной сферы. По этой причине, мы приняли решение отказаться от их использования в дальнейших проектах. Поэтому тем, кто решит использовать данные чертежи для строительства дома или разработки собственного проекта, настоятельно рекомендуем тщательно изучить их перед началом работы. Мы призываем крайне осторожно относиться к использованию предлагаемой схемы обвязки свай, поскольку она представляет собой компромисс между обвязкой из бруса и доской. Нам кажется, что более надежной и привычной является схема обвязки из доски. Хотя еще

За время работы над проектом, мы столкнулись со многими сложностями и препятствиями. От идеи до реализации – путь был долгим и тернистым. Мы не раз хотели внести коррективы в чертежи, но, к сожалению, так и не осуществили задуманное. Поэтому, чтобы больше не откладывать, мы решили опубликовать его в исходном виде.

Однако, следует учесть, что в конструкции имеются определенные нюансы, которые мы хотели внедрить, но они не получили широкой поддержки среди строительной сферы. По этой причине, мы приняли решение отказаться от их использования в дальнейших проектах. Поэтому тем, кто решит использовать данные чертежи для строительства дома или разработки собственного проекта, настоятельно рекомендуем тщательно изучить их перед началом работы. Мы призываем крайне осторожно относиться к использованию предлагаемой схемы обвязки свай, поскольку она представляет собой компромисс между обвязкой из бруса и доской. Нам кажется, что более надежной и привычной является схема обвязки из доски. Хотя еще несколько лет назад чаще встречалась обвязка свай из бруса, поскольку доска не вызывала доверия, сейчас это решение должно вызвать настороженность.

Каркасный дом КД-143 Муратор © Владимир Пустоход, 2024
Каркасный дом КД-143 Муратор © Владимир Пустоход, 2024

Также проект предусматривает шаг стоек 575мм, от которого мы отказались в пользу более удобного для укладки утеплителя шага в 590 мм.

Этот проект мы создавали около 10 лет назад, когда рынок каркасных домов только начинал развиваться. Многие решения, которые сегодня кажутся очевидными, в то время только зарождались. На рынке были определенные размеры и форматы материалов, которые сегодня уже не используются производителями. Но тем интереснее посмотреть, как было тогда. Сегодня многие просто убрали бы такой проект с глаз долой, чтобы избежать лишних вопросов. Но мы верим, что пользователи нашего сайта - это люди, способные оценить идею проекта и воздержаться от бездумного копирования.

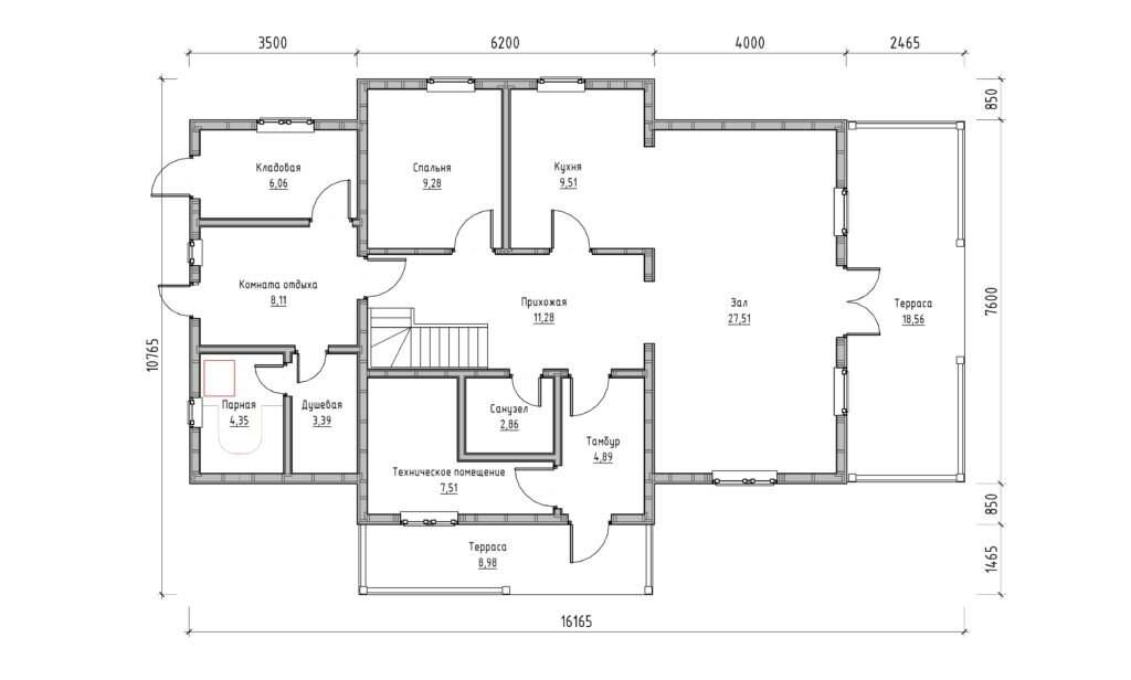
План первого этажа каркасного дома КД-143 Муратор © Владимир Пустоход, 2024
План первого этажа каркасного дома КД-143 Муратор © Владимир Пустоход, 2024

Перед нами масштабный двухэтажный дом общей площадью 140 квадратных метров, не считая террас и балконов. Благодаря своей архитектуре, дом кажется еще больше и представительнее. В его внешнем виде и планировке прослеживается спокойный скандинавский стиль. Главная идея проекта - объединить под одной крышей все необходимые помещения, включая хозблок, баню и даже беседку. Площадь первого этажа - 95 квадратных метров, второго - 45 квадратных метров.

План мансардного этажа каркасного дома КД-143 Муратор © Владимир Пустоход, 2024
План мансардного этажа каркасного дома КД-143 Муратор © Владимир Пустоход, 2024

Большая гостиная-столовая площадью около 30 квадратных метров соединена с кухней, площадь которой составляет 9.5 квадратных метров. Кухня вынесена в отдельную комнату, но имеет большой проход в зал. Это решение позволяет при необходимости изолировать кухню от общего пространства, например, с помощью раздвижной двери. Достаточная площадь кухни позволяет разместить там дополнительный обеденный стол в случаях, когда вы не хотите накрывать его в столовой или когда гостей недостаточно. Из гостиной можно выйти на большую террасу, которая заменяет беседку во дворе. На открытой террасе можно разместить всю необходимую садовую мебель для организации места отдыха и проведения мероприятий на свежем воздухе.

Каркасный дом КД-143 Муратор © Владимир Пустоход, 2024
Каркасный дом КД-143 Муратор © Владимир Пустоход, 2024

Из просторной прихожей площадью 11.5 квадратных метра, освещенной через гостиную, можно попасть в кабинет или спальню на первом этаже, а также пройти в тамбур с зоной для хранения вещей площадью 4.5 квадратных метра. Из тамбура можно попасть в техническое помещение площадью 7.5 квадратных метра или выйти на крыльцо, идущее вдоль всей ширины фасада основного здания. Крыльцо отлично подходит для встреч с соседями или представителями администрации, а также для хранения велосипедов, колясок и других вещей. Также в прихожей расположена дверь в санузел и проход в пристройку.

Каркасный дом КД-143 Муратор © Владимир Пустоход, 2024
Каркасный дом КД-143 Муратор © Владимир Пустоход, 2024

В пристройке слева (справа находится гостиная) расположена небольшая парная с комнатой отдыха, откуда можно выйти на участок. Здесь же находится небольшая мастерская, где хозяин дома занимается ремонтом радиотехники в свободное время.

Поднявшись на мансарду, видим стандартную планировку: просторная спальня хозяев дома площадью 16.5 квадратных метров и две детские комнаты площадью по 9.5 квадратных метров каждая. Посередине расположен санузел.

В качестве фундамента были выбраны винтовые сваи. Сейчас мы бы рекомендовали обратить внимание на забивные бетонные сваи размером 150x150 мм. Каркас дома собирается из доски размером 50x150 мм, что соответствует доске естественной влажности. Несмотря на то, что такая доска значительно дешевле сухой строганной, мы бы настоятельно не рекомендовали использовать ее для строительства каркаса дома. Строительство из такой доски может привести к негативным последствиям. Если вы все же решите строить из такой доски, чтобы немного сэкономить, то необходимо либо заранее приобрести такую доску и высушить ее до остаточной влажности 16-18%, либо после сборки каркаса, ни в коем случае, не начинать его утепление сразу, а дать каркасу время для того, чтобы лишняя влага из древесины вышла и достигла тех же 14-17%. После этого в каркас можно укладывать утеплитель и монтировать пароизоляцию.

Терраса каркасного дома КД-143 Муратор © Владимир Пустоход, 2024
Терраса каркасного дома КД-143 Муратор © Владимир Пустоход, 2024

Мы также настоятельно не рекомендуем доверять строителям в этом вопросе. Они могут сказать, что доска уже полежала, подсохла на базе, и что пока будет собираться каркас, она еще подсохнет. Когда придет время укладывать утеплитель, они скажут, что у вас будет абсолютно сухой каркас, и проблем не будет. Но стоит помнить, что строители говорят то, что вы хотите слышать, а с возникшими проблемами разбираться придется вам.

Стропильная система достаточно проста и представляет собой коньковую балку, на которую опираются стропила, с приподнятой затяжкой. Внешнюю и внутреннюю отделку каждый может выполнить по своему вкусу. Однако время вносит свои коррективы: например, еще 5 лет назад все каркасные дома обязательно обшивались снаружи ОSB, сейчас это делают реже, часто отказываясь от наружной обшивки каркаса.

В общем, повторим еще раз, что этот проект не предполагает слепое копирование «скачал - распечатал чертежи - пошел строить». Он скорее является ностальгическим взглядом в прошлое.

ПРОЕКТ КАРКАСНОГО ДОМА КД-143 МУРАТОР

https://karkas.info/wp-content/uploads/2024/02/chertezhi-proekta-karkasnogo-doma-kd-143-murator.pdf

© karkas.info, 2024 Свободно для использования, в том числе и в коммерческих целях, при условии указания авторства и источника.