Добавить в корзинуПозвонить
Найти в Дзене
Даст | DAST

Проектирование отопления в частном доме: Необходимость или деньги в топку?

Многие владельцы частных домов убеждены, что составление проекта отопления – это пустая трата времени и денег. Якобы, если у бригады монтажников есть хороший опыт, они без труда сделают работу, не ориентируясь на проект. На самом деле это не так. Отсутствие проекта пожжет привести к печальным последствиям. Зачем нужен проект отопления: Заключение Несмотря на кажущуюся «ненужность» проекта, его составлением лучше не пренебрегать. Его наличие существенно упрощает не только процесс монтажных работ, но и дальнейшую эксплуатацию установленного оборудования. ********************************************************
Мы проектно-инженерная компания DAST. Занимаемся проектированием, установкой и обслуживанием инженерных и климатических систем. Проводим бесплатные консультации! Также мы реализуем поставку оборудования и комплектующих по всей России.
Сайт компании: https://dast.ru/.
Каталог: https://dast.ru/catalog/.
Услуги: https://dast.ru/services/montazh/.
Почта: info@dast.ru
*****************
Оглавление
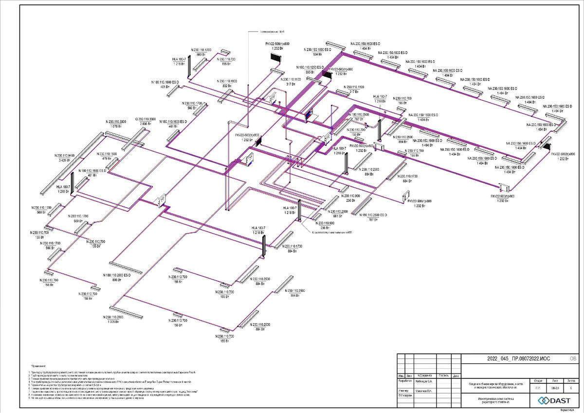
Изометрическая схема радиаторного отопления (картинка взята с сайта dast.ru)
Изометрическая схема радиаторного отопления (картинка взята с сайта dast.ru)

Многие владельцы частных домов убеждены, что составление проекта отопления – это пустая трата времени и денег. Якобы, если у бригады монтажников есть хороший опыт, они без труда сделают работу, не ориентируясь на проект. На самом деле это не так. Отсутствие проекта пожжет привести к печальным последствиям.

Зачем нужен проект отопления:

  • Тепловой расчет. Благодаря ему у человека появляется возможность просчитать все теплопотери. Это дает возможность подобрать оптимальное количество отопительных приборов для каждого помещения. При этом они будут работать в нормальном режиме. Если не учесть теплопотери, владельцу для поддержания комфортной температуры в помещении придется усиливать мощность отопления, а это чревато возрастанием потребления энергии и снижению срока эксплуатации оборудования.
  • Бесперебойная работа. При составлении проекта специалисты просчитывают все детали оборудования (диаметр труб, рекомендуемый состав системы и пр.). Как следствие – увеличивается срок его службы. При отсутствии проекта в процессе монтажа можно допустить определенные ошибки, которые приведут к поломкам.
  • Снижение рисков. В случае возникновения неисправностей человек, имея на руках проект, может быстро рассчитать, где именно произошла поломка и как ее можно быстро устранить.
  • Снижение стоимости. Монтажники часто пользуются технической неграмотностью заказчиков. В результате для установки оборудования владельцам дома приходится тратить большое количество денежных средств, часть из которых идет «в карман» рабочим. Один из пунктов проекта – это смета, с указанием точных цен на различные конструктивные элементы, а также их рекомендуемая марка. Соответственно, имея на руках такой документ, человек еще до начала работ будет знать их стоимость. Поэтому недобросовестным монтажникам не удастся его обмануть.
  • Легче найти подрядчика. Специалисты из крупных компаний способны собрать систему отопления по проекту буквально как «конструктор». Соответственно, человеку не составит труда найти монтажников. Кроме того, благодаря имеющейся у него на руках смете, он сможет легко контролировать их работу.
  • Снижение риска недопонимания. При выполнении работ на основании определенной документации существенно снижается риск того, что заказчик и исполнитель не поймут друг друга.
  • Легче продать дом. Если покупатель окажется технически грамотным, то наличие проектной документации будет для него весомым поводом.
  • Упрощение ремонта. В проекте четко указано наименование оборудования. Соответственно, если один из конструктивных элементов выйдет из строя, человеку не придется тратить время на то, чтобы найти его марку и модель. Достаточно просто заглянуть в бумаги.

Заключение

Несмотря на кажущуюся «ненужность» проекта, его составлением лучше не пренебрегать. Его наличие существенно упрощает не только процесс монтажных работ, но и дальнейшую эксплуатацию установленного оборудования.

********************************************************
Мы проектно-инженерная компания DAST. Занимаемся проектированием, установкой и обслуживанием инженерных и климатических систем. Проводим бесплатные консультации! Также мы реализуем поставку оборудования и комплектующих по всей России.
Сайт компании:
https://dast.ru/.
Каталог:
https://dast.ru/catalog/.
Услуги:
https://dast.ru/services/montazh/.
Почта: info@dast.ru
*******************************************************
Спасибо за прочтение! Если вам понравился материал, то можете поставить лайк и
подписаться на канал, чтобы не упустить новые статьи. Также будем рады комментариям и с удовольствием на них ответим!

Также читайте: