Добавить в корзинуПозвонить
Найти в Дзене

Удачная планировка нашего дома. Отзыв спустя 3 года

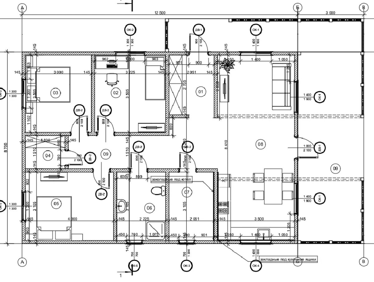
Планировка от застройщика нам сразу понравилась, наши изменения были минимальны: убрали часть стены за диваном (см. чертёж) и перегородку в санузле, сделав его совместным. Ну, и расширили дверь на веранду на 10 см и не пожалели: наш огромный диван от One & Home иначе бы не пролез. Обязательно сделайте одну из входных дверей пошире: крупногабаритную мебель и бытовую технику по другому не занести. Зеркалить проект тоже не пришлось. И входная дверь напротив калитки и выход на веранду - где надо. Дом стоит как раз на горочке, из окон вид на участок. Соседей нет. За прозрачным забором лес и поле😍 И сейчас, спустя почти 3 года, нас эта планировка более чем устраивает. Почему: ✔️ огромная светлая кухня гостиная на южную сторону. Летом козырёк-навес веранды отсекает прямой свет солнца (дом не греется) зимой низкое солнце бьет в окна, греет нас и экономит энергию. ✔️ 3 спальни. Гостей есть куда положить + диван в гостиной для подстраховки. Ночевали до 10 человек без особых хлопот. ✔️кор
Оглавление

Планировка от застройщика нам сразу понравилась, наши изменения были минимальны: убрали часть стены за диваном (см. чертёж) и перегородку в санузле, сделав его совместным.

Ну, и расширили дверь на веранду на 10 см и не пожалели: наш огромный диван от One & Home иначе бы не пролез.

Обязательно сделайте одну из входных дверей пошире: крупногабаритную мебель и бытовую технику по другому не занести.

Зеркалить проект тоже не пришлось. И входная дверь напротив калитки и выход на веранду - где надо. Дом стоит как раз на горочке, из окон вид на участок. Соседей нет. За прозрачным забором лес и поле😍

Планировка от застройщика. Кусок стены у дивана убрали и санузел сделали совмещённым. Кухня гостиная и веранда смотрят на Юг, окна обеих спален - на Север.
Планировка от застройщика. Кусок стены у дивана убрали и санузел сделали совмещённым. Кухня гостиная и веранда смотрят на Юг, окна обеих спален - на Север.

И сейчас, спустя почти 3 года, нас эта планировка более чем устраивает.

Наша итоговая планировка
Наша итоговая планировка

Площадь помещений и размеры окон
Площадь помещений и размеры окон

Почему:

✔️ огромная светлая кухня гостиная на южную сторону. Летом козырёк-навес веранды отсекает прямой свет солнца (дом не греется) зимой низкое солнце бьет в окна, греет нас и экономит энергию.

✔️ 3 спальни. Гостей есть куда положить + диван в гостиной для подстраховки. Ночевали до 10 человек без особых хлопот.

✔️коридор и кладовка разделяет нашу мастер-спальню двумя стенами от других спален. То есть тишина и интим

✔️кладовка хоть и маленькая, но аж 3.5 м высотой. Сделал стеллажи - места очень много. До сих пор рады, что отказались от второго санузла. Кладовка в доме - обязательная вещь. Весь сезонный шмот и инструменты лежат там, в комнатах чисто и просторно.

✔️котельная-постирочная (справа от санузла на чертеже) отлично все уместила и проходит по газовым нормативам. Плюс она изолирована от всех спален двумя стенами, то есть шум от котлов, стиралок и сушилок будет минимальный

✔️посудомойка и холодильник тоже максимально далеко от спален. Тоже в угоду тишине. После города тишина - это отдельный вид удовольствия.

✔️ тамбур достаточно широкий. Поставили узкую прихожую, чтобы не загромождать его и толкаться попами. На пол кинули тёплый ИК-пол. Обувь сушить и отсекать холодный воздух при открытии двери.

✔️ про веранду наверное не стоит говорить - на ней хоть свадьбу небольшую можно играть: почти 40 кв м, большая часть закрыта навесом, который отсекает солнце в жару. Окна двух спален на северной стороне, где никогда не бывает солнца и максимально прохладно.

Повторяясь, планировка полностью устраивает. Не зря несколько месяцев перебирал СК и проекты.

Есть вопросы - пишите.