Описание Этот дом — настоящая жемчужина для тех, кто ценит красоту и гармонию природы. Он выполнен в современном стиле из дерева и стекла, что создает ощущение простора и света. Здесь вы можете наслаждаться уютом и комфортом в любое время года, а также отдыхать на просторной веранде, наслаждаясь видом на зеленые деревья и траву. Этот дом… Читать далее Обзор «Витовт»
Описание Этот дом — настоящая жемчужина для тех, кто ценит красоту и гармонию природы. Он выполнен в современном стиле из дерева и стекла, что создает ощущение простора и света. Здесь вы можете наслаждаться уютом и комфортом в любое время года, а также отдыхать на просторной веранде, наслаждаясь видом на зеленые деревья и траву. Этот дом… Читать далее Обзор «Витовт»
...Читать далее
Оглавление
Основной фасад admin
Описание
Этот дом — настоящая жемчужина для тех, кто ценит красоту и гармонию природы. Он выполнен в современном стиле из дерева и стекла, что создает ощущение простора и света. Здесь вы можете наслаждаться уютом и комфортом в любое время года, а также отдыхать на просторной веранде, наслаждаясь видом на зеленые деревья и траву. Этот дом — идеальное место для семейного счастья.
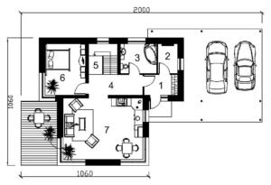
Планировка
1 этаж
2 этаж
📷
Экспликация Помещения 1 этаж 1. Тамбур 4,76 кв.м 2. Котельная 4,04 кв.м 3. Санузел 7,35 кв.м 4. Коридор 7,65 кв.м 5. Лестница 2,96 кв.м 6. Спальня 14,24 кв.м 7. Гостиная и кухня 33,66 кв.м Помещения 2 этаж 1. Коридор 6,04 кв.м 2. Спальная 13,84 кв.м 3. Санузел 4,16 кв.м 4. Спальня 14,2 кв.м Описание планировкиЭта планировка дома подойдет для семьи, предпочитающей открытые пространства и функциональность. Удобная гостиная с кухней, две спальни и гараж на две машины обеспечивают комфортное проживание. Наличие двух ванных комнат добавляет удобства для большой семьи или для приема гостей.Фасады
📷
📷
📷
Основные характеристики
Габариты 10Х12 Площадь 112 кв.м Этажность 2 Спален 3 Технология Газобетон, каркасАвтор: enamai.lt/ru/proekty-domov/vytautasОценка проекта
Очень оригинальный проект, как по внешнему виду так и по функционалу и сбалансированности.
Что хорошо: навес на 2 авто сразу возле дома. Легко и просто в строительстве, удобно пользоваться — минимум обслуживания, всегда сухо и близко от входной двери.
Широкая удобная лестница на 2ой этаж удачно расположена. Близко сгруппированы инженерные системы.
Из минусов: Не очень большая Гостиная.
Я бы дал оценку 4+
