Найти в Дзене
Строй и Живи

Одноэтажный дом с тремя спальнями

Проект 22КП02. На нашем сайте проект-сиж.рф вы найдете более 2600 готовых проектов. Общая площадь 196 м2 Проектом предусмотрено: - кухня-гостиная 41,11 м2 - три спальни 9,74 м2, 14,50 м2, 16,25 м2 - кабинет 8,73 м2 - с/у 4,10 м2 - ванная 7,78 м2 - гардеробная 9,80 м2 - котельная 6,06 м2 - терраса 23, 22 м2 Каркас из сухой строганой доски * Перекрытие 50Х200мм * Стены 50X150мм * Стропила 50X200мм Утепление Роквул Установлены окна ПВХ Veka 70 мм белые и входная металлическая дверь. Наш сайт: сиж.рф Контакты: 8(800)707-05-89 Почта: info@sizh.ru Наш телеграм: Строй и Живи Наш Вконтакте: Строй и Живи Стройте дом вместе с нами!
объект Строй и Живи
объект Строй и Живи

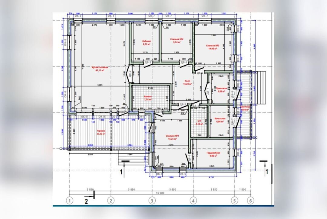
Проект 22КП02. На нашем сайте проект-сиж.рф вы найдете более 2600 готовых проектов.

Общая площадь 196 м2

планировка
планировка

Проектом предусмотрено:

- кухня-гостиная 41,11 м2

- три спальни 9,74 м2, 14,50 м2, 16,25 м2

- кабинет 8,73 м2 - с/у 4,10 м2

- ванная 7,78 м2

- гардеробная 9,80 м2

- котельная 6,06 м2

- терраса 23, 22 м2

объект Строй и Живи
объект Строй и Живи

Каркас из сухой строганой доски

* Перекрытие 50Х200мм

* Стены 50X150мм

* Стропила 50X200мм

Утепление Роквул

Установлены окна ПВХ Veka 70 мм белые и входная металлическая дверь.

Наш сайт: сиж.рф

Контакты: 8(800)707-05-89

Почта: info@sizh.ru

Наш телеграм: Строй и Живи

Наш Вконтакте: Строй и Живи

Стройте дом вместе с нами!