Добавить в корзинуПозвонить
Найти в Дзене
ЭТО ВАШ ИНТЕРЬЕР

Женщина полностью переделала старую "сталинку" в уютное гнездышко (Сравните сами фото До и После)

Герои сегодняшней статьи — супружеская пара с двумя разнополыми детьми. Они давно планировали расширяться и после подвернувшегося хорошего варианта, они сразу же вышли на сделку. Главный плюс данной квартиры в том, что это типичная "сталинка" с высокими потолками и толстыми стенами. И площадь квартиры просто отличная. Но чтобы квартира стала идеальным местом для жизни, было решено обратиться к женщине дизайнеру, которая полностью преобразила данное жилище. Проект Прихожая Во входной зоне на пол уложили серый керамогранит. Стены решили оформить декоративной кирпичной кладкой в белом цвете, а потолок выкрасили в коричневый оттенок. Слева у входа появился небольшой комод-обувница, а напротив него в нише расположился вместительный шкаф. В прихожей так же имеется кладовка. Здесь хранится пылесос, швабра, спортивный инвентарь хозяев и тд. Кухня-гостиная Кухню и гостиную было решено объединить в одно большое пространство. Для этого была сделана перепланировка, благодаря которой кухонную зо
Оглавление

Герои сегодняшней статьи — супружеская пара с двумя разнополыми детьми. Они давно планировали расширяться и после подвернувшегося хорошего варианта, они сразу же вышли на сделку.

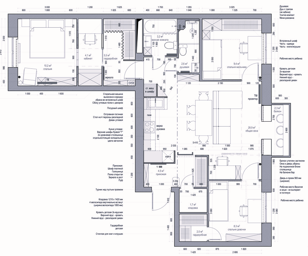
Главный плюс данной квартиры в том, что это типичная "сталинка" с высокими потолками и толстыми стенами. И площадь квартиры просто отличная. Но чтобы квартира стала идеальным местом для жизни, было решено обратиться к женщине дизайнеру, которая полностью преобразила данное жилище.

Проект

  • Местоположение: г. Москва
  • Площадь квартиры: 86 кв. м
  • Владельцы: семейная пара с двумя детьми

Прихожая

Во входной зоне на пол уложили серый керамогранит. Стены решили оформить декоративной кирпичной кладкой в белом цвете, а потолок выкрасили в коричневый оттенок. Слева у входа появился небольшой комод-обувница, а напротив него в нише расположился вместительный шкаф.

-3

В прихожей так же имеется кладовка. Здесь хранится пылесос, швабра, спортивный инвентарь хозяев и тд.

Кухня-гостиная

Кухню и гостиную было решено объединить в одно большое пространство. Для этого была сделана перепланировка, благодаря которой кухонную зону перенесли в коридор, а его, в свою очередь, присоединили к гостиной (вся перепланировка узаконена).

-4

По левой стороне расположилась зона кухни. На полу выложили плитку с различными узорами, а стены покрашены в светлый оттенок. Гарнитур установили буквой П. Нижние фасады выполнены в классической белой расцветке, а верхние имитируют деревянную поверхность.

Напротив кухни организовали столовую зону. На полу — ламинат. К обеденному столу примыкает большой угловой диван, который легко может превратиться в спальное место для гостей. В углу организовали небольшое рабочее место, а балкон решили присоединить к комнате.

Спальня

Вытянутую хозяйскую спальню было решено сделать более правильной формы. Для этого часть комнаты отдали под гардеробную и под небольшой рабочий кабинет. В центре комнаты поставили двуспальную кровать с мягким изголовьем и подъемным механизмом.

Детские комнаты

Так как в семье два разнополых ребенка, их поселили в разные комнаты (благо площадь квартиры позволила это сделать). Наполнение комнат примерно одинаковое: кровать, рабочее место, шкафы и тд. Правда у девочки есть небольшая гардеробная, а у мальчика лишь шкаф, но зато во всю стену.

Ванная комната

Стены и пол в ванной комнате оформили тремя видами шестиугольной плитки и влагостойкой краской. Одна плитка с 3-D эффектом зрительно ломает геометрию пространства, что создает необычный визуальный эффект. Напротив ванной комнаты появилась иша, где установили стиральную и сушильную машины.

Если вам понравилась статья, то не забудьте поставить лайк и подписаться, чтобы не пропустить новый материал!

Так же пишите в комментариях, что вам понравилось в этом проекте, а что вызывает сомнения.