Найти в Дзене

Каркасный дом 8х9 без отделки за 1 170 000 ₽. Фотоотчет, планировка.

📅 Дата сдачи: январь 2024г
🏡 Комплектация: каркас 150мм, без отделки
💰 Стоимость: 1 170 000 ₽

👉 Комплектация "без отделки":

- двойная обвязка основания из бруса 150х150мм и 50х150мм
- лаги из бруса 50х150мм, 100х150мм, шаг 0,59м
- несущие стены (обвязки, стойки, ригель) доска 40х150мм, шаг 0,59м
- перегородки (обвязки, стойки, ригель) доска 40х100мм, шаг 0,59м
- высота потолков: 2,5м
- потолочные перекрытия 50х200мм, шаг 0,59м,
- стропильная система 40х150мм, шаг 0,59м,
- крыша двухскатная, высота конька 1,5м, свесы крыши 40см
- кровля: м\ч Монтеррей, обрешетка, ветрозащита, контр-обрещетка 40х50мм
- наружная отделка стен: ветрозащита, контр-рейка 20х50мм, имитация бруса
- утепление и внутренняя отделка не выполняются
- мембранные пленки Ондутис SA130, А100,
- окна и двери не устанавливаются
- обработка (огне-биозащита) основания и лаг 1-го этажа

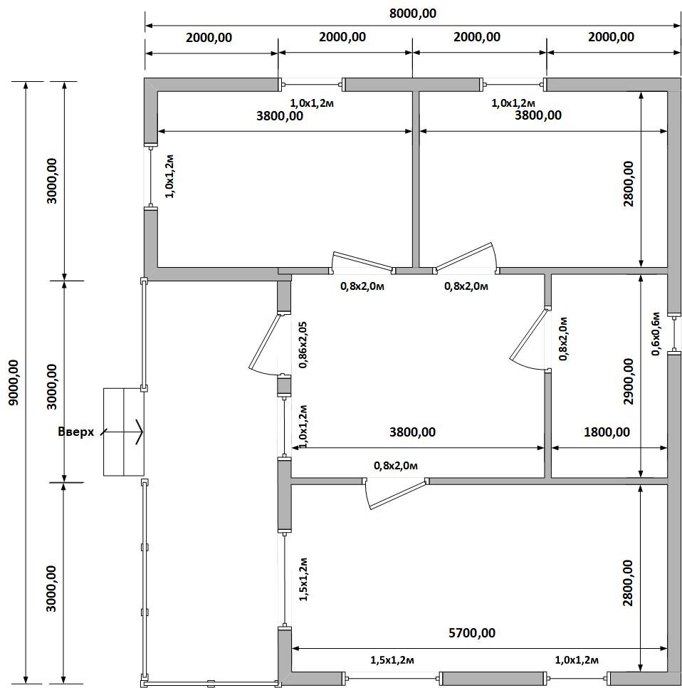
Планировка:

-2

Понравился дом? Свяжитесь с нами, мы сделаем для вас расчет стоимости или подберем подходящий проект под ваши пожелания.

📍 Наши контакты:

• Сайт: bagrovstroy.ru
• Группа VK:
vk.com/bagrovstroy