Найти в Дзене
Дорога к Дому

Не допускайте этих ошибок при строительстве дома

Планировка дома, это как квест в поисках уютного и функционального пространства! Но часто в это приключение могут затесаться ошибки. Давайте рассмотрим несколько типичных промахов, которые стоит избегать при выборе планировки дома. 1 Игнорирование потребностей жильцов Прежде всего, важно учитывать потребности и предпочтения будущих обитателей дома. Состав семьи является ключевым фактором. Например, семья с детьми нуждается в большем количестве спален и общественных зон, чтобы обеспечить комфорт и удобство для всех членов семьи. Другим примером являются семьи, в которых живут пожилые люди, которым могут потребоваться особые условия доступности и безопасности в доме. С увеличением числа людей, работающих из дома, важно учитывать наличие рабочего пространства при планировании дома. Установка комфортного и функционального кабинета или мини-офиса может значительно повысить удобство жизни и эффективность работы. У каждого члена семьи могут быть свои увлечения и хобби, и создание пространства
Оглавление

Планировка дома, это как квест в поисках уютного и функционального пространства! Но часто в это приключение могут затесаться ошибки. Давайте рассмотрим несколько типичных промахов, которые стоит избегать при выборе планировки дома.

1 Игнорирование потребностей жильцов

Прежде всего, важно учитывать потребности и предпочтения будущих обитателей дома.

  • Размер семьи и возраст домочадцев

Состав семьи является ключевым фактором. Например, семья с детьми нуждается в большем количестве спален и общественных зон, чтобы обеспечить комфорт и удобство для всех членов семьи. Другим примером являются семьи, в которых живут пожилые люди, которым могут потребоваться особые условия доступности и безопасности в доме.

  • Работа из дома

С увеличением числа людей, работающих из дома, важно учитывать наличие рабочего пространства при планировании дома. Установка комфортного и функционального кабинета или мини-офиса может значительно повысить удобство жизни и эффективность работы.

  • Хобби и увлечения

У каждого члена семьи могут быть свои увлечения и хобби, и создание пространства для их занятий может значительно улучшить качество жизни. Это может быть место для музыки, творчества, спортивные зоны и т.д.

  • Физические особенности

Если для кого-то из членов семьи существуют физические ограничения (например, ограниченная подвижность), то дом должен быть спланирован с учетом этих особенностей. Например, широкие двери для доступа кресел-колясок, удобные подъемные устройства и безбарьерные душевые помещения могут стать важными аспектами для создания комфортной обстановки.

Учет этих и других потребностей жильцов позволит создать пространство, которое не только отражает их индивидуальность, но и способствует комфортной жизни. Как будто каждая деталь внимательно продумана и создана для благополучия обитателей дома. Пренебрежение этими аспектами может привести к дальнейшим неудобствам и затратам на переделки.

2 Недостаточное планирование хранения

Что может быть хуже, чем построить дом своей мечты, а затем понять, что места для хранения не хватает? Недооценка объема нужного пространства для хранения может привести к тому, что дом будет выглядеть беспорядочно и неопрятно. Встроенные шкафы, кладовые помещения и многофункциональные средства хранения - вот что поможет избежать этой проблемы.

Зоны хранения - это что-то вроде волшебства в мире быта! Когда они созданы продуманно, в доме пространство воспринимается совершенно по-другому. Давай обсудим, на что стоит обратить внимание, когда планируешь зоны хранения в доме.

  • Гардеробные

Гардеробные комнаты - это мечта многих! Они помогают поддерживать порядок и экономят массу времени при подготовке к выходу из дома. Различные виды штанг, полок, ящиков и системы хранения обуви могут сделать гардеробную максимально функциональной, удобной и организованной.

  • Подсобные помещения

Кладовые, подвалы, чердаки или другие подсобные помещения - это пространства, которые могут принести огромную пользу, если использовать их с умом. Здесь можно хранить различные вещи, которые не используются ежедневно, такие как сезонные предметы, декорации, инструменты и многое другое. Важно правильно организовать и оборудовать эти помещения, чтобы максимально использовать доступное пространство.

  • Кухонные и встроенные шкафы

Кухонные шкафы и системы хранения - это область, где планирование пространства критически важно. Они помогают поддерживать порядок и создают удобство в повседневной жизни. Тут важно учесть разнообразные потребности по хранению продуктов, кухонной утвари, бытовой химии и прочих необходимостей, чтобы все было под рукой и легко доступно. А в случае, если не планируется часто и много готовить на кухне можно более оптимально распределить пространство кухонной зоны в пользу других помещений, например гостиной.

  • Многофункциональные мебельные решения

Мебель с встроенной системой хранения - это прекрасное решение для экономии пространства. Мягкая мебель с выдвижными ящиками, кофейные столики с откидывающейся столешницей, кровати с нишами для хранения - все это позволяет максимально использовать пространство и организовать хранение вещей в самых неожиданных местах.

Создание эффективных зон хранения - это умение максимально использовать пространство, делая его функциональным и удобным для проживания. Важно учитывать потребности семьи и создавать решения, которые помогают поддерживать порядок, экономят время и дарят комфорт.

3 Неправильное размещение помещений относительно друг друга

Размещение помещений, играет важную роль в обеспечении комфорта и эффективности использования пространства. Неправильное размещение может привести к неудобствам и потере функциональности. Это как сложный кроссворд, где нужно угадать правильное расположение каждой части! Давай разберемся, какие ошибки стоит избегать при распределении помещений в доме.

  • Ванные комнаты и санузлы

Расположение ванных комнат и их количество - это один из ключевых аспектов, о котором следует задуматься при проектировании дома. Неправильное размещение ванных комнат и санузлов может привести к неудобству и даже конфликтам в бытовых моментах. Размещение ванных комнат рядом с спальнями обеспечивает удобство для обитателей, в то время как их размещение ближе к общественным зонам может быть более удобным для гостей.

По количеству санузлов в доме можно предварительно сориентироваться по формуле:

количество санузлов = количество спален минус один.

Но все же, рекомендуется предусмотреть не менее двух санузлов в доме.

Один санузел допустим для небольшого дома, в котором проживает семейная пара или пара с одним ребенком. При этом гостей бывает не много и принимают их нечасто.

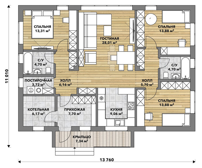
Один из признаков удачного расположения ванных комнат, когда для их посещения нет необходимости движения из спальни через общественную зону.

В этом примере из детских спален можно попасть в санузел не выходя в общественную зону
В этом примере из детских спален можно попасть в санузел не выходя в общественную зону
В этой планировке из всех спален есть доступ в санузлы без выхода в общественную зону
В этой планировке из всех спален есть доступ в санузлы без выхода в общественную зону

Еще больше приватности и комфорта можно получить, если вход в санузел размещен напрямую из спальни (такое решение часто называют мастер-спальней). Но при таком подходе санузлов в доме должно быть больше одного😉

Пример мастер-спальни с отдельным санузлом.
Пример мастер-спальни с отдельным санузлом.
  • Кухня

Кухня - это сердце дома, и ее расположение играет важную роль в обеспечении удобства использования и циркуляции пространства.

При планировании кухни, важно учитывать эргономику и удобство использования пространства. Оптимальное размещение рабочей зоны (столешницы, варочной поверхности, мойки) в форме "галереи", "П-образной" или "островной" кухни может улучшить комфорт и удобство приготовления пищи. Также стоит подумать об оптимальном размещении холодильника, духовки, варочной поверхности, мойки и микроволновой печи для обеспечения удобства доступа и использования.

-4

Размещение кухни относительно обеденной или жилой зоны важно для создания комфортной и функциональной обстановки. Кухня, открытая к обеденной или столовой зоне, может способствовать более свободному общению и созданию единого пространства для приема гостей или общения с членами семьи. В то же время, размещение кухни вблизи входа в дом может обеспечить удобство при разгрузке продуктов. Удобно, если планировка предусматривает прямой доступ из кухни в кладовую, но это зачастую требует дополнительного пространства на размещение двери, что может быть критично для компактных планировок. Пример подобного решения показан на картинке ниже.

Размещение кухни вблизи входа в дом и прямой доступ из кухни в кладовую
Размещение кухни вблизи входа в дом и прямой доступ из кухни в кладовую
  • Спальные комнаты

Месторасположение спальных комнат - еще один важный фактор. Спальни, расположенные далеко от общественных зон, могут обеспечить большую приватность, тишину и уединение. В то же время для гостевых спален их близкое расположение к общественным зонам может упростить принятие гостей и коммуникации с ними. В качестве гостевой спальни также можно использовать кабинет (при его наличии), оборудовав его, к примеру, раскладным диваном.

Спальни отделены от общественных зон холлами, "детская" и "родительская" зоны разнесены по разные стороны дома
Спальни отделены от общественных зон холлами, "детская" и "родительская" зоны разнесены по разные стороны дома
Временное использование кабинета в качестве гостевой спальни
Временное использование кабинета в качестве гостевой спальни
  • Рабочие помещения

При планировании рабочих пространств, таких как кабинет или офис, важно учитывать уровень шума, доступ к основным общественным зонам и возможность отделения отдельного пространства для работы. В некоторых случаях, если в кабинете подразумевается прием клиентов на дому, рекомендуется обеспечить в него доступ напрямую из прихожей. В этом случае малознакомые люди не будут попадать в общественную зону дома, что комфортнее для остальных домочадцев. Близость гостевого санузла, с доступом из прихожей, также будет плюсом для данного сценария.

Если оборудовать в этой спальне рабочий кабинет, гостю не нужно будет проходить в жилую часть дома
Если оборудовать в этой спальне рабочий кабинет, гостю не нужно будет проходить в жилую часть дома

Если в кабинете предполагается работа за компьютером и нет необходимости приглашать в него посетителей, то можно организовать отдельное пространство в спальне (или мастер спальне). Это обеспечит минимальный уровень шума и сэкономит пространство в доме в сравнении с выделением отдельного помещения под кабинет.

В мастер-спальне реализован кабинет для работы хозяев
В мастер-спальне реализован кабинет для работы хозяев

Все перечисленные аспекты нужно учитывать при планировании размещения помещений в доме, не забывая про потребности и предпочтения будущих обитателей дома. Это поможет создать пространство, которое будет соответствовать их образу жизни.

4 Недостаточное освещение

Освещение - это ключевой аспект комфорта и уюта в доме, но иногда он упускается из виду. Недостаточно освещенные рабочие пространства, плохо спланированные источники света могут существенно ухудшить удобство и функциональность дома.

  • Естественное освещение

При оценке естественного освещения важно рассмотреть расположение окон в каждом помещении для максимального проникновения света. Окна, размещенные на южной стороне, предоставляют больше яркого света в течение дня, в то время как окна на северной стороне обеспечивают более мягкое и равномерное освещение, но менее интенсивное. Точно определить достаточность естественного света может архитектор после проведения специальных расчетов на основе площади окон, их расположения, географического положения участка строительства и прочего. В первом приближении при оценке понравившейся планировки можно воспользоваться приблизительным расчетом. Угол падения света от окна будет примерно равен 30 градусам. Зная высоту окон, можно определить глубину распространения лучей от этого окна. Для примера ниже она составила около 4,3 метра.

-10

Теперь можно нанести зоны освещенности на планировку и увидеть, какие зоны освещены достаточно, а какие нет. Ниже пример такой схемы.

-11

Как видим, для качественного естественного освещения не стоит делать помещения в глубину от стены с окнами более 4-5 м.

  • Искусственное освещение

Искусственное освещение играет важную роль в создании атмосферы и обеспечении комфорта в помещениях, особенно в темное время суток. Как правило, искусственное освещение подразделяется на общее, функциональное и декоративное освещение.

Общее освещение: Это освещение общего характера, создающее основной световой фон в комнате. Обычно обеспечивается осветительными приборами, такими как потолочные люстры или светодиодные панели.

Функциональное освещение: Это освещение, предназначенное для выполнения определенных задач, таких как чтение, приготовление пищи, работа за компьютером и т.д. Здесь важно обеспечить контролируемый и направленный свет.

Декоративное освещение: Это освещение, которое создает атмосферу и подчеркивает декоративные элементы интерьера. Сюда входят напольные лампы (торшеры), подсветка картин, подсветка акцентов и прочие световые элементы, которые создают уют и придают интерьеру индивидуальность.

При выборе искусственного освещения важно учитывать цветовую температуру и яркость светильников, а также их соответствие функциональным потребностям помещения.

Соблюдение правил размещения и сочетания естественного и искусственного освещения поможет создать удобную, уютную и эстетически приятную обстановку в доме. Каждое помещение имеет свои особенности, и важно учитывать их при размещении освещения для обеспечения максимального комфорта и функциональности.

5 Недостаток пространства для социальных зон

Создание уютных и удобных общественных зон - это то, что делает дом по-настоящему пригодным для жизни. Надо помнить, что это место, где семья и друзья будут проводить время вместе. Рассмотрим, на что нужно обратить внимание, чтобы создать комфортные социальные зоны.

Гостиная

Гостиная - это место, где семья и друзья проводят время вместе. Учитывайте количество сидячих мест, расположение мебели для удобного общения, а также возможность создания уюта и атмосферы. Важно заранее продумать, как будете проводить досуг с семьей и друзьями и обеспечить пространство необходимым набором мебели, предметов интерьера, бытовой и мультимедийной техники. если планируете использовать камин или печь, в планировке нужно заранее предусмотреть место под дымоход и пространство вокруг, для обеспечения пожарной безопасности.

Обеденная зона

Обеденная зона - это место семейных обедов и разговоров. Важно, чтобы стол был достаточно большим для всех членов семьи или гостей, и чтобы было достаточно места для комфортного расположения стульев. Если у вас ограниченное пространство, вы можете рассмотреть варианты раскладных столов или столов с возможностью изменения формы.

Открытые площадки

Если у вас есть возможность, обязательно уделите внимание обустройству открытых зон. Веранда, терраса или двор - эти места идеальны для проведения времени на свежем воздухе со своими близкими. Мягкая мебель, столики, растения и светильники могут создать уютную атмосферу и стать местом для вечерних посиделок.

Если на вашем участке в теплое время года много комаров предусмотрите возможность защиты от них, например установкой на сезон москитных сеток или иными способами.

Многофункциональное использование пространства

При ограниченном пространстве, обратите внимание на многофункциональные решения. Мебель на колесиках, складная мебель или мебель-трансформеры могут помочь легко адаптировать зоны для различных целей.

Поддерживая комфортные социальные зоны в доме, вы создаете приятные условия для общения, отдыха и проведения времени вместе. Помните, что в конечном итоге важно обеспечить место, где каждый член семьи и гость может почувствовать себя свободно, комфортно и уютно.

Итак, планирование дома - это серьезное дело, и избегание этих типичных ошибок может сделать результат более комфортным и функциональным. Соблюдение баланса между эстетикой и практичностью, учет потребностей жильцов и принятие во внимание основных принципов планировки поможет создать пространство, которое будет радовать на протяжении многих лет.

Ну, а если хотите вдохновится идеями возможных вариантов планировок домов и подметить подходящие именно Вам решения, проходите в наш телеграм канал Дорога к Дому (https://ttttt.me/+aa-k4bxPYM0wNmQy). В нем мы публикуем только удачные и современные планировочные решения. Будем рады, если это поможет Вам с выбором!