Найти в Дзене

Обратите внимание на шикарный проект дома из клееного бруса «Бордо», который выполнен в классическом архитектурном стиле «Шале»

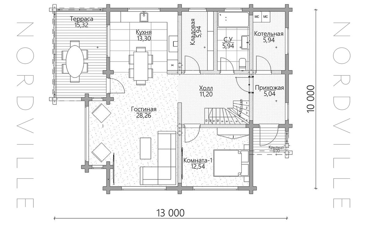
Представьте себя в нем. Вы обязательно прочувствуете всю его гармонию. Сколько всего удалось интегрировать в этот дом! Просторная кухня-гостиная в сочетании с приватной террасой, не оставит равнодушной даже самую требовательную хозяйку. Кстати, форма и площадь террасы позволяет удобно разместить столовую зону. Шикарный холл, своя собственная кладовая, санузел с полноценной Ванной и котельная. Конечно же спальня на первом этаже будет крайне удобна как для гостей, так и для Ваших родителей.
А теперь самое главное. Пять. Да, да! Целых 5 спален, две из которых объединяет общий балкон. Какими видами можно любоваться с него?! Вы только представьте себе. Все как на ладони.
Нашлось место и для объемного гардероба и ванной комнаты. Важно отметить, что спальные зоны достаточно просторные. Каждая спальня практически 13 квадратных метров.
Такой проект, украсит любой участок. Он отлично подойдет тем, кто не хочет платить за лишние квадратные метры. Тем, кто любит рациональность во всем. Каза

Представьте себя в нем. Вы обязательно прочувствуете всю его гармонию. Сколько всего удалось интегрировать в этот дом! Просторная кухня-гостиная в сочетании с приватной террасой, не оставит равнодушной даже самую требовательную хозяйку.

Кстати, форма и площадь террасы позволяет удобно разместить столовую зону. Шикарный холл, своя собственная кладовая, санузел с полноценной Ванной и котельная. Конечно же спальня на первом этаже будет крайне удобна как для гостей, так и для Ваших родителей.

А теперь самое главное. Пять. Да, да! Целых 5 спален, две из которых объединяет общий балкон. Какими видами можно любоваться с него?! Вы только представьте себе. Все как на ладони.

Нашлось место и для объемного гардероба и ванной комнаты. Важно отметить, что спальные зоны достаточно просторные. Каждая спальня практически 13 квадратных метров.

Такой проект, украсит любой участок. Он отлично подойдет тем, кто не хочет платить за лишние квадратные метры. Тем, кто любит рациональность во всем. Казалось бы, всего 184 кв.м., но пространство в доме продумано так, чтобы каждый сантиметр был максимально полезен для всей вашей семьи.

—————————

Сайт: nvle.ru

#строительстводома

#домиздерева

#домизклееногобруса

#строительстводомовмск