Найти в Дзене

Загородный дом в классическом стиле для ценителей комфорта и надежности

Если Вы являетесь приверженцем классического стиля, но жить в стандартном прямоугольном доме не хотите, обратите свое внимание на проект «Браун». Двухэтажный кирпичный дом с трех сторон декорирован эркерами. Особенно интересно смотрится оформление главного фасада: здесь эркер поддерживается колоннами крыльца. Площадь дома - 206 кв.м.
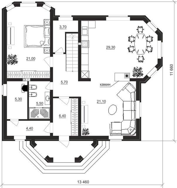
Габариты - 13.5 x 11.6 м. Планировка Планировка также не оставит равнодушными. Например, все правое крыло первого этажа – это кухня, гостиная и столовая в одном помещении, сердцем которого является камин. Также на первом этаже расположились жилая комната, прихожая, топочная и санузел. Еще четыре спальни и три санузла размещены на втором этаже. Большая семья сможет по достоинству оценить преимущества жизни в этом загородном доме. Приглашаем Вас посетить наши строящиеся дома, чтобы Вы могли вживую оценить профессионализм, компетентность и ответственность нашей компании. 👉Оставьте заявку прямо сейчас для получения оптимального коммерческого предложения. Для

Если Вы являетесь приверженцем классического стиля, но жить в стандартном прямоугольном доме не хотите, обратите свое внимание на проект «Браун». Двухэтажный кирпичный дом с трех сторон декорирован эркерами. Особенно интересно смотрится оформление главного фасада: здесь эркер поддерживается колоннами крыльца.

Площадь дома - 206 кв.м.
Габариты - 13.5 x 11.6 м.

Планировка

Планировка также не оставит равнодушными. Например, все правое крыло первого этажа – это кухня, гостиная и столовая в одном помещении, сердцем которого является камин. Также на первом этаже расположились жилая комната, прихожая, топочная и санузел. Еще четыре спальни и три санузла размещены на втором этаже. Большая семья сможет по достоинству оценить преимущества жизни в этом загородном доме.

Приглашаем Вас посетить наши строящиеся дома, чтобы Вы могли вживую оценить профессионализм, компетентность и ответственность нашей компании.

👉Оставьте заявку прямо сейчас для получения оптимального коммерческого предложения. Для этого переходите по ссылке => проект «Браун».

⭐Мы возьмем на себя закупку и доставку, оснащение строительной площадки и само строительство «под ключ». Мы подарим Вам дом, о котором Вы всегда мечтали и который прослужит не одному поколению вашей семьи!

Приглашаем Вас на наш сайт, где Вас ожидает более 500 современных архитектурных и планировочных решений.

Если среди просмотренных вариантов Вы так и не нашли подходящий проект дома, наши архитекторы готовы создать индивидуальный проект, предусматривающий все Ваши задумки и пожелания.

Если Вам неудобно приехать к нам на консультацию в офис, наши специалисты сами приедут на Ваш участок в удобное всем время и предметно расскажут о тапах строительства, проектировании и предварительно рассчитают стоимость работ.

Мы готовы ответить на все Ваши вопросы – пишите в комментариях. Позвоните нам для консультации:

8-965-199-61-04

#загородноестроительство #дома из камней #проект коттеджи #дом планировки #дом проекты частных #загородный дом проекты #проектирование #строительство #проектирование #проектдома #проектирование #коттедж #строимдом #строительствоиремонт #ремонтвдоме #ремонт #недвижимость #строительство #загороднаянедвижимость