Добавить в корзинуПозвонить
Найти в Дзене

Самый красивый одноэтажный дом

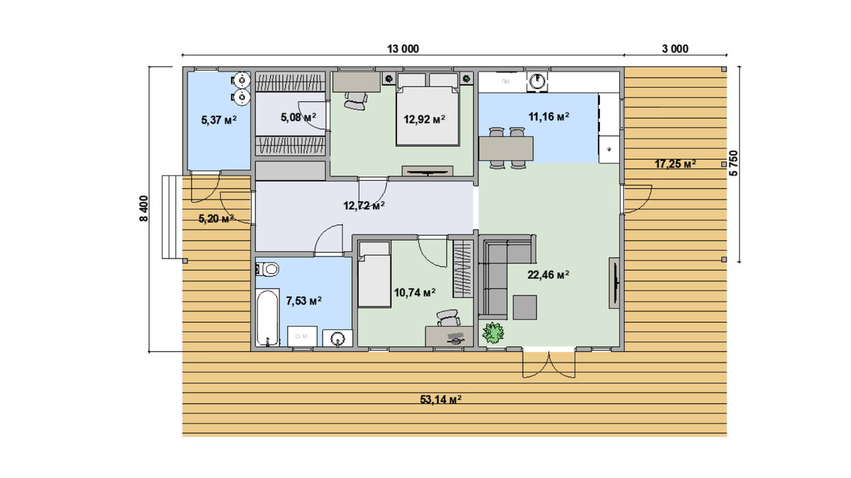
🏡✨ Привет, друзья! 🌿🏡 Представляем вам наш новый дом "Райта" от Norvill! Это место, где красота, уют и практичность встречаются. Давайте расскажем о нем подробнее: 🌳 Размеры дома: 8,4 на 13 метров. Это просто идеальное место для вашей семьи, где каждый уголок заботливо продуман. 🔧 Техническое помещение: (5,37 м²), чтобы всё можно было легко разместить. 🚿 Большая ванная: (7,53 м²) — это место, где можно наслаждаться комфортом и роскошью. 🛌 Мастер спальня с гардеробной: (12,92 м²) — для полноценного отдыха и мечтаний. 🍳 Кухня и гостиная: (33,5 м²) — Пространство с панорамными окнами и круглым окном для творчества и веселья. 🌅 Терраса: (17,25 м²) — где можно отдыхать и наслаждаться природой. 🏠 Кабинет: (10,74 м²) — чтобы сосредотачиваться на работе. ✅ Гарантия качества: 🔍 Мы делимся отчетом о строительстве на сайте, чтобы вы могли убедиться в профессионализме. 💼 Для успешных бизнесменов и IT-гуру: 🏠 Работайте из дома: Есть отдельный кабинет, чтобы сосредотачиваться на работе.

🏡✨ Привет, друзья! 🌿🏡

Представляем вам наш новый дом "Райта" от Norvill! Это место, где красота, уют и практичность встречаются. Давайте расскажем о нем подробнее:

-2

🌳 Размеры дома: 8,4 на 13 метров. Это просто идеальное место для вашей семьи, где каждый уголок заботливо продуман.

🔧 Техническое помещение: (5,37 м²), чтобы всё можно было легко разместить.

🚿 Большая ванная: (7,53 м²) — это место, где можно наслаждаться комфортом и роскошью.

🛌 Мастер спальня с гардеробной: (12,92 м²) — для полноценного отдыха и мечтаний.

🍳 Кухня и гостиная: (33,5 м²) — Пространство с панорамными окнами и круглым окном для творчества и веселья.

🌅 Терраса: (17,25 м²) — где можно отдыхать и наслаждаться природой.

🏠 Кабинет: (10,74 м²) — чтобы сосредотачиваться на работе.

Гарантия качества:

🔍 Мы делимся отчетом о строительстве на сайте, чтобы вы могли убедиться в профессионализме.

💼 Для успешных бизнесменов и IT-гуру:

🏠 Работайте из дома: Есть отдельный кабинет, чтобы сосредотачиваться на работе.

🔒 Безопасность для вашей семьи: Мы заботимся о вашем спокойствии.

🌐 Присоединяйтесь к Norvill и создайте свой уголок счастья! Посетите https://www.norvill.ru/buildraita и узнайте больше!

-3

🌺 Дом — это не просто доски, это ваша семейная история. Давайте вместе создадим историю с Norvill, где ваш дом станет настоящим произведением искусства! 🏡💖

____________________________________________________________________________________

Мы строим Для вас/Дома/Мечту.

📡 www.norvill.ru

📞 Позвонить: +7 (916) 304-75-40

WhatsApp / Telegram: +7 (916) 304-75-40

📧 norvilcompany@yandex.ru

#проектдома #скандинавскиедома #домподключ #одноэтажныйдом #каркасноестроительство #каркасноедомостроение #строительстводома #строительство #каркасныйдом #каркасник