Добавить в корзинуПозвонить
Найти в Дзене
СК Время Жить

К заказу доступен новый проект - BARN-L/78

О проекте:
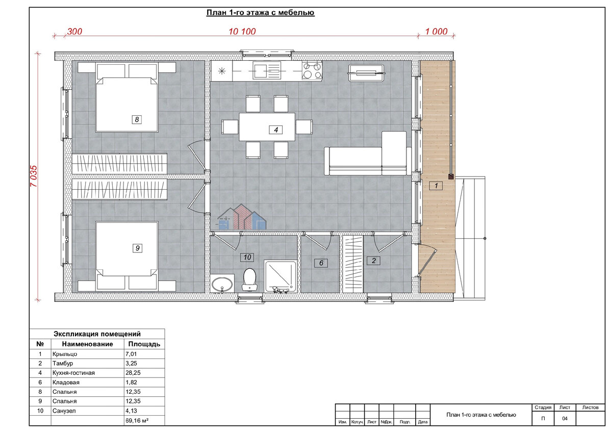
Кухня/Гостиная — 28,25 м2⠀⠀⠀⠀⠀⠀⠀
Спальня 1 - 12,35 м2⠀⠀⠀⠀⠀⠀⠀⠀
Спальня 2 - 12,35 м2⠀⠀⠀⠀⠀⠀⠀
Кладовая - 1,82 м2⠀⠀⠀
Тамбур - 3,25 м2⠀⠀⠀⠀⠀⠀⠀
С/У - 4,13 м2⠀
Крыльцо- 7,01 м2⠀⠀ Площадь застройки 78 м2⠀⠀⠀⠀⠀⠀⠀⠀⠀
Полезная площадь 69,16 м2⠀⠀⠀⠀⠀⠀⠀⠀⠀
Габариты 11,4Х 7 Комплектации, детали, цены:⠀⠀
Телефон/WhatsApp : +7(985)123-41-35
Наш сайт: https://sk-vremyazhit.ru/

О проекте:
Кухня/Гостиная — 28,25 м2⠀⠀⠀⠀⠀⠀⠀
Спальня 1 - 12,35 м2⠀⠀⠀⠀⠀⠀⠀⠀
Спальня 2 - 12,35 м2⠀⠀⠀⠀⠀⠀⠀
Кладовая - 1,82 м2⠀⠀⠀
Тамбур - 3,25 м2⠀⠀⠀⠀⠀⠀⠀
С/У - 4,13 м2⠀
Крыльцо- 7,01 м2⠀⠀

Планировка
Планировка

Площадь застройки 78 м2⠀⠀⠀⠀⠀⠀⠀⠀⠀
Полезная площадь 69,16 м2⠀⠀⠀⠀⠀⠀⠀⠀⠀
Габариты 11,4Х 7

Комплектации, детали, цены:⠀⠀
Телефон/WhatsApp : +7(985)123-41-35
Наш сайт:
https://sk-vremyazhit.ru/