Найти в Дзене
Эдуард Суханов

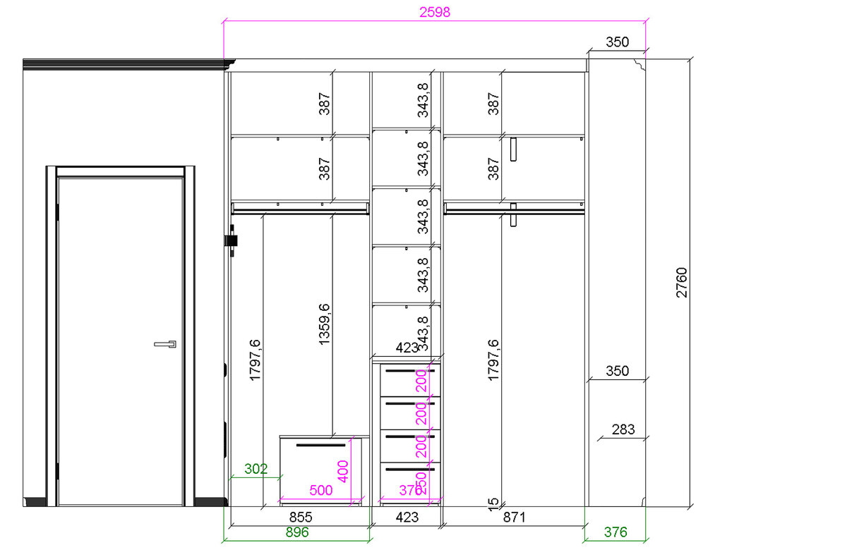
Угловой шкаф и шкаф-купе

Вернулся заказчик один, в том году еще шкаф угловой проектировал ей, но она пропала. Сейчас внесла правки, я ей выслал всё исправленное, но просит ещё кое что поменять. Позже изменю, мелочи вроде как остались. Цвет стен, межкомнатной двери и пола примерно как у потенциального клиента, фотографию мне прислали. И еще один клиент повторно обратился. Во-первых мы ему уже сделали гардеробную, во-вторых, я рисовал ему этот шкаф, но клиент пропадал на год. Обои и полы клиента, я у него дома фотографии делал. Покрывало и цвет кровати тоже как у клиента, сделал очень похоже. Обратите внимание, на рендерах не отражается светильник на тумбочке и светильники в люстре. Полупрозрачные материалы не отражаются в зеркалах. Как это лечится не знаю, лень разбираться. Как в мультике говорилось в старом - и так пойдет!...

Вернулся заказчик один, в том году еще шкаф угловой проектировал ей, но она пропала. Сейчас внесла правки, я ей выслал всё исправленное, но просит ещё кое что поменять. Позже изменю, мелочи вроде как остались.

Цвет стен, межкомнатной двери и пола примерно как у потенциального клиента, фотографию мне прислали.

И еще один клиент повторно обратился. Во-первых мы ему уже сделали гардеробную, во-вторых, я рисовал ему этот шкаф, но клиент пропадал на год. Обои и полы клиента, я у него дома фотографии делал. Покрывало и цвет кровати тоже как у клиента, сделал очень похоже.

Обратите внимание, на рендерах не отражается светильник на тумбочке и светильники в люстре. Полупрозрачные материалы не отражаются в зеркалах. Как это лечится не знаю, лень разбираться. Как в мультике говорилось в старом - и так пойдет!...