Добавить в корзинуПозвонить
Найти в Дзене
ПСК "Градиент"

Гармония пространства: как грамотный дизайн преображает двухэтажный дом

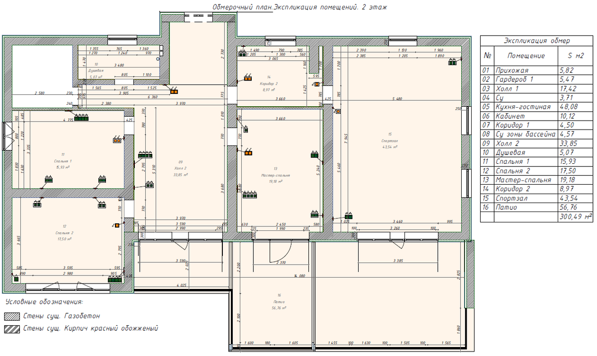
Дизайн-проект двухэтажного дома площадью 300 м², разработанный дизайн-студией Градиент, представляет собой прекрасное решение для тех, кто ценит эстетику и функциональность. Такой проект становится незаменимым инструментом в процессе ремонта, позволяя избежать путаницы и стресса, обеспечивая при этом проработку всех деталей. Первый этаж дома наполнен разнообразием функциональных зон. Вход в дом оформлен элегантной прихожей, где светлые стены создают атмосферу легкости и простора. Графитовые потолки и молдинги служат стильным контрастом, подчеркивая общий дизайн. В этом пространстве акцент сделан на удобство. Стилизованный вход в гардеробную достигается за счет декоративных деревянных панелей, которые добавляют индивидуальности. Кухня-гостиная — центральное пространство первого этажа, разделенное на зоны для отдыха и приготовления пищи. Здесь использованы обои с геометрическим рисунком в спокойных тонах, что делает интерьер уютным и современным. Зона отдыха оформлена мягкой мебелью и э
Оглавление

Дизайн-проект двухэтажного дома площадью 300 м², разработанный дизайн-студией Градиент, представляет собой прекрасное решение для тех, кто ценит эстетику и функциональность. Такой проект становится незаменимым инструментом в процессе ремонта, позволяя избежать путаницы и стресса, обеспечивая при этом проработку всех деталей.

Первый этаж дома наполнен разнообразием функциональных зон. Вход в дом оформлен элегантной прихожей, где светлые стены создают атмосферу легкости и простора. Графитовые потолки и молдинги служат стильным контрастом, подчеркивая общий дизайн. В этом пространстве акцент сделан на удобство. Стилизованный вход в гардеробную достигается за счет декоративных деревянных панелей, которые добавляют индивидуальности.

Прихожая

Кухня-гостиная — центральное пространство первого этажа, разделенное на зоны для отдыха и приготовления пищи. Здесь использованы обои с геометрическим рисунком в спокойных тонах, что делает интерьер уютным и современным. Зона отдыха оформлена мягкой мебелью и элементами декора, создающими атмосферу комфорта и релаксации. Зона для готовки и приема пищи также функционально продумана, что делает процесс готовки максимально приятным.

Кухня-гостиная

Соседствующий с кухней холл продолжает идею контрастов, добавляя в интерьер мягкие светлые оттенки и графитовые акценты. Он становится связующим звеном между функциональными зонами, а также переходом ко второму этажу. Здесь, при оформлении, использованы интересные акцентные решения, такие как стеновые обои в одном стиле с подобранным креслом, создавая зону для отдыха с плавными переходами между стилями. В этом холле преобладают оттенки слоновой кости, что добавляет легкость, а яркие элементы, такие как оранжевая телевизионная тумба и обои с рисунком привносят динамичность в обстановку.

Холл 1 и 2 этаж

Кабинет

-6

На втором этаже расположены спальни, оформленные в спокойных и комфортных оттенках. За счет комбинирования стен с обоями и краской достигается гармония в интерьере. Декоративные элементы, такие как панно и деревянные молдинги, добавляют интерес и индивидуальность каждому пространству.

Мастер-спальня

Санузел на первом этаже выполнен с использованием комбинированной выкладки плитки, которая органично сливается с общей концепцией дома, придавая современный вид. Каждый элемент ванной комнаты тщательно подобран, чтобы создать уютное и стильное пространство.

Санузел; душевая и санузел бассейна

Не менее важными являются зоны патио и спортзала, продуманные в проекте. Они не только функциональны, но и прекрасно интегрируются в общий стиль дома, создавая дополнительные возможности для отдыха и активного времяпрепровождения.

Патио и спортзал

Дизайн-проект от студии Градиент становится гармоничным сочетанием эстетики и практичности, создавая идеальные условия для комфортной жизни. Каждый элемент продуман до мелочей, что позволяет жильцам наслаждаться уютом и стилем своего нового дома.