Найти в Дзене
ОТВЕТЫ НА ОГЭ 2025

ОГЭ Математика!Ответы/варианты на 2025 год. Все классы и регионы

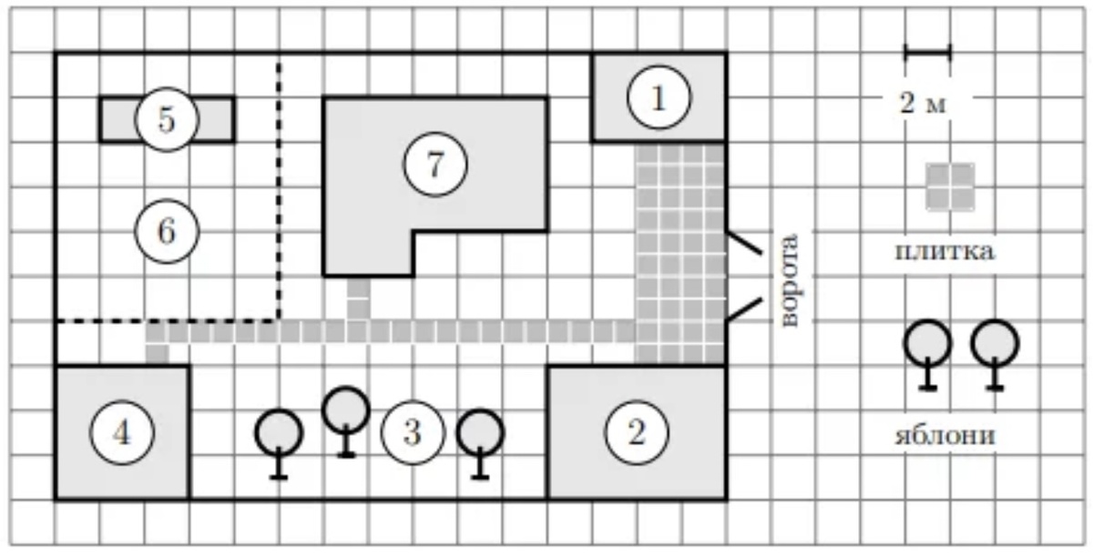
Прочитайте внимательно текст и выполните задания. Все ответы публикуем здесь👉 На плане изображён дачный участок по адресу: п. Сосновка, ул. Зелёная, д. 19 (сторона каждой клетки на плане равна 2 м). Участок имеет прямоугольную форму. Выезд и въезд осуществляются через единственные ворота. При входе на участок слева от ворот находится гараж. Справа от ворот находится сарай площадью 24 кв. м, а чуть подальше — жилой дом. Напротив жилого дома расположены яблоневые посадки. Также на участке есть баня, к которой ведёт дорожка, выложенная плиткой, и огород с теплицей внутри (огород отмечен на плане цифрой 6). Все дорожки внутри участка имеют ширину 1 м и вымощены тротуарной плиткой размером 1 м × 1 м. Между гаражом и сараем находится площадка, вымощенная такой же плиткой. К участку подведено электричество. Имеется магистральное газоснабжение. ЗАДАНИЕ 1. Для объектов, указанных в таблице, определите, какими цифрами они обозначены на плане. Заполните таблицу, в бланк ответов перенесите п

Прочитайте внимательно текст и выполните задания.

Все ответы публикуем здесь👉

PENGUIN SCHOOL ОТВЕТЫ

На плане изображён дачный участок по адресу: п. Сосновка, ул. Зелёная, д. 19 (сторона каждой клетки на плане равна 2 м). Участок имеет прямоугольную форму. Выезд и въезд осуществляются через единственные ворота. При входе на участок слева от ворот находится гараж. Справа от ворот находится сарай площадью 24 кв. м, а чуть подальше — жилой дом. Напротив жилого дома расположены яблоневые посадки. Также на участке есть баня, к которой ведёт дорожка, выложенная плиткой, и огород с теплицей внутри (огород отмечен на плане цифрой 6). Все дорожки внутри участка имеют ширину 1 м и вымощены тротуарной плиткой размером 1 м × 1 м. Между гаражом и сараем находится площадка, вымощенная такой же плиткой. К участку подведено электричество. Имеется магистральное газоснабжение.

ЗАДАНИЕ 1. Для объектов, указанных в таблице, определите, какими цифрами они обозначены на плане. Заполните таблицу, в бланк ответов перенесите последовательность четырёх цифр без пробелов, запятых и других символов.

Объекты гараж сарай жилой дом теплица

Цифры

Ответ

 

ЗАДАНИЕ 2. Тротуарная плитка продаётся в упаковках по 7 штук. Сколько упаковок плитки понадобилось, чтобы выложить площадку между сараем и гаражом?

Ответ

 

ЗАДАНИЕ 3. Найдите периметр фундамента жилого дома. Ответ дайте в метрах

Ответ

 

ЗАДАНИЕ 4. Сколько процентов от площади всего участка занимают строения (жилой дом, гараж, сарай, баня)? Ответ округлите до целого

Ответ

 

ЗАДАНИЕ 5. Хозяин участка решил покрасить весь забор вокруг участка (только с внешней стороны) в зелёный цвет. Площадь забора равна 232 кв. м, а купить краску можно в одном из двух ближайших магазинов. Цена и характеристика краски и стоимость доставки заказа даны в таблице.

-2

Номер магазина Расход краски Масса краски в одной банке Стоимость одной банки краски

Стоимость доставки заказа

1 0,6 кг/кв. м 5 кг 2 400 руб. 400 руб.

2 0,4 кг/кв. м 4 кг 2 300 руб. 600 руб.

Ответ

 

ЗАДАНИЕ 6. Найдите значение выражения 

Ответ

 

ЗАДАНИЕ 7. Одно из чисел отмечено на прямой.

Какое это число?

Ответ

 

ЗАДАНИЕ 8. Найдите значение выражения

Ответ

 

ЗАДАНИЕ 9. Найдите корень уравнения

Ответ

 

ЗАДАНИЕ 10. Родительский комитет закупил 20 пазлов для подарков детям в связи с окончанием учебного года, из них 14 с машинами и 6 с видами городов. Подарки распределяются случайным образом между 20 детьми, среди которых есть Вася. Найдите вероятность того, что Васе достанется пазл с машиной.

Ответ

 

ЗАДАНИЕ 11. Установите соответствие между функциями и их графиками.

Ответ

 

ЗАДАНИЕ 12. В фирме «Родник» стоимость (в рублях) колодца из железобетонных колец рассчитывается по формуле 𝐶 = 6000 + 4100𝑛, где 𝑛 — число колец, установленных в колодце. Пользуясь этой формулой, рассчитайте стоимость колодца из 10 колец.

Ответ дайте в рублях.

Ответ

 

ЗАДАНИЕ 13. Укажите решение системы неравенств 

Ответ

 

ЗАДАНИЕ 14. В амфитеатре 11 рядов. В первом ряду 16 мест, а в каждом следующем на 3 места больше, чем в предыдущем. Сколько всего мест в амфитеатре?

Ответ

 

ЗАДАНИЕ 15. В треугольнике 𝐴𝐵𝐶 известно, что 𝐴𝐵 = 𝐵𝐶, ∠𝐴𝐵𝐶 = 106∘. Найдите угол 𝐵𝐶𝐴.

Ответ дайте в градусах

Ответ

 

ЗАДАНИЕ 16. В окружности с центром в точке 𝑂 отрезки 𝐴𝐶 и 𝐵𝐷 — диаметры. Угол 𝐴𝑂𝐷 равен 148∘. Найдите угол 𝐴𝐶𝐵.

Ответ дайте в градусах.

Ответ

 

ЗАДАНИЕ 17. Найдите площадь параллелограмма, изображённого на рисунке.

Ответ

ЗАДАНИЕ 18. На клетчатой бумаге с размером клетки 1×1 изображён треугольник 𝐴𝐵𝐶. Найдите длину его средней линии, параллельной стороне 𝐴𝐶.

Ответ

 

ЗАДАНИЕ 19. Какое из следующих утверждений верно?