Добавить в корзинуПозвонить
Найти в Дзене
DIVAN.RU

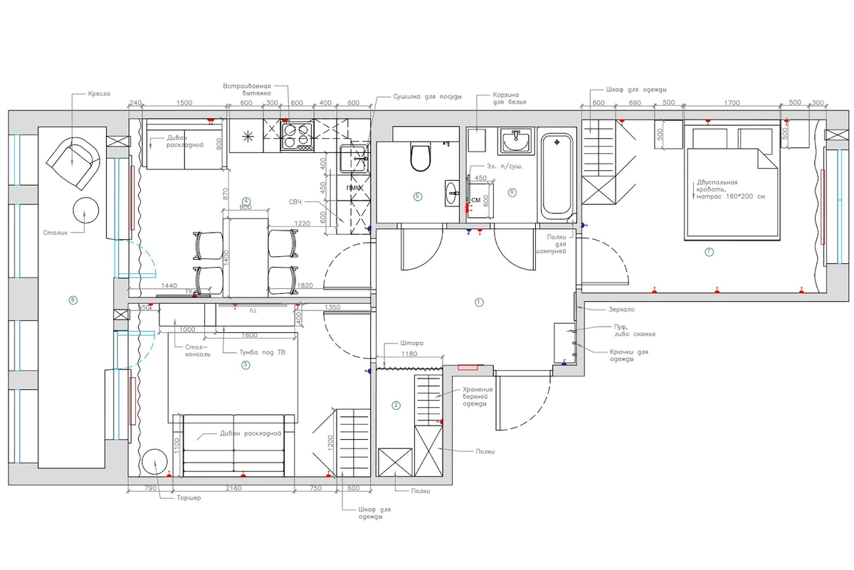
57 кв.м: редизайн типовой трешки с отделкой от застройщика

Добились максимального комфорта без вмешательства в отделку. Смотрим, что получилось. Об объекте: евротрешка 57 кв.м + 7,5 кв.м лоджия, г. Санкт-Петербург Авторы проекта: дизайнер Елена Ворошилова, автор фото Кристина Плеер Бюджет: 1 млн рублей Такие квартиры называют евротрешками: кухня-гостиная, две отдельные комнаты. В одной организовали спальню, другую сделали гостевой с возможностью трансформации в детскую. Санузел по проекту застройщика раздельный. Также в квартире есть широкая лоджия. Планировочное решение На 13,6 кв.м. удалось разместить угловой гарнитур со стандартными модулями, диванную зону и столовую группу. Верхние шкафы кухни заказали в цвет стен, а фасады нижнего яруса и колонны со встроенной техникой — приглушенного мятного оттенка. Цвета добавили с помощью мягких стульев в яркой терракотовой обивке. При выборе мягкой мебели ориентировались прежде всего на соотношение цена/качество. Подходящие модели нашли на divan.ru — у бренда собственное производство, демократичные ц
Оглавление

Добились максимального комфорта без вмешательства в отделку. Смотрим, что получилось.

Об объекте: евротрешка 57 кв.м + 7,5 кв.м лоджия, г. Санкт-Петербург

Авторы проекта: дизайнер Елена Ворошилова, автор фото Кристина Плеер

Бюджет: 1 млн рублей

Такие квартиры называют евротрешками: кухня-гостиная, две отдельные комнаты. В одной организовали спальню, другую сделали гостевой с возможностью трансформации в детскую. Санузел по проекту застройщика раздельный. Также в квартире есть широкая лоджия.

-2

Планировочное решение

Кухня-гостиная

На 13,6 кв.м. удалось разместить угловой гарнитур со стандартными модулями, диванную зону и столовую группу.

Верхние шкафы кухни заказали в цвет стен, а фасады нижнего яруса и колонны со встроенной техникой — приглушенного мятного оттенка. Цвета добавили с помощью мягких стульев в яркой терракотовой обивке.

При выборе мягкой мебели ориентировались прежде всего на соотношение цена/качество. Подходящие модели нашли на divan.ru — у бренда собственное производство, демократичные цены и широкий ассортимент. Для кухни выбрали раскладной диван Маре Мини.
Проект дизайнера Елены Ворошиловой; автор фото Кристина Плеер
Проект дизайнера Елены Ворошиловой; автор фото Кристина Плеер

Товары бренда divan.ru

Спальня

В этой комнате стоит кровать в акцентной зеленой обивке, пара прикроватных тумб, вместительный шкаф.

Кстати: кровать вместе с матрасом покупали на divan.ru. Неброский природный оттенок «связывает» светлые стены и темное дерево на полу.

Проект дизайнера Елены Ворошиловой; автор фото Кристина Плеер
Проект дизайнера Елены Ворошиловой; автор фото Кристина Плеер

Товары бренда divan.ru

Гостевая комната

Эта комната может служить и гостиной, и кабинетом, и детской, поэтому интерьер здесь сделали универсальным. Центральное место здесь занимает раскладной диван Данста от divan.ru, который при необходимости трансформируется в спальное место.

Проект дизайнера Елены Ворошиловой; автор фото Кристина Плеер
Проект дизайнера Елены Ворошиловой; автор фото Кристина Плеер

Товары бренда divan.ru

Из этой комнаты есть выход на просторную лоджию, на которой обустроили уютную зону отдыха.

Прихожая

В прихожей в запланированной застройщиком нише обустроили гардеробную и закрыли ее текстильной шторкой. Также здесь есть открытые вешалки для повседневной одежды, полка для обуви, зеркало, мягкий пуф.

Санузел

Отделка и наполнение ванной комнаты полностью остались от застройщика. Только ванную дополнили белым пеналом для хранения и установили стиральную машину.

🚀 Космическое путешествие за скидками в разгаре! Откройте Вселенную уюта: покупайте мебель и аксессуары для дома выгодно на divan.ru >>

-12

==========

Оцените интерьер в комментариях, а если статья понравилась — не забудьте поставить лайк👍

🖤divan.ru — не только блог про интерьеры, но и производитель доступной дизайнерской мебели. Ищите новые идеи и переходите на сайт, чтобы воплотить их в жизнь.

*Цены актуальны на момент публикации статьи