Добавить в корзинуПозвонить
Найти в Дзене
Aqua Fraternitas

Смежники. ВК и КР

Конструктора, металлисты, гидротехники. Похожи чем-то на айтишников из-за специфики работ и погружения в расчеты. Раздел документации средней стоимости, конструктивные решения. Но все равно в разы дороже, чем мы. Конструкторы это самостоятельные группы в отделе АСО, который считает скелет здания, чтобы он выдержал все внутренности и красивый фасад, не сложившись под собственным весом на головы заказчиков. Кроме разделения на промышленное и гражданское направление делятся еще внутри группы на металлоконструкции, конструкции из сборного железобетона(плиты перекрытия, колонны, фундаменты и т.д.). И даже внутри одной группы может быть много спецов различной направленности, кто-то отвечает за фундамент, кто-то за конструктив, молодые специалисты могут заниматься гидроизоляцией и т.д.. Либо это могут быть целые рабочие группы по тематикам конструкций. По принципу работы исполнители могут делиться на тех, кто делает только расчеты, либо тех, кто компонует чертежи с узлами. Бывают и универсал
Оглавление

Конструктора, металлисты, гидротехники. Похожи чем-то на айтишников из-за специфики работ и погружения в расчеты.

Раздел документации средней стоимости, конструктивные решения. Но все равно в разы дороже, чем мы.

Конструкторы это самостоятельные группы в отделе АСО, который считает скелет здания, чтобы он выдержал все внутренности и красивый фасад, не сложившись под собственным весом на головы заказчиков. Кроме разделения на промышленное и гражданское направление делятся еще внутри группы на металлоконструкции, конструкции из сборного железобетона(плиты перекрытия, колонны, фундаменты и т.д.). И даже внутри одной группы может быть много спецов различной направленности, кто-то отвечает за фундамент, кто-то за конструктив, молодые специалисты могут заниматься гидроизоляцией и т.д.. Либо это могут быть целые рабочие группы по тематикам конструкций. По принципу работы исполнители могут делиться на тех, кто делает только расчеты, либо тех, кто компонует чертежи с узлами. Бывают и универсальные специалисты, делающие и расчеты, и графику. Так же бывает самостоятельный отдел, посвященный гидротехническим решениям. То есть это конструкции, которые связаны с водными объектами и иногда нам нужна их помощь (приходится отвлекать гидротехников с причалов, плотин и других объектов на наши небольшие оголовки, водозаборы и водовыпуски).

-3

Как мы взаимодействуем с КР?

Так как мы работаем на архитектуре и скелет иногда бывает не готов, то потом появляются всякие нежданчики. Конструктора редко согласовывают решения в документации, когда надо дырявить их колонны/балки перекрытий. Так же не любят, когда рядом с колонами мы задаем отверстие для шахты коммуникаций. Связано это с работой конструкций, поэтому в ответственных местах они потом дают красные линии и говорят их не пересекать (до первого монтажника с буром на стройке, конечно же). В итоге мы корректируем положение отверстий (иногда это затрагивает АР, но это уже их внутренняя АСОшная вошкотня). Наверно мы не так бесим конструкторов, как ОВ с их гигантскими воздуховодами.

Но наши отверстия это мелочи жизни. Иногда жизнь складывается так, что нам не обойтись без КР в наружных сетях. При стечении обстоятельств нам приходится ходить в каналах, на эстакадах. Ну и конечно же любимые фундаменты под различные сооружения (подземные/надземные резервуары, КНС и т.д.). Нам иногда не обойтись без нестандартных камер, конструктив для которых должен разработать именно специальный человек.

Самое поразительное, что я видел в КР, наверно, это унификация задания, в которой исполнитель НВК должен потрать много времени и заполнить объемные табличные значения для эстакады. Зачем? Чтобы КР скопировали данные в эксель и сразу же получили все необходимое. То есть пока НВК пыхтят над продольными профилями неделю с учетом заполнения формы выдачи задания (чаще всего вручную рисуя и считая), КР по этим данным за пару кликов мыши и пары типовых узлов могут накидать свой том. Ну мед же.

Еще спорный вопрос, а кто делает дренаж прифундаментный? Кто первый прогнулся. Но вообще мнение склоняется в сторону НВК, но только это должен быть человек с определенными компетенциями, а не то что в исполнителя кинули задание, как в помойку. Дренаж зданий я никогда не видел в составе ИОСов в ПД на НВК.

Так как мы участвуем в проектировании внутренних и наружных сетей, взаимодействие стоит разделить по тому же принципу.

Внутренние сети

По внутренним сетям чаще всего мы взаимодействуем по пресечению инженерными сетями строительных конструкций. Чтобы знать, где можно ходить, а где нельзя, нам нужны исходники от КР,а именно:

  • расположение конструкций и их габариты в здании.

Для зданий мы выдаем задания:

  • на отверстия в перекрытии;
  • на отверстия в стенах;
  • на фундаменты под оборудования (оборудование в помещениях по типу насосов и резервуаров, градирни на кровлях и т.д.);
  • на опоры под трубопроводы;
  • на приямки в подвалах;
  • на ввод и выпуск инженерных систем. Если пересекаем стенку подвала, то обозначаем наше присутствие (заложение сальников зависит от устоявшихся порядков в организации). Но вот под подошву ростверка нас уже не пустят, всегда просят идти трубами над, даже могут гильзу заложить и взять ее в бетон.

Наружные сети

Чаще всего от КР мы ничего не получаем, работа идет через отдел ГП. Однако бывают случаи, когда есть фундаменты для кранов на время строительно-монтажных работ, и вот по стечению обстоятельства эти фундаменты садятся ровно на наши вводы/выпуски. КР в этом случае разводит руками,ну а нам приходится переделывать ВК+НВК. На этом предварительное взаимодействие заканчивается. В основном мы передаем им такие задания как:

  • задание на каналы (с учетом шага опор+нагрузка);
  • задание на эстакаду (с учетом шага опор и смежников+нагрузка);
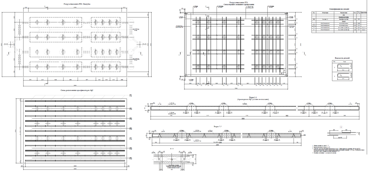
Многоуровневая эстакада. Фрагмент графической части для расчетной схемы
Многоуровневая эстакада. Фрагмент графической части для расчетной схемы
  • задание на фундаменты (нагрузка, расположение на ГП, отметка верха плиты фундамента);
  • задание на разгрузочную плиту для защиты сооружений от нагрузки автотранспорта (например ЛОС);
  • задание на нестандартные конструкции камер;
  • задание на колодцы (при работе с крайнем севером колодцы делают из стальных труб большого диаметра (не менее 1500 мм), которые ставятся на стальные сваи, это чистое КР. В обычных условиях мы сами набираем колодцы из типовых деталей либо берем полимерные, облегчая труд КР, (пусть в наши отверстия смотрят).
Устройство емкости в вечномерзлых грунтах
Устройство емкости в вечномерзлых грунтах

Особые задания при наличии ГР:

  • задание на конструкцию водоприемного оголовка;
  • задание на прокладку водоводов до приемной камеры;
  • задание на приемную камеру водозабора и ее фундамент;
  • задание на водовыпуск (прокладка трубы в толще водного объекта +конструктив рассеивающих насадок);
  • задание на оголовок водовыпуска при надземном расположении водовыпуска.

В каких отношениях мы состоим с этим отделом?

Отношение могут регламентироваться должностными инструкциями. Немаловажны договоренности на уровне начальников отделов и руководителей групп, это позволяет установить форму взаимодействия между исполнителями и оперативность проводимых работ.

КР нам друзья:

  • консультируют и подсказывают с заданиями;
  • уточняют необходимые данные в случае вопросов + не отказываются от участия совместных работ со смежниками (например посадка фундаментов на ГП и согласование это с НВК);
  • помогают отбиться от странных просьб руководства (нет геологии, нет эстакады под трубы, значит никто ничего не будет делать без исходных данных);
  • работают в текле/ревите, тем самым процесс становится очень наглядным и понятным.

КР нам не друзья:

  • молча отрабатывают задание, как понимают. В итоге потом образуется разночтение в томах;
  • отказываются принимать новые задания из-за изменений в ходе проектирования, хотя сами нас подгоняли дать что-нибудь в работу. Мы все сделали и выпустили, разбирайтесь сами и подгоняйте сети под нас;
  • саботируют процесс проектирования (спихивают работу на типовые проекты, типо возьмите и вставьте в том свой, мы тут лишние)
  • под какими-то предлогами склоняют к выполнению и учету работ в своем томе (например по части ГР все что подводное закладывается в их том. ВОРы на подводные работы как НВК будет считать? а обсыпка трубы для защиты от льда или прокладка в каналах? Глубоководный выпуск - это не шутки).

А у вас какой опыт работы с конструкторами?

-14
Уважаемый читатель, буду очень рад, если вы поставите статье «нравится» и поделитесь в социальных сетях! Подписывайтесь на канал!

Также вы можете присоединиться к сообществу в телеграмм и другим площадкам, где выкладываются интересные материалы: