Добавить в корзинуПозвонить
Найти в Дзене
ПСК "Градиент"

Создайте свой оазис: двухэтажный дом с камином и парной по цене однушки.

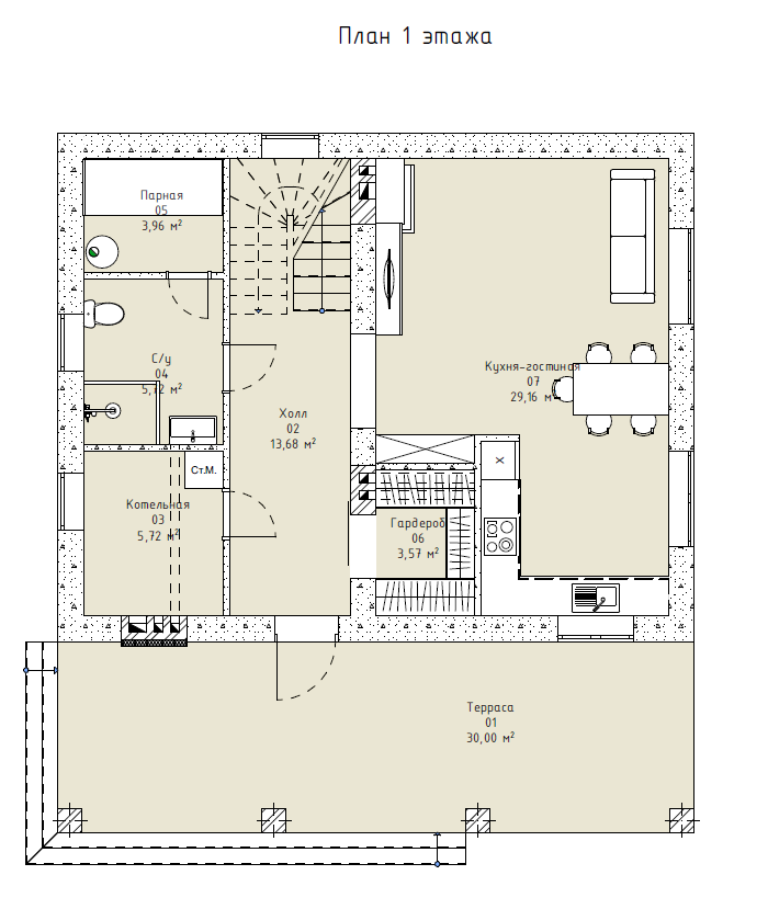
В мире загородной недвижимости важным аспектом является правильная организация пространства. Представляем вам проект двухэтажного дома 154 м2 от ПСК Градиент, в котором прекрасно оптимизировано пространство и добавлены приятные мелочи для полного погружения в загородную жизнь. Первое, что бросается в глаза – это просторная крытая терраса площадью 30 квадратных метров, которая служит отличным местом для отдыха на свежем воздухе. При входе вы попадаете в светлый просторный холл, где с одной стороны расположена гардеробная, а с другой – котельная-прачечная. Такое решение не только экономит место, но и создает комфортные условия для жизни. Центром первого этажа является кухня-гостиная площадью 30 квадратных метров. Это идеальное место для совместных семейных ужинов и встреч с друзьями. Одной из приятных особенностей кухни-гостиной становится уютный камин, который не только добавляет тепла, но и создает атмосферу уюта и романтики. Здесь можно наслаждаться теплом огня в вечерние часы, собира

В мире загородной недвижимости важным аспектом является правильная организация пространства. Представляем вам проект двухэтажного дома 154 м2 от ПСК Градиент, в котором прекрасно оптимизировано пространство и добавлены приятные мелочи для полного погружения в загородную жизнь.

Первое, что бросается в глаза – это просторная крытая терраса площадью 30 квадратных метров, которая служит отличным местом для отдыха на свежем воздухе. При входе вы попадаете в светлый просторный холл, где с одной стороны расположена гардеробная, а с другой – котельная-прачечная. Такое решение не только экономит место, но и создает комфортные условия для жизни.

-2

Центром первого этажа является кухня-гостиная площадью 30 квадратных метров. Это идеальное место для совместных семейных ужинов и встреч с друзьями. Одной из приятных особенностей кухни-гостиной становится уютный камин, который не только добавляет тепла, но и создает атмосферу уюта и романтики. Здесь можно наслаждаться теплом огня в вечерние часы, собираясь с семьей или друзьями на приятные беседы. Кроме того, на первом этаже предусмотрена парная, что позволяет жильцам насладиться расслабляющими процедурами и оздоровительными эффектами парной.

-3

Для удобства жильцов, санузлы расположены как на первом, так и на втором этаже. Второй этаж отведён под спальни – здесь разместилось три уютные комнаты, каждая из которых станет вашим личным уголком для отдыха.

Отделка дома выполнена декоративной штукатурной в молочном оттенке с элементами клинкерной плитки. Водосточная система, подшивы кровли и оконные конструкции шоколадного цвета контрастируют с общим оформлением, придавая дому особый стиль.

Этот проект не только оправдывает ожидания по функциональности, но и открывает широкие возможности для индивидуальной настройки интерьера под личные предпочтения будущих жильцов. Здесь можно создать уютное пространство, где будет удобно и комфортно жить, работать и отдыхать. Гибкость в планировке и возможность разнообразных дизайнерских решений позволяют адаптировать этот проект под ваши пожелания и нужды.


Стоимость строительства данного проекта от 5.9 млн. руб.

И да, в доказательство что это реально цена однокомнатной квартиры прикрепляем скрин с авито

-5


Для подробностей по проекту и рекомендации по строительству
обращайтесь к нам!

-6