Добавить в корзинуПозвонить
Найти в Дзене
МНПП Сатурн

Управление канализационной насосной станцией (КНС) на базе контроллера SATURN-PLC и FBD

Статья предназначена для инженеров, начинающих работу с контроллерами SATURN-PLC и языком программирования FBD (Functional Block Diagram). КНС (канализационная насосная станция) служит для перекачки сточных вод. Она представляет собой подземное сооружение, состоящее из нескольких элементов: * подземного резервуара для сбора сточных вод; * входной трубы, через которую стоки попадают внутрь; * сетчатого фильтра, очищающего стоки; * выходной трубы, обеспечивающей отвод очищенных стоков; * нескольких погружных насосов, разработанных специально для перекачки сточных вод; * датчиков, контролирующих уровень воды в резервуаре; * шкафа управления насосами, который отвечает за их работу. Существует множество типов канализационных насосных станций (КНС), от крупных до миниатюрных. В этой статье мы сосредоточимся на описании небольшой КНС, оснащенной двумя насосами мощностью 5,5 кВт. Эту станцию управления разработала и изготовила компания «ТЕРМОПИЛОТ». Она специализируется на системах автоматиза

Статья предназначена для инженеров, начинающих работу с контроллерами SATURN-PLC и языком программирования FBD (Functional Block Diagram).

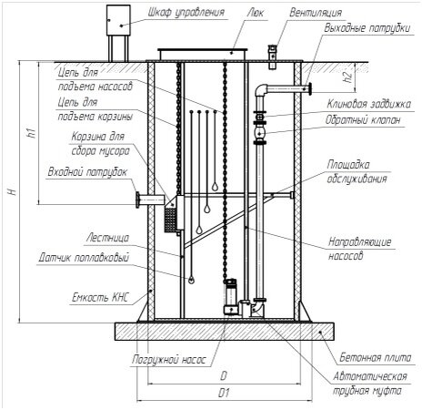
Устройство КНС
Устройство КНС

КНС (канализационная насосная станция) служит для перекачки сточных вод. Она представляет собой подземное сооружение, состоящее из нескольких элементов:

* подземного резервуара для сбора сточных вод;

* входной трубы, через которую стоки попадают внутрь;

* сетчатого фильтра, очищающего стоки;

* выходной трубы, обеспечивающей отвод очищенных стоков;

* нескольких погружных насосов, разработанных специально для перекачки сточных вод;

* датчиков, контролирующих уровень воды в резервуаре;

* шкафа управления насосами, который отвечает за их работу.

Чертеж наиболее распространенной КНС
Чертеж наиболее распространенной КНС

Существует множество типов канализационных насосных станций (КНС), от крупных до миниатюрных. В этой статье мы сосредоточимся на описании небольшой КНС, оснащенной двумя насосами мощностью 5,5 кВт.

Эту станцию управления разработала и изготовила компания «ТЕРМОПИЛОТ». Она специализируется на системах автоматизации для городского и частного коммунального хозяйства.

Термопилот
Шкаф управления КНС на 3 насоса с ЧПР, производства "ТЕРМОПИЛОТ"
Шкаф управления КНС на 3 насоса с ЧПР, производства "ТЕРМОПИЛОТ"

В данной станции уровень воды контролируется с помощью поплавковых датчиков, а для диспетчеризации системы и обеспечения резервного функционала на случай выхода из строя поплавковой системы предусмотрен гидростатический датчик с выходом 4-20 мА.

КНС на два насоса – именно о ней я пишу эту статью.
КНС на два насоса – именно о ней я пишу эту статью.

В состав шкафа управления входят:

1. Частотно-регулируемый привод (ЧРП) STV630 мощностью 5,5 кВт для двух погружных насосов. Этот привод служит устройством плавного пуска, что позволяет избежать бросков пускового тока и значительно снижает износ двигателей и насосов.

Фрагмент схемы управления насосами КНС
Фрагмент схемы управления насосами КНС

2. В резервуаре КНС установлено четыре поплавковых выключателя, которые располагаются на разных уровнях. Они предназначены для контроля уровня сточных вод в резервуаре и управления насосами.

Установка поплавковых выключателей в резервуаре КНС
Установка поплавковых выключателей в резервуаре КНС

Процесс работы заключается в следующем: сточные воды поступают в резервуар КНС и постепенно наполняют его, поднимая уровень воды. Когда уровень воды достигает отметки (2), необходимо включить насос для откачки. После запуска насоса уровень воды начнет снижаться и достигнет отметки (1). На этом этапе следует отключить насос, так как нельзя оставлять его включенным без воды, которая служит для охлаждения и смазки. После того как насосы будут выключены, уровень воды снова начнёт подниматься из-за поступления сточных вод. Когда вода достигнет отметки (2), нужно будет снова включить насос. Чтобы насосы работали равномерно, необходимо обеспечить их периодическое чередование — насос H1 и насос H2.

Вот как работают насосы на реальном объекте в зависимости от уровня воды.

Фрагмент окна системы диспетчеризации LanMon для КНС
Фрагмент окна системы диспетчеризации LanMon для КНС

На графике видно, что уровень воды в канализационной насосной станции (КНС) периодически достигает отметок (1) и (2). График напоминает зубья пилы, а насосы работают попеременно в каждом цикле откачки.

Это и есть работа в штатном режиме. Однако возможны и внештатные ситуации. Например, если поток сточных вод увеличится настолько, что один насос не сможет справиться с откачкой, уровень воды будет расти.

Когда уровень достигнет отметки (3), необходимо будет подключить дополнительный насос (оба — Н1 и Н2). Отключать оба насоса следует при снижении уровня до отметки (1).

Момент включения насосов Н1 и Н2 при достижении уровня (3)
Момент включения насосов Н1 и Н2 при достижении уровня (3)

Однако существует риск того, что оба насоса не смогут справиться с поступающим потоком. В этом случае, когда уровень жидкости достигнет отметки (4), необходимо активировать аварийную сигнализацию и передать соответствующий сигнал диспетчеру. Это позволит оперативно вызвать аварийную бригаду для устранения проблемы.

Аварийная ситуация - уровень воды достиг аварийной отметки (4)
Аварийная ситуация - уровень воды достиг аварийной отметки (4)

Возникла аварийная ситуация: уровень воды достиг аварийной отметки (4).

3. В моём случае предусмотрен дополнительный датчик уровня МПУ-01. Он позволяет контролировать процесс наполнения и обеспечивать независимый мониторинг работы КНС. В случае неисправности поплавковых датчиков он также будет работать как резервная система.

Подключение Поплавковых выключателей и Датчика уровня к котролеру Saturn PLC
Подключение Поплавковых выключателей и Датчика уровня к котролеру Saturn PLC

Для выполнения этого алгоритма мы будем использовать контроллер Saturn-PLC, который работает в режиме свободно программируемого контроллера, используя язык функциональных блок-диаграмм FBD.

Для этого нам потребуется следующие программное обеспечение:

1. FBD-2 это бесплатное ПО можно скачать здесь.

https://www.mnppsaturn.ru/fbd2/fbd2setup.exe

Вот ссылка на страницу сайта, где можно найти описание программы и видеоуроки по её освоению.

FBD

Видео уроки загружены на сайт ЮТУБА

https://www.youtube.com/@mnppsaturn

если нет VPN то есть полная копия на RUTUBE

https://rutube.ru/channel/41541436/

2. Также я планирую использовать программу PLC-STUDIO. Она удобна в использовании и, что особенно важно, позволяет проводить отладку в реальном времени через сеть Ethernet.

SAT-PLC-STUDIO это бесплатное ПО - можно скачать здесь.

https://www.mnppsaturn.ru/ftp/public/soft/satplcstudio/satplcstudiosetup.exe

Видео урок по SatPlcStudio

Программа SatPlcStudio

Обе программы имеют сервер обновления, поэтому после установки вы всегда можете проверить наличие обновлений и при необходимости обновить программу до самой последней версии.

Проверка наличия оюновлений. Требует наличия интернета на компьютере.
Проверка наличия оюновлений. Требует наличия интернета на компьютере.

3. Чтобы загрузить программное обеспечение FBD в контроллер Saturn-PLC, его необходимо подключить к интернету. Это можно сделать, например, через офисный или домашний роутер с настройками сети «Авто».

Затем на экране контроллера нужно выбрать пункт «Смена ПО». После этого он подключится к серверу mnppsaturn.ru и скачает список доступного программного обеспечения. Вам нужно найти и выбрать строку FBD, а затем запустить процесс загрузки нового ПО.

Время загрузки может варьироваться в зависимости от скорости вашего интернета, но обычно занимает всего пару минут. Если у вас возникнут вопросы, вы можете обратиться к видеоуроку, который подробно описывает процесс для CSript. Для FBD всё происходит аналогичным образом. https://rutube.ru/video/25f4922262d172e2a06d2b3dd5e1a71e/

После завершения всех подготовительных этапов мы можем запустить программу SAT PLC STUDIO и создать новый проект.

Для этого перейдите в меню «Файл», выберите «Проект» и нажмите «Новый».

Я дал новой карте название «КНС6» и загрузил подложку из своего проекта. Теперь у меня всегда будет под рукой лист со схемой, на которой отображены все соединения с контроллером.

Добавил PLC и получилось вот так

Саздали проект для работы с КНС
Саздали проект для работы с КНС

Двойной щелчок по изображению контроллера FBD откроет редактор FBD-2.

-13

Первым делом добавим описание входов и выходов в соответствии со схемой шкафа управления КНС.

Начнем со ВХОДЫ:

1. Дискретный вход DI1- «Авто» — на этот вход поступает сигнал (замыкание), когда на щите управления переключатель устанавливается в положение «Авто». В этом случае насосы начинают работать в соответствии с описанной выше логикой.

2. Дискретный вход DI2 - «Ручной» — на этот вход поступает сигнал (замыкание), когда на щите управления переключатель устанавливается в положение «Ручной». В этом режиме автоматическое управление насосами отключится, и нажатием на кнопки КН1 КН2 можно будет пускать насосы в ручном режиме.

3. Дискретный вход DI3 - «Нижний РУ (откл)» — этот вход замыкается, когда срабатывает поплавок П1, что означает достижение нижнего уровня воды, при котором необходимо остановить работу всех насосов.

4. Дискретный вход DI4 - «Средний РУ (Н вкл.)», замыкается при срабатывании поплавка П2, что сигнализирует о достижении среднего уровня воды. В этот момент требуется включить насос H1 или H2 в зависимости от их очередности на включение.

5. Дискретный вход DI5 - «Верхний РУ (Н1+Н2 вкл.)», замыкается, когда поплавок П3 поднимается до верхнего уровня воды, сигнализируя о достижении верхней рабочей отметки. В этот момент необходимо запустить насосы H1 и H2 для обеспечения дополнительной помощи одному из насосов.

6. Дискретный вход DI6 - «Верхний АУ (Тревога)», замыкается, когда поплавок П4 поднимается до верхнего уровня воды, что сигнализирует о достижении максимальной отметки. В этот момент необходимо активировать тревогу, чтобы предупредить сотрудников о возможной нештатной ситуации.

16. Аналоговый вход AI2 – «Уровень КНС (см)». К этому входу подключается аналоговый датчик давления, работающий в диапазоне 4–20 мА. Этот датчик измеряет уровень воды в канализационной насосной станции (КНС). В настройках необходимо указать единицы измерения – сантиметры. 10 метров это 1000 сантиметров.

Настрока датчика уровня 4-20 мА МПУ-01
Настрока датчика уровня 4-20 мА МПУ-01

Приступаем к созданию схемы.

Добавляем семь элементов, которые будут служить источниками сигнала. Для этого дважды щелкаем мышью по элементу схемы, и выбираем "Входной контакт" и в появившемся списке назначаем каждому элементу входы DI1 — DI6 и АI2. У этих элементов уже будет информация, соответствующая заполнению таблицы входов которую мы сделали выше

Входные контакты в FBD редакторе.
Входные контакты в FBD редакторе.

Аналогично создаем выходы

Выходы управления насосами
Выходы управления насосами

ВЫХОДЫ:

1. Дискретный выход DO1 — это «Пуск Н1». Он выполнен в виде реле, которое замыкается и подаёт сигнал на вход частного преобразователя FWD. Как только реле замыкается, запускается насос Н1. Размыкание останавливает насос Н1.

1. Дискретный выход DO2 — это «Пуск Н2». Он выполнен в виде реле, которое замыкается и подаёт сигнал на вход частного преобразователя FWD. Как только реле замыкается, запускается насос Н2. Размыкание останавливает насос Н2.

Фрагмент схемы с выходами DO1 DO2 и кнопками "ручного" пуска.
Фрагмент схемы с выходами DO1 DO2 и кнопками "ручного" пуска.

Обратите внимание, что кнопки ручного пуска 1К1 и 1К2 подключены параллельно выходам DO1 и DO2. При переходе в ручной режим необходимо разомкнуть выходы DO1 и DO2, чтобы избежать нежелательного шунтирования.

Выходы также добавляем на лист схемы FBD, используя элементы «Выход».

Добавляем "Выходы"
Добавляем "Выходы"

Теперь мы можем "рисовать" логику работы системы. Как только сигнал поступит от поплавка П2, включится насос Н1. Когда же сигнал от П1 исчезнет, насос Н1 будет выключен.

Для реализации этой схемы нам потребуется элемент «RS триггер» SRU. Триггер включается по входу S от сигнала П2 и "держится" пока на вход сброса R не поступит сигнал отключения. Чтобы отключить триггер, необходимо инвертировать сигнал, поступающий от входа П1. Это связано с тем, что отключение будет происходить при размыкании поплавка нижнего уровня.

Работа насоса по двум уровням нужна для того чтобы избежать коротких включений насоса. Поэтому на объекте надо развести поплавки на значительное расстояние чтобы дать воде как следует наполнить резервуар до уровня П2 и весть его откачать, почти до суха до уровня П1.

Когда замыкается поплавок верхнего рабочего уровня П3, сигнал поступает на вход S и "взводит" RS-триггер VRU. Сбрасывается этот триггер аналогичным образом, от поплавка П1.

Чередование насосов реализовано на элементе D-триггера DTRG1. Он включён по схеме счётчика. На его D-вход поступает инверсное значение выхода Q. Поэтому при каждом «фронте» сигнала на входе C происходит переброска значения, которое запоминается до следующего «фронта» сигнала С. Этот сигнал поступает от поплавка П1, обеспечивая смену насосов после каждого цикла откачки. Сигналы от поплавка имеют склонность к "дребезгу", это обусловлено волнами на поверхности воды поэтому для этого сигнала надо предусмотреть защиту дребезга и сигнал на счетный вход С подать не непосредственно с поплавка П1 а с триггера SRU который работает от двух уровней и защищен от эффектов дребезга.

Основная логика работы КНС
Основная логика работы КНС

В схеме, отвечающей за чередующиеся включение насосов, используются логические элементы ADN1 и AND2. В зависимости от состояния триггера DTRG1, сигнал для активации одного из насосов — Н1 или Н2 — поступает на соответствующий вход. Это так называемый "селектор" сигнала.

При срабатывании поплавка П3 оба насоса включаются одновременно, независимо от их очереди. Эта функция осуществляется с помощью элементов «ИЛИ» OR1 и OR2. Если на триггере VRU появляется сигнал «1», то выходные сигналы на элементах OR1 и OR2 также становятся «1», независимо от других входных сигналов. Так "1" + любое число равно "1" . Вот такие законы логики.

Чем ближе элементы находятся к выходу управления насосами, тем выше их приоритет. Наивысший приоритет имеют элементы ADN3 и AND3. Так как умножение любого числа на «0» дает «0», то с помощью этих элементов реализуется безусловное отключение насосов, если на вход «Ручной» приходит сигнал «1» (замыкание), который превращается в «0» после элемента NOT2.

Если что-то непонятно, пишите в комментариях, я постараюсь объяснить.

Основной функционал устройства готов, теперь можно перепрошить контроллер и протестировать его работу, подключив перемычки на дискретных входах. Экраны и другие элементы дизайна будем делать позже.

Прошить контроллер можно двумя способами через USB через ETHERNET. Рассмотрим оба способа но начнем с USB.

Компиляция и прошивка FBD программы
Компиляция и прошивка FBD программы

После успешной компиляции программы проверяем наличие ошибок. Если их нет, то кнопка «Записать в контроллер» становится активной. Нажимаем на неё, и прошивка записывается в контроллер.

Прошивка через USB
Прошивка через USB

Обратите внимание, что при прошивке контроллера через USB нет необходимости подавать на него питание. Он будет работать от USB-питания 5В. Это очень удобно, так как не нужно искать свободные розетки, шнуры и так далее.