Добавить в корзинуПозвонить
Найти в Дзене
ДОМ ОТ ПРОФИ

История строительства дома с погребом и террасой 🏡

В мае 2022 года к нам обратилась Валентина. Она планировала строительство в д. Белеутово. На протяжении 5 месяцев она ждала проект от другой компании, но безрезультатно – на тот момент даже архитектурная часть не была сделана. Поэтому Валентина решила начать работу с нами с самого начала – с проектирования. По итогу встречи в июле 2022 мы заключили договор на проектирование. ▪️Общая площадь – 224 кв.м ▪️Площадь помещений – 153,7 кв.м ▪️Габариты – 11,6 х 8,6 м - кухня-гостиная с выходом на террасу - спальня - ванная - кладовка - тамбур с бойлерной - 3 спальни - ванная - санузел ✔️ Осенью 2022 года начали строительство. ✔️ В декабре 2022 года возвели фундамент. ✔️ Летом 2023 года поставили стены 1 и 2 этажа. ✔️ Осенью смонтировали кровлю и сделали остекление. А уже в ноябре 2023 закончили и сдали дом 🎉 Семья Валентины осталась довольна нашей работой, а дочь заказчицы написала нам приятный отзыв: Переходите в телеграм-бот, чтобы узнать стоимость строительства дома по проекту 022-224
Оглавление

В мае 2022 года к нам обратилась Валентина. Она планировала строительство в д. Белеутово.

На протяжении 5 месяцев она ждала проект от другой компании, но безрезультатно – на тот момент даже архитектурная часть не была сделана.

Поэтому Валентина решила начать работу с нами с самого начала – с проектирования.

  • На участке планируется реконструкция. Старый дом уже снесли. Геология и топосъемка есть. Будет ж/б погреб рядом с домом.
  • Клиент прислала эскиз дома нам на расчет, а затем мы с ней встретились уже в офисе.

По итогу встречи в июле 2022 мы заключили договор на проектирование.

🔰 Наши архитекторы спроектировали двухэтажный дом 022-224

▪️Общая площадь – 224 кв.м

▪️Площадь помещений – 153,7 кв.м

▪️Габариты – 11,6 х 8,6 м

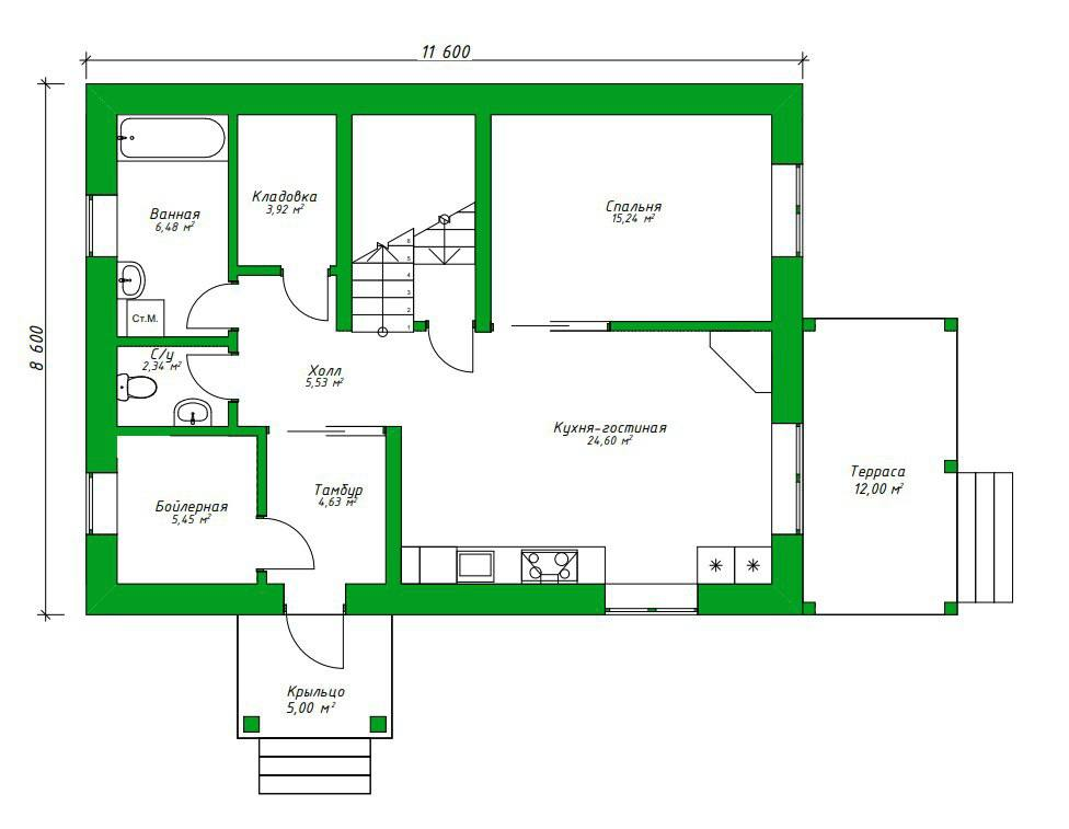
🔰План 1 этажа

- кухня-гостиная с выходом на террасу

- спальня

- ванная

- кладовка

- тамбур с бойлерной

-2

🔰План 2 этажа

- 3 спальни

- ванная

- санузел

-3

🔰+ цокольный этаж площадью 17 кв.м. для погреба

-4

✔️ Осенью 2022 года начали строительство.

✔️ В декабре 2022 года возвели фундамент.

-5

✔️ Летом 2023 года поставили стены 1 и 2 этажа.

✔️ Осенью смонтировали кровлю и сделали остекление.

-6

А уже в ноябре 2023 закончили и сдали дом 🎉

-7

Семья Валентины осталась довольна нашей работой, а дочь заказчицы написала нам приятный отзыв:

-8

Переходите в телеграм-бот, чтобы узнать стоимость строительства дома по проекту 022-224