Добавить в корзинуПозвонить
Найти в Дзене

Иньерьер из 2000-х в стиле "Что хочу то и ворочу".

Этот популярный в 2000-ые стиль сейчас практически не используется в оформлении интерьеров. Только иногда, при перепланировке старых квартир, мы имеем возможность вживую увидеть работы дизайнеров старой закалки. Квартира сменила Хозяина. Новый Владелец не оценил прежнее дизайн решение. Квартира готовится к ремонту. Общий замысел старой перепланировки понятен. Скромную лестницу из прихожей убрали. А в гостиной сделали "крутую" лестницу, соответствующую статусу Хозяина квартиры. Правда, чтобы впихнуть такую лестницу, на 2 этаже пришлось достроить перекрытие. Но кого это останавливало в те годы. Я так и не понял, как эта лестница стояла. Там же для неё места мало. Получается, в гостиной была довольно несуразная планировка. Крутая (в смысле ступеньки высокие) лестница шириной 80. Проход на кухню, проход в "малую залу". А мебель то куда ставить?! Хозяин имеет возможность наблюдать, чем домочадцы занимаются в гостиной. Всё должно быть под контролем. На нижнем этаже — душ.
И обязательно вров
Оглавление

Этот популярный в 2000-ые стиль сейчас практически не используется в оформлении интерьеров. Только иногда, при перепланировке старых квартир, мы имеем возможность вживую увидеть работы дизайнеров старой закалки.

Двухуровневая квартира 200 м².

Квартира сменила Хозяина. Новый Владелец не оценил прежнее дизайн решение. Квартира готовится к ремонту.

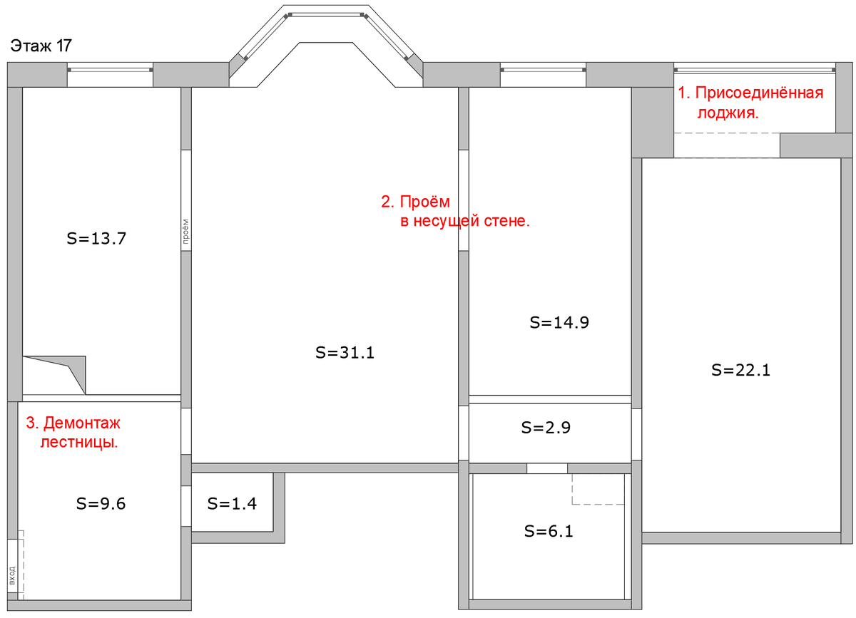
Старая планировка.

Общий замысел старой перепланировки понятен. Скромную лестницу из прихожей убрали. А в гостиной сделали "крутую" лестницу, соответствующую статусу Хозяина квартиры.

Правда, чтобы впихнуть такую лестницу, на 2 этаже пришлось достроить перекрытие. Но кого это останавливало в те годы.

"Крутая" лестница.

Я так и не понял, как эта лестница стояла. Там же для неё места мало. Получается, в гостиной была довольно несуразная планировка.

-5

Крутая (в смысле ступеньки высокие) лестница шириной 80. Проход на кухню, проход в "малую залу". А мебель то куда ставить?!

Кабинет Хозяина с окном в гостиную.

Хозяин имеет возможность наблюдать, чем домочадцы занимаются в гостиной. Всё должно быть под контролем.

-6

Санузлы.

На нижнем этаже — душ.
И обязательно вровень с полом!!!

Слив воды из душа непонятно как делать. И унитаз далеко от стояка...
Да какие проблемы-то. Пол в душе приподняли на 10 см и все коммуникации туда поместились.

Зато на верхнем этаже санузел удалось расширить за счёт коридора. И там могла бы поместиться даже сауна. Но странный декоративный бортик вдоль всех стен мешает расстановке всего. Теперь в санузле помещается только большая ванна.

Дизайн интерьера.

Если можно так выразиться.

Вот, представляю, заходит к Хозяину Друг:
— Ты нафига эти брёвна к потолку приделал?
— Для красоты! Знаешь, сколько они стоят?
— А плинтус чего такой дешманский? На нормальный денег не хватило?

Эта квартира не уникальна. Все интерьеры тех времен примерно такие. Так было модно.

Ещё статья на тему интерьера 2000-х здесь:

#ТриЛуча

Актуальные цены на дизайн-проект смотрите на моем сайте.
☎ +7 916 490-9022